Dieses Wohnbeispiel ist Teil des Bauvorhabens Roelckestraße 111

2-Zimmer-Eigentumswohnung mit Dachterrasse in Weißensee

  • Innenausbau
  • Provisionsfrei
  • Adresse
    Roelckestraße 111, 13086 Berlin / Weißensee
  • Wohntyp
    Penthouse
  • Preis
    465.000 €
  • Etage
    4. OG (Penthouse)
  • Zimmeranzahl
    2
  • Badezimmer
    1
  • Schlafzimmer
    1
  • Wohnfläche
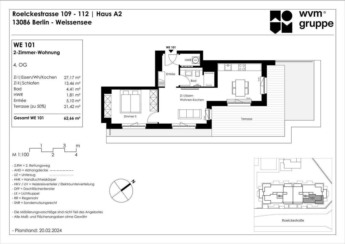
    62,66 m2
  • Bezugsfertig ab
    2. Quartal 2026
  • Tiefgaragen-Stellplatz
    39.900 €
  • ID
    293345
  • Anbieter Objekt-ID
    ROE 111 - WE 101

Merkmale

  • Abstellraum
  • Balkon
  • Befeuerung: Fernwärme
  • Fußbodenheizung
  • Gehobene Ausstattung
  • Keller
  • Parkettboden
  • Personenaufzug
  • Tiefgaragenstellplatz

Lage

Auf der Karte anzeigen

Im Gründerviertel von Weißensee erwartet Sie ein Rundum-sorglos-Paket für Lebensqualität, Lernen und Genießen: Schulen, Kitas und Arztpraxen sind fußläufig erreichbar, Geschäfte liegen um die Ecke, Cafés und Restaurants laden zum Verweilen ein. Das Viertel mit Wurzeln im frühen 20. Jahrhundert strahlt typisches Berliner Flair aus – ohne den Anspruch eines Szenebezirks. Unweit des Weißen Sees genießen Sie eine entspannte Atmosphäre. Die geplante Umgestaltung der nahen Verkehrsachse mit direkter Tram-Anbindung an U- und S-Bahn wird die Wohnlage zusätzlich aufwerten – durch bessere Erreichbarkeit und neue Aufenthaltsqualität. Der Kauf einer Wohnung hier eröffnet die Chance, in der Hauptstadt eine echte Heimat zu finden. Das Stadtleben ist nah – Friedrichshain und Prenzlauer Berg sind nur wenige Tram-Minuten entfernt, der Alexanderplatz in 20 Minuten erreichbar. Bodenständig, urban, familienfreundlich – das ist Weißensee.

Ausstattung

Auf 62,66 m² erwartet Sie eine moderne 2-Zimmer-Wohnung in der vierten Etage, die durchdachten Wohnkomfort bietet. Ein gut geschnittenes Schlafzimmer und ein elegantes Badezimmer mit Badewanne und Dusche vereinen Funktionalität und Stil. Ein Highlight ist die großzügige Terrasse, die Ihnen Momente im Freien ermöglicht. Der Zugang zur Wohnung erfolgt bequem über den Aufzug. Ein praktischer Abstellraum in der Wohnung bietet Ihnen den nötigen Stauraum für Ordnung und Struktur in Ihrem neuen Zuhause.

In Ihrem neuen Zuhause erwartet Sie ein Ausstattungsstandard, der mit durchdachten Details überzeugt. Begrüßen Sie Ihren Besuch bequem über die moderne Video-Gegensprechanlage. Das elegante Eichenparkett in Küche, Wohn- und Schlafbereich sorgt für ein harmonisches Wohngefühl. Auch an kalten Tagen genießen Sie höchsten Komfort, da die Fußbodenheizung für eine gleichmäßige Wärme und ein angenehmes Raumklima sorgt. Mit den Sonnenschutzscreens regulieren Sie auf Knopfdruck die perfekten Lichtverhältnisse und schaffen stets die passende Atmosphäre.

Beschreibung

In Berlin-Weißensee entsteht eine neue Wohnanlage, die bald zur Heimat all derer werden kann, die nach einem geschützten, grünen Kosmos suchen. Benannt nach dem Kunstgärtner Hermann Roelcke (1832–1896), erbt das Ensemble „Roelcke 111“ nicht nur dessen Namen, sondern auch seine Vision: So verwandelt sich das Quartierszentrum in eine offene, grüne Anlage, deren Gärten fließend in den Innenhof übergehen, sodass ein großzügiger Kommunikations- und Begegnungsort unter Freunden, Familie und Nachbarn entstehen kann – ein Dorf-in-der-Stadt-Gefühl, aber größer, weiter und voller Lebendigkeit.

Im westlichen Teil des Quartiershofes ist ein Spielplatz für Kleinkinder eingerichtet, auf dem sie miteinander spielen können. Um diese Begegnungsorte im Zentrum gruppieren sich vier Gebäude: ein Mehrfamilienhaus, das das Quartiersinnere von der Straße trennt, sowie zwei Stadtvillen, die als monolithische Inseln in der Grünanlage hervorstechen. Ein weiteres Gebäude ist in drei Townhouses unterteilt. Auch unterirdisch sind alle Häuser miteinander verbunden: Eine Tiefgarage mit 41 Stellplätzen erstreckt sich unter dem gesamten Quartier, sodass Ihr Townhouse schnell zu erreichen ist.

Energienachweis

Energieausweistyp: Bedarfsausweis
Gültigkeit: 30.05.2034
Endenergiebedarf: 54.6
Energieträger: Fernwärme
Ausstelldatum: 2024-05-31
Energieklasse: B
54.6 kWh/(m²*a)
Energieeffizienzklasse B
  • A+
  • A
  • B
  • C
  • D
  • E
  • F
  • G
  • H
  • 0
  • 25
  • 50
  • 75
  • 100
  • 125
  • 150
  • 175
  • 200
  • 225
  • > 250

Sonstiges

ENERGIEPFLICHTANGABEN GEM. § 87 GEG:
Haus A:
Ausweistyp: Bedarfsausweis
Energieträger: Nah-/Fernwärme
Endenergiebedarf: 54,6 kWh/(m²*a)
Heizungsart: Fußbodenheizung
Baujahr: 2024
Energieeffizienzklasse: B

Bei den Visualisierungen handelt es sich um unverbindliche Darstellungen.
Keine Maklerprovision für den Käufer!

wvm gruppe - Wir bauen auf Beständigkeit. Seit über 30 Jahren in Köln und seit 10 Jahren auch in Berlin!

Der Finanzierungsrechner für Ihren Wohnkredit

Mit unserem Finanzierungsrechner kannst du schnell und bequem eine Finanzierung für deine Immobilie berechnen.

Finanzierungsbeispiel

Eigenkapital: 93.000 €
Sollzinsbindung: 10 Jahre
Tilgungsrate: 1 %
Monatsrate

1.434 €

Dieses Wohnbeispiel ist Teil des Bauvorhabens
Roelckestraße 111

Anbieter kontaktieren
Pflichtfelder *

Wir behandeln deine Daten vertraulich. Mit dem Absenden erklärst du dich mit der Verarbeitung deiner Anfrage gemäß unserer Datenschutzerklärung und AGB für Verbraucher:innen einverstanden.

Anbieter

WvM Vertriebsgesellschaft mbH

Hardefuststraße 7, 50677 Köln

WvM Vertriebsgesellschaft mbH