Dieses Wohnbeispiel ist Teil des Bauvorhabens Roelckestraße 111

Barrierefreie 3-Zimmer-Gartenwohnung mit Terrasse in Weißensee

  • Innenausbau
  • Provisionsfrei
  • Adresse
    Roelckestraße 111, 13086 Berlin / Weißensee
  • Wohntyp
    Erdgeschosswohnung
  • Preis
    639.000 €
  • Zimmeranzahl
    3
  • Badezimmer
    1
  • Schlafzimmer
    2
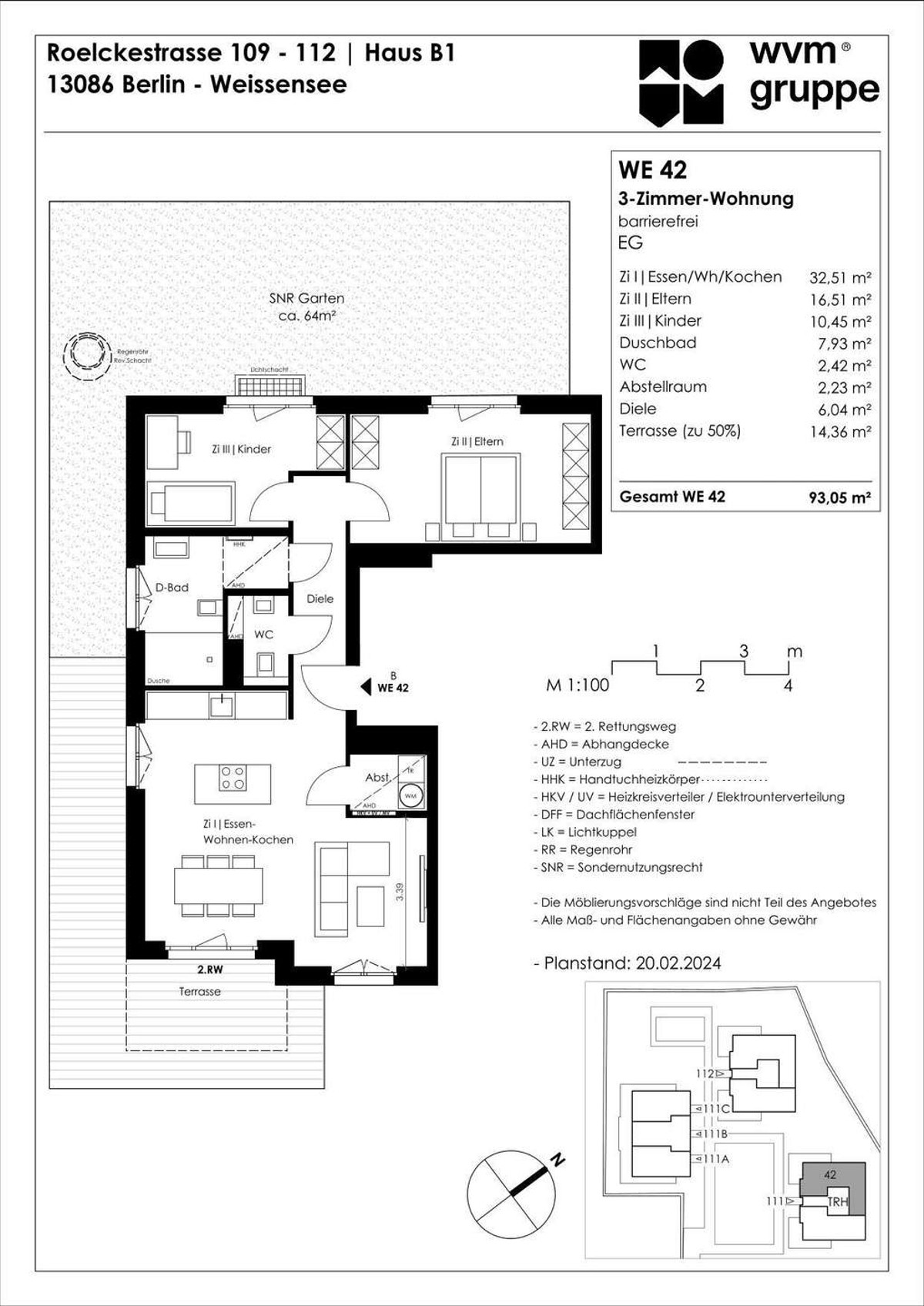
  • Wohnfläche
    93,05 m2
  • Bezugsfertig ab
    2. Quartal 2026
  • Tiefgaragen-Stellplatz
    39.900 €
  • ID
    279195
  • Anbieter Objekt-ID
    ROE 111 - WE 42

Merkmale

  • Abstellraum
  • Balkon
  • Barrierefrei
  • Befeuerung: Fernwärme
  • Fußbodenheizung
  • Garten bzw. Gartennutzung
  • Gehobene Ausstattung
  • Keller
  • Parkettboden
  • Personenaufzug
  • Tiefgaragenstellplatz

Lage

Auf der Karte anzeigen

Im Gründerviertel von Weißensee erwartet Sie ein Rundum-sorglos-Paket für Lebensqualität, Lernen und Genießen: Schulen, Kitas und Arztpraxen sind fußläufig erreichbar, Geschäfte liegen um die Ecke, Cafés und Restaurants laden zum Verweilen ein. Das Viertel mit Wurzeln im frühen 20. Jahrhundert strahlt typisches Berliner Flair aus – ohne den Anspruch eines Szenebezirks. Unweit des Weißen Sees genießen Sie eine entspannte Atmosphäre. Die geplante Umgestaltung der nahen Verkehrsachse mit direkter Tram-Anbindung an U- und S-Bahn wird die Wohnlage zusätzlich aufwerten – durch bessere Erreichbarkeit und neue Aufenthaltsqualität. Der Kauf einer Wohnung hier eröffnet die Chance, in der Hauptstadt eine echte Heimat zu finden. Das Stadtleben ist nah – Friedrichshain und Prenzlauer Berg sind nur wenige Tram-Minuten entfernt, der Alexanderplatz in 20 Minuten erreichbar. Bodenständig, urban, familienfreundlich – das ist Weißensee.

Ausstattung

Bis zu 93 m² warten nur darauf, von ihren neuen Eigentümern in eine persönliche Wohlfühloase verwandelt zu werden. Das Highlight sind die Terrasse und der eigene Garten, die zusätzlichen Freiraum bieten und den Wohnbereich ins Grüne erweitern. Der großzügige Wohn-, Ess- und Kochbereich bildet das Herz der Wohnung. Mit seinem offenen Grundriss schafft er eine angenehme Wohnatmosphäre. Bodentiefe Fenster lassen viel Tageslicht in die Räume und sorgen für ein helles, freundliches Wohngefühl.
Zwei gut geschnittene Zimmer bieten flexible Nutzungsmöglichkeiten, etwa als Eltern- und Kinderzimmer oder als Arbeitsbereich. Ein modernes Badezimmer mit Dusche sowie ein separates Gäste-WC ergänzen den funktionalen Grundriss. Ein zusätzlicher Abstellraum innerhalb der Wohnung bietet praktischen Stauraum im Alltag.

Bei den Visualisierungen handelt es sich um unverbindliche Darstellungen.

Beschreibung

In Berlin-Weißensee entsteht eine neue Wohnanlage, die bald zur Heimat all derer werden kann, die nach einem geschützten, grünen Kosmos suchen. Benannt nach dem Kunstgärtner Hermann Roelcke (1832–1896), erbt das Ensemble „Roelcke 111“ nicht nur dessen Namen, sondern auch seine Vision: So verwandelt sich das Quartierszentrum in eine offene, grüne Anlage, deren Gärten fließend in den Innenhof übergehen, sodass ein großzügiger Kommunikations- und Begegnungsort unter Freunden, Familie und Nachbarn entstehen kann – ein Dorf-in-der-Stadt-Gefühl, aber größer, weiter und voller Lebendigkeit.

Im westlichen Teil des Quartiershofes ist ein Spielplatz für Kleinkinder eingerichtet, auf dem sie miteinander spielen können. Um diese Begegnungsorte im Zentrum gruppieren sich vier Gebäude: ein Mehrfamilienhaus, das das Quartiersinnere von der Straße trennt, sowie zwei Stadtvillen, die als monolithische Inseln in der Grünanlage hervorstechen. Ein weiteres Gebäude ist in drei Townhouses unterteilt. Auch unterirdisch sind alle Häuser miteinander verbunden: Eine Tiefgarage mit 41 Stellplätzen erstreckt sich unter dem gesamten Quartier, sodass Ihr Townhouse schnell zu erreichen ist.

Energienachweis

Energieausweistyp: Bedarfsausweis
Gültigkeit: 30.05.2034
Endenergiebedarf: 61.3
Energieträger: Fernwärme
Ausstelldatum: 2024-05-31
Energieklasse: B
61.3 kWh/(m²*a)
Energieeffizienzklasse B
  • A+
  • A
  • B
  • C
  • D
  • E
  • F
  • G
  • H
  • 0
  • 25
  • 50
  • 75
  • 100
  • 125
  • 150
  • 175
  • 200
  • 225
  • > 250

Sonstiges

ENERGIEPFLICHTANGABEN GEM. § 87 GEG:
Haus B1 + B2:
Ausweistyp: Bedarfsausweis
Energieträger: Nah-/Fernwärme
Endenergiebedarf:
Haus B1: 61,3 kWh/(m²*a)
Haus B2: 58,6 kWh/(m²*a)
Heizungsart: Fußbodenheizung
Baujahr: 2024
Energieeffizienzklasse: B

Bei den Visualisierungen handelt es sich um unverbindliche Darstellungen.
Keine Maklerprovision für den Käufer!

wvm gruppe - Wir bauen auf Beständigkeit. Seit über 30 Jahren in Köln und seit 10 Jahren auch in Berlin!

Der Finanzierungsrechner für Ihren Wohnkredit

Mit unserem Finanzierungsrechner kannst du schnell und bequem eine Finanzierung für deine Immobilie berechnen.

Finanzierungsbeispiel

Eigenkapital: 127.800 €
Sollzinsbindung: 10 Jahre
Tilgungsrate: 1 %
Monatsrate

1.994 €

Dieses Wohnbeispiel ist Teil des Bauvorhabens
Roelckestraße 111

Anbieter kontaktieren
Pflichtfelder *

Wir behandeln deine Daten vertraulich. Mit dem Absenden erklärst du dich mit der Verarbeitung deiner Anfrage gemäß unserer Datenschutzerklärung und AGB für Verbraucher:innen einverstanden.

Anbieter

WvM Vertriebsgesellschaft mbH

Hardefuststraße 7, 50677 Köln

WvM Vertriebsgesellschaft mbH