Dieses Bauvorhaben ist abverkauft.

Avanza GmbH & Co. KG

VIVET 22 Augsburg-Stadtbergen

Neubau von 9 Eigentumswohnungen

Projektdetails

  • Schulstraße, 86391 Stadtbergen
  • Eigentumswohnung
  • 9
  • Gehoben
  • 16380

Merkmale

  • Abstellraum
  • Aufzug
  • Barrierefrei
  • Bodentiefe Fenster
  • Echtholz-Parkett
  • Elektrische Rollläden
  • Fußbodenheizung
  • Kontrollierte Wohnraumlüftung
  • Ladestation für Elektrofahrzeuge
  • Teilw. Gäste-WC
  • Tiefgarage
  • Video-Gegensprechanlage

Lage

Auf der Karte anzeigen

Projektbeschreibung

Bilder Neubau Eigentumswohnungen Schulstraße Stadtbergen

Wohnpalais in
Augsburg/Stadtbergen
Nähe Uni-Klinik

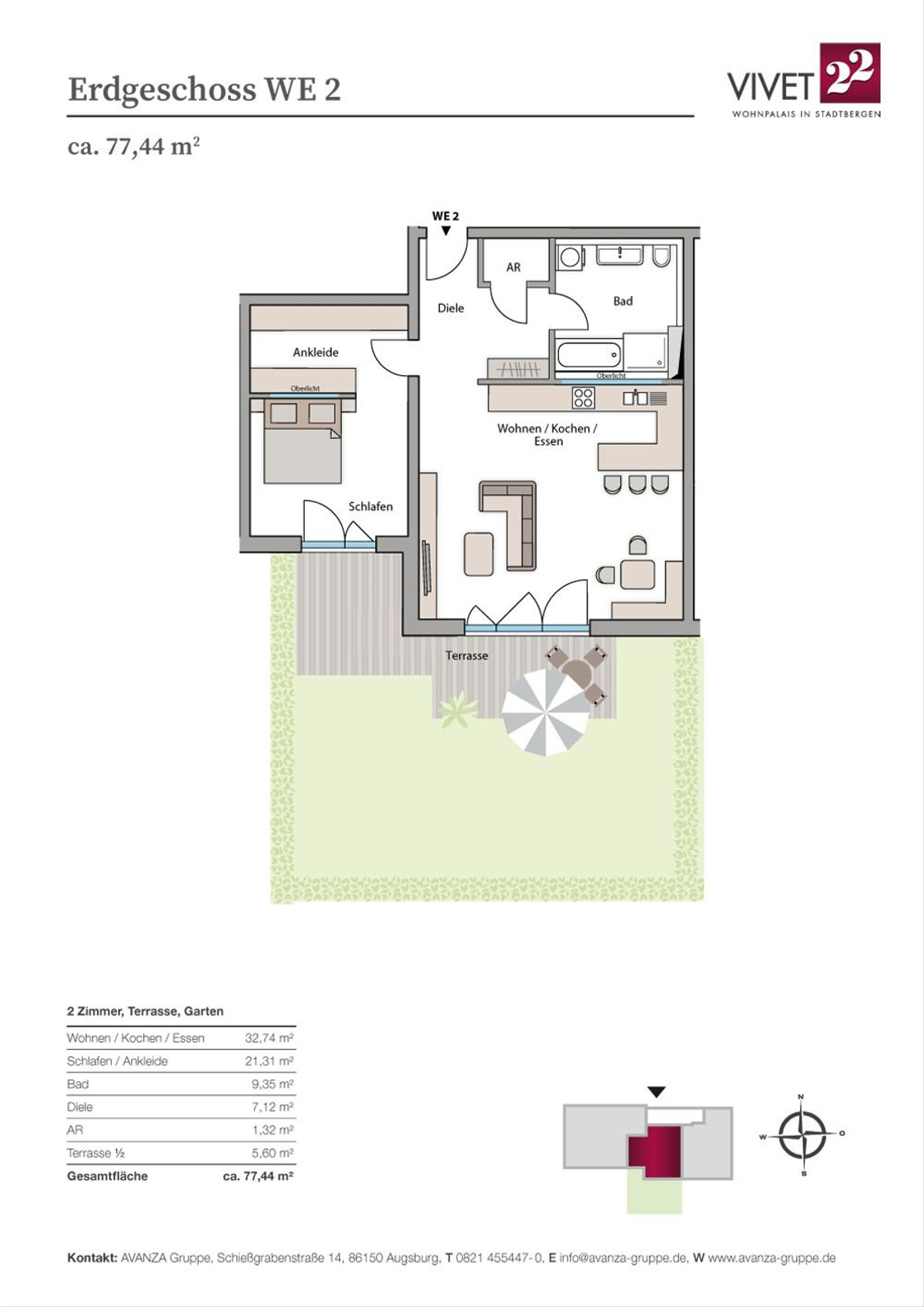
Die Wohnanlage liegt im Zentrum von Stadtbergen – in ruhiger Lage unweit vom Naturpark "Augsburg - Westliche Wälder". Es stehen insgesamt 9 Wohneinheiten zwischen 77,44 bis mögliche 160 m² zum Verkauf.

Bilder Neubau Eigentumswohnungen Schulstraße Stadtbergen
Bilder Neubau Eigentumswohnungen Schulstraße Stadtbergen

Das Objekt befindet sich nahe des Zentrums von Stadtbergen, in der Nähe der Uni-Klinik. Die Augsburger Innenstadt ist mit dem Pkw oder mit dem Fahrrad in wenigen Minuten erreichbar. Alle wichtige Einkaufsmöglichkeiten erreichen sie zu Fuß ebenfalls in nur wenigen Minuten. Ein paar hundert Meter weiter laden Augsburgs Westliche Wälder zum Joggen, Wandern oder Fahrradfahren ein. Hier leben Sie fernab vom Citytrubel und doch so zentral, dass alle Bedürfnisse des täglichen Lebens gestillt werden. Kitas und Schulen sind ebenso wie Ärzte, Bäcker, Discounter und Gastronomie zu Fuß erreichbar. Haltestellen des öffentlichen Nahverkehrs sind ebenfalls in wenigen Minuten erreichbar.

Auch für Pendler ist der Standort des Objektes besonders attraktiv: Nur 1,5 km entfernt liegt die B17, welche Sie mit Donauwörth, der Autobahn A8 oder Landsberg verbindet.

Ausstattung

Bilder Neubau Eigentumswohnungen Schulstraße Stadtbergen
Bilder Neubau Eigentumswohnungen Schulstraße Stadtbergen
  • hochwertige Parkettböden (Eiche)
  • ausgesuchte Badkeramik und Fliesen, Dusche mit Rainshower und separater Handbrause, Unterputzarmatur und Ablaufrinne sowie Badewanne, breiter Waschtisch mit 2 Armaturen
  • Bad mit Fenster oder Oberlicht
  • lichtdurchflutete Räume durch bodentiefe Fenster mit französischen Balkonen
  • mit Abstellkammer
  • Innentüren weiß glatt oder als Kassettentüren
  • Fußbodenheizung mit Einzel-Raumthermostat
  • moderne elektr. Raffstores und elektrische Rollläden
  • Lüftungsanlage mit Wärmerückgewinnung und Brauchwasserthermie auf dem Dach
  • barrierefreier Zugang sowie Liftanlage
  • Video-Gegensprechanlage
  • große TG-Stellplätze für jede Wohnung und/oder auch Außenstellplätze (je 6.900 €)
  • eigenes Kellerabteil
  • großer Fahrradkeller

Die bauliche Umsetzung erfolgt bereits auf den Vorschriften der EnEV 2016.

Jede Wohnung erhält eine Einbauküche im Wert bis ca. 20.000 €, je nach Wohnungsgröße.

Die Lage

Bilder Neubau Eigentumswohnungen Schulstraße Stadtbergen
Bilder Neubau Eigentumswohnungen Augsburger Straße Nürnberg

Der beliebte Stadtteil Stadtbergen gehört zu den beliebtesten Stadtvierteln von Augsburg. Augsburgs Innenstadt ist in wenigen Minuten erreichbar. Die nahe gelegenen westlichen Wälder laden zu Erholung und sportlichen Aktivitäten ein. Die Bedürfnisse des täglichen Lebens sowie Kitas, Schulen und Ärzte, Bäcker, Discounter und Gastronomie sind zu Fuß erreichbar. Haltestellen des öffentlichen Nahverkehrs sind ebenfalls in wenigen Minuten erreichbar. Für Pendler besonders attraktiv! Nur 1,5 km liegt die B17, welche Sie mit der A8, Donauwörth oder Landsberg verbindet.

Rechtlicher Hinweis: Die Informationen zum Bauvorhaben sind ein redaktioneller Beitrag der neubau kompass AG. Er dient ausschließlich Informationszwecken und stellt kein Angebot im rechtlichen Sinne dar. Die angebotenen Inhalte werden von der neubau kompass AG nach § 2 TMG veröffentlicht und kontrolliert. Informationen zu einer etwaigen Provisionspflicht sind beim Anbieter zu erfragen. Alle Angaben, insbesondere zu Preisen, Wohnflächen, Ausstattung und Bezugsfertigkeit sind ohne Gewähr. Irrtum vorbehalten.

Anbieter

Avanza GmbH & Co. KG

Schießgrabenstrasse 14, 86150 Augsburg

Avanza GmbH & Co. KG

Weitere Projekte in der Nähe