Dieses Bauvorhaben ist abverkauft.

Grossmann & Berger Hamburg

Rothestraße 12 - 14

Neubau von Eigentumswohnungen

Projektdetails

  • Rothestraße 12-14, 22765 Hamburg / Ottensen
  • Eigentumswohnung
  • Auf Anfrage
  • Standard
  • 7921

Lage

Auf der Karte anzeigen

Projektbeschreibung



Grossmann & Berger macht. Leben in Hamburg-Ottensen.


Ottensen hat sich vom Industriestandort zum gefragten Szeneviertel entwickelt. Das kulturelle Angebot ist äußerst vielfältig, ebenso wie die Gastronomieszene, Freizeit- und Einkaufsmöglichkeiten. Das Projekt befindet sich zwischen der Holländischen Reihe und der Elbchaussee. Die Ottenser Hauptstraße sowie die Bahrenfelder Straße mit ihren Geschäften und Cafés sind nur wenige Minuten entfernt. Auch die Elbe befindet sich in unmittelbarer Nähe und der Bahnhof Altona bietet eine zentrale Anbindung an den Nah - und Fernverkehr.


Einkaufszentrum: "Mercado" ca. 800 m entfernt
Bahnhof Altona: ca. 1 km entfernt
Elbe: ca. 600 m entfernt
Heine-Park: ca. 100 m entfernt
Donners Park: ca. 450 m entfernt
Gymnasium Altona: ca. 1,1 km entfernt
Grundschule Rothestraße: ca. 150 m entfernt
KITA Eulenstraße: ca. 200 m
Innenstadt (Jungfernstieg): ca. 4,7 km entfernt


Lassen Sie sich von uns beraten! 040 350 80 20
Weitere Informationen finden Sie unter: www.rothestrasse12.de


Das Objekt


Dieses Wohnhaus besteht aus zwei Flügeln (westlich zur Rothestraße, nordöstlich zur Kirchentwiete), die sich in der Höhe und in der Gliederung den Nachbargebäuden anpassen. Die Architektur ist optimal auf den besonderen Grundstückszuschnitt abgestimmt und das Gebäude ist zeitlos und elegant gestaltet.


  • KfW- Effizienzhaus 70
  • Großzügige Loggien/Balkone oder Terrassen
  • Tiefgaragen-Stellplätze
  • Aufzug


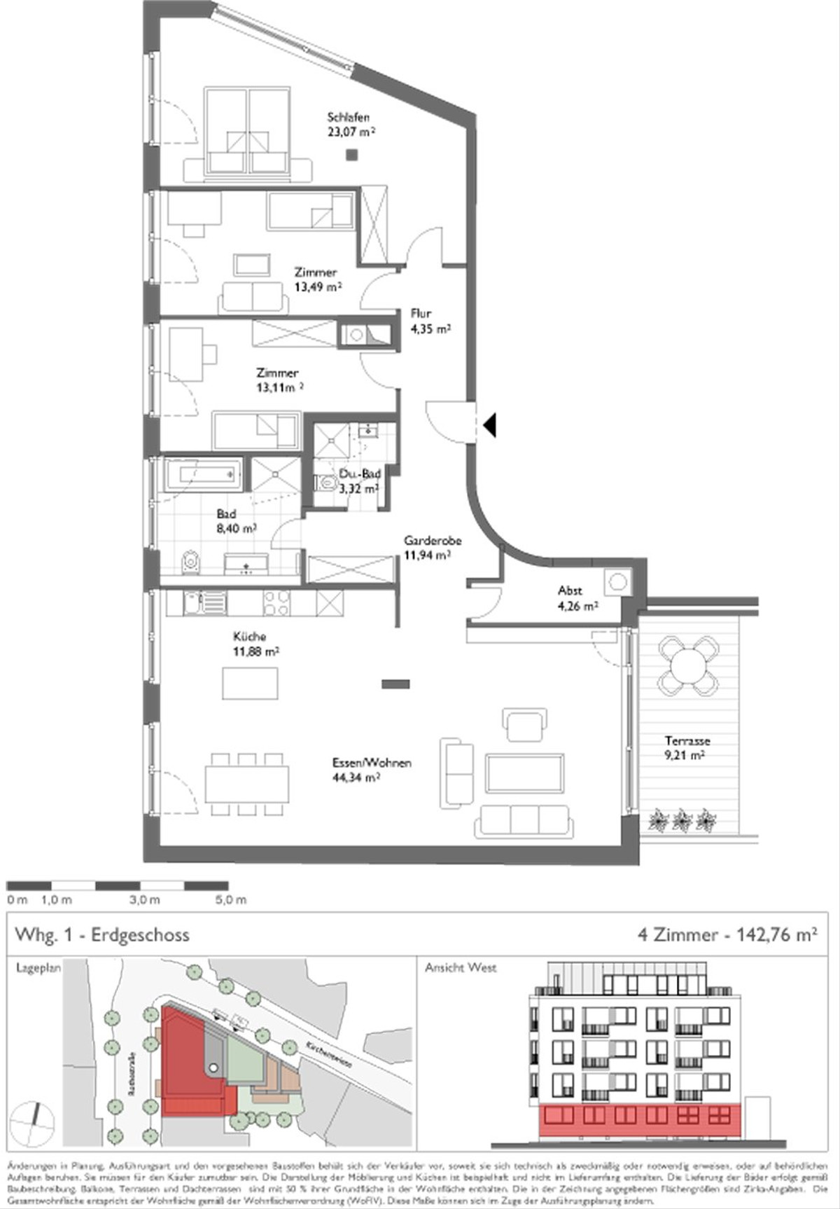
Bilder zum Neubau Rothestraße 12-14

Die Ausstattung


Eine flexible Grundrissgestaltung, moderne Bäder mit bodengleichen Duschen sorgen für ein besonderes Wohnen im Szeneviertel.


  • Parkettfußboden
  • wohltuende Fußbodenheizung
  • Handtuchheizkörper in den Bädern
  • Sanitärobjekte namhafter Hersteller
  • bodentiefe Fenster
Bilder zum Neubau Rothestraße 12-14


Sonstiges


Die Fertigstellung ist für Frühjahr 2015 geplant!
Der Kaufpreis für einen Tiefgaragen-Stellplatz beträgt EUR 18.000-
Die Courtage versteht sich inklusive gesetzlicher Mehrwertsteuer.
Weitere Informationen erhalten Sie unter: www.rothestrasse12.de
Angaben nach EnEV: Energiebedarfsausweis liegt noch nicht vor, erfolgt nach Fertigstellung.

Courtage: 6,25 % inkl. MwSt.

Rechtlicher Hinweis: Die Informationen zum Bauvorhaben sind ein redaktioneller Beitrag der neubau kompass AG. Er dient ausschließlich Informationszwecken und stellt kein Angebot im rechtlichen Sinne dar. Die angebotenen Inhalte werden von der neubau kompass AG nach § 2 TMG veröffentlicht und kontrolliert. Informationen zu einer etwaigen Provisionspflicht sind beim Anbieter zu erfragen. Alle Angaben, insbesondere zu Preisen, Wohnflächen, Ausstattung und Bezugsfertigkeit sind ohne Gewähr. Irrtum vorbehalten.