DIRINGER & SCHEIDEL WOHN- UND GEWERBEBAU GmbH

green v Viernheim

Neubau von 87 Eigentumswohnungen

  • Effizienzhaus 40

Projektdetails

  • Otfried-Preußler-Straße 1 - 11, 68519 Viernheim
  • Eigentumswohnung
  • ab 439.900 €
  • 2 - 4 Zimmer
  • 66,48 - 113,25 m2
  • Auf Anfrage
  • 87
  • Gehoben
  • 24968

Merkmale

  • Balkon
  • Echtholz-Parkett
  • Elektrische Rollläden
  • Fußbodenheizung
  • Photovoltaikanlage
  • Sanitärausstattung von Markenherstellern
  • Teilw. Gartenanteil
  • Terrasse
  • Tiefgarage
  • Wärmepumpe

Lage

Auf der Karte anzeigen

Weitere Infos

Kaufpreis zzgl. TG-Parkplatz: 25.000 €


Das Bauvorhaben green v Viernheim erreicht die Klassifizierung Klimafreundliches Wohngebäude mit QNG und wird mit dem besonderen Förderprogramm 297/298 der KfW-Bankengruppe unterstützt. Es qualifiziert sich dadurch für ein außergewöhnlich gutes Zinsprogramm, das erhebliche Kosteneinsparungen für Sie als Käufer mit sich bringt. Weitere Informationen finden Sie im Abschnitt „KfW-Förderung“.

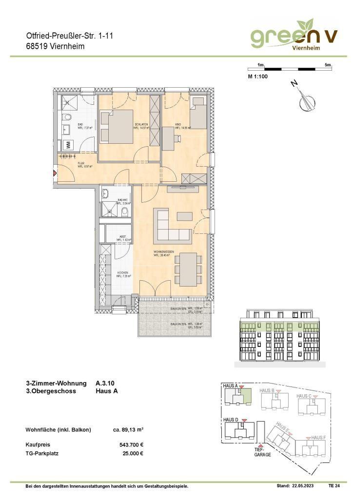
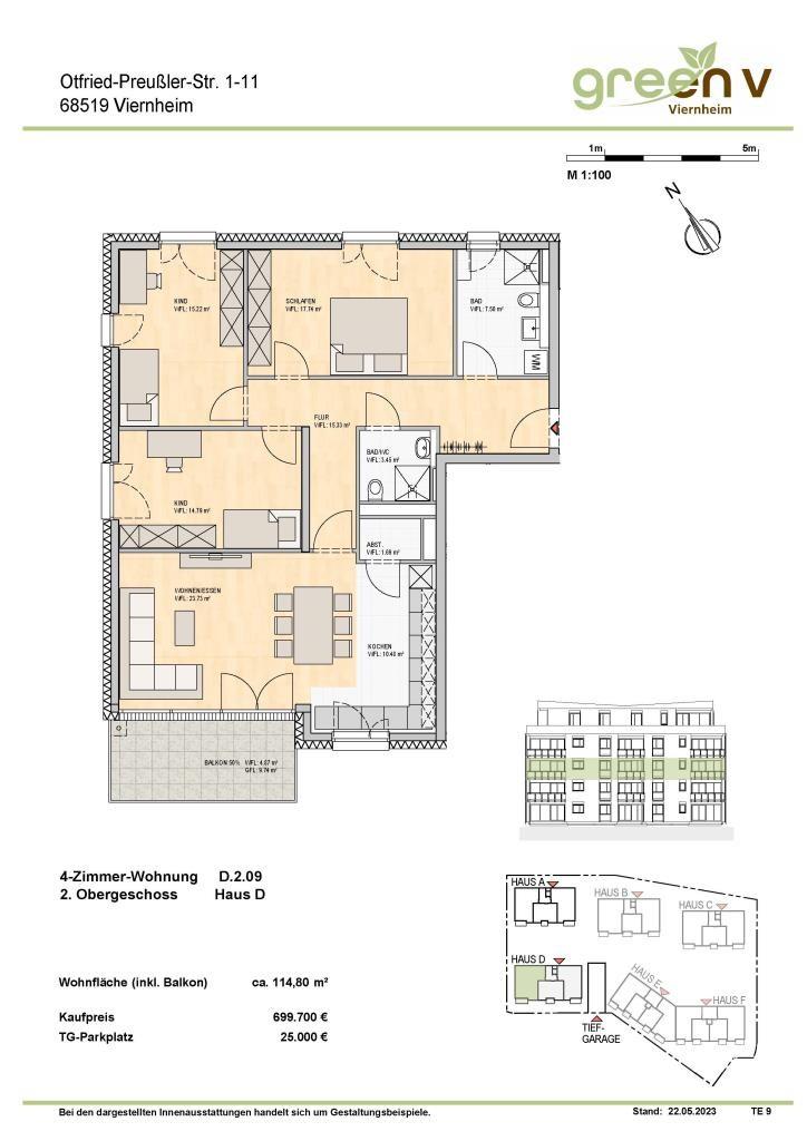
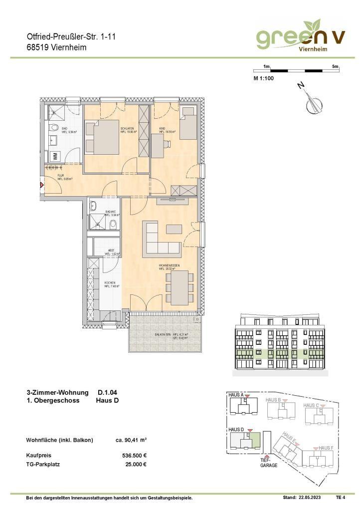
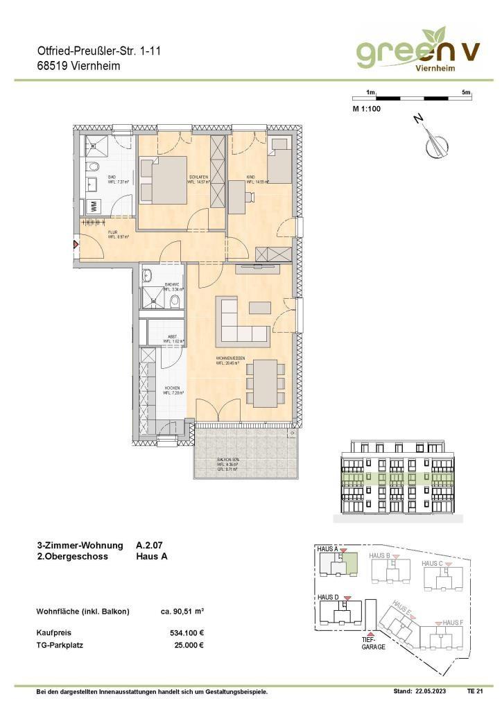
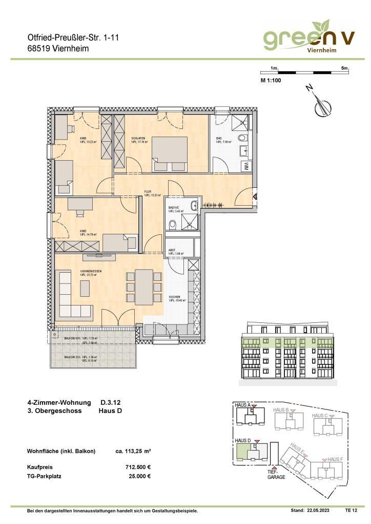
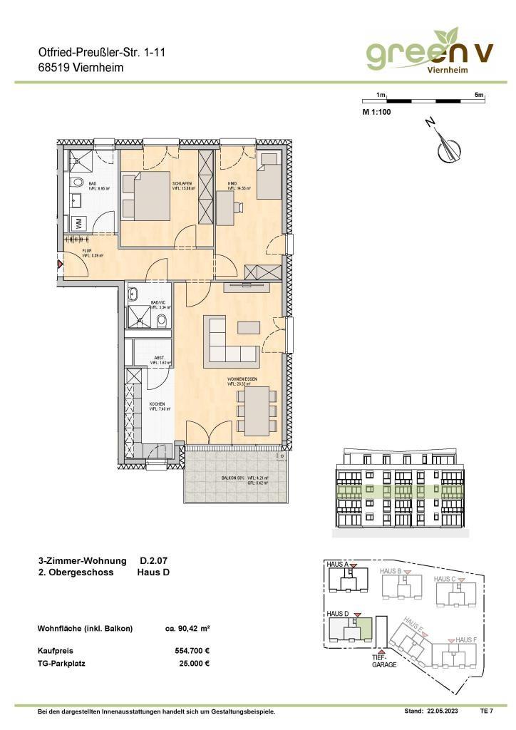
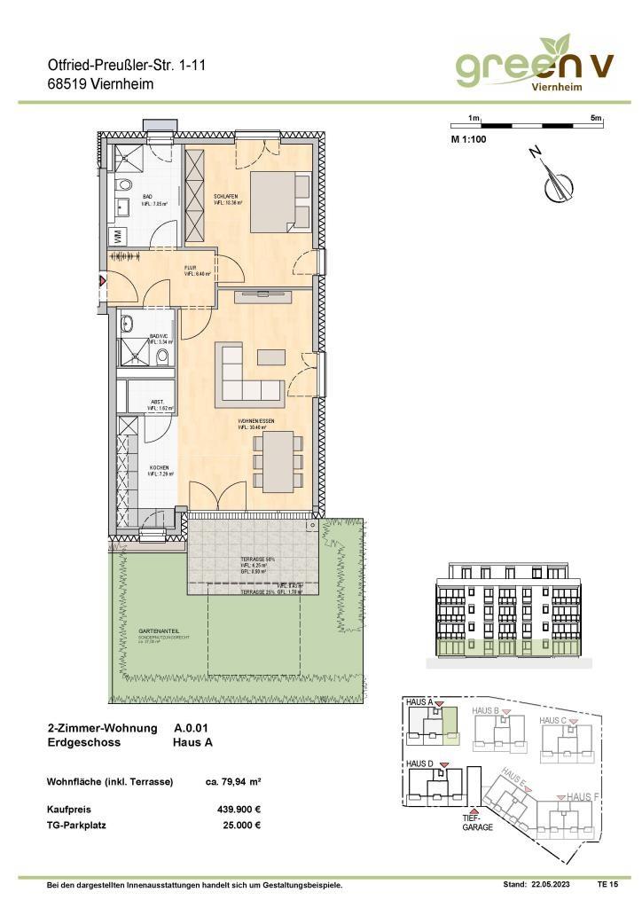
Wohnbeispiele

Anbieter kontaktieren
Pflichtfelder *

Anzahl der Zimmer

Wir behandeln deine Daten vertraulich. Mit dem Absenden erklärst du dich mit der Verarbeitung deiner Anfrage gemäß unserer Datenschutzerklärung und AGB für Verbraucher:innen einverstanden.

Projektbeschreibung

Bild Neubau Eigentumswohnungen Otfried-Preußler-Straße Viernheim

Nachhaltiges Wohnen,
umgeben von Grün

1. Bauabschnitt, Haus A und D

Wohngenuss und Lebensqualität – Außen und innen

Am nördlichen Stadtrand Viernheims, im beliebten Neubaugebiet Bannholzgraben II, realisieren wir als Generalunternehmer in mehreren Bauabschnitten das Projekt green v Viernheim (gesprochen green five). Die römische fünf (v) im Namen green v Viernheim steht sinnbild- lich für unsere fünf neuen Wohngebäude, kann aber auch – gelesen als V – für Viernheim stehen. Green bezieht sich zum einen auf die grüne Umgebung, zum anderen auf das besonders nachhaltige Energiekonzept.

Gesamtkonzeption

  • 6.000 m² Areal
  • Fünf Gebäude
  • 87 Eigentumswohnungen
  • 2 bis 4 Zimmer
  • Ca. 44 m² bis 139 m² Wohnfläche
  • Balkone, Terrassen und Gartenanteile in Südwest-Ausrichtung
  • Besonderes Energiekonzept

1. Bauabschnitt, Haus A und D

Im ersten Bauabschnitt entstehen die Häuser A und D mit jeweils 14 attraktiven 2 bis 4 Zimmer Eigentumswohnungen und Wohnflächen von ca. 60 m² bis 126 m². Die Gebäude erhalten je vier oberirdische Geschosse (EG bis 3.OG), „on Top“ befindet sich ein zurückgesetztes Staffelgeschoss mit je zwei attraktiven Penthauswohnungen mit herrlichen Dachterrassen.

Eine gut durchdachte Raumaufteilung und praktische Stellflächen bieten Ihnen hervorragende Möglichkeiten, sich individuell in Ihren Räumen zu verwirklichen. Alle Wohnungen erhalten Balkone oder Gartenanteile mit Südwest- Ausrichtung, die zum Verweilen bis in die Abendstunden einladen.

Alle Häuser werden durch eine gemeinsame Tiefgarage verbunden und bieten ausreichend Platz für 112 PKW-Stellplätze. In den Untergeschossen befinden sich die Wohnungskeller und Technikräume. Die Müllräume sowie die Fahrradstellplätze für Besucher sind gut erreichbar in den Außenanlagen, nahe den Hauseingängen, platziert.

Bild Neubau Eigentumswohnungen Otfried-Preußler-Straße Viernheim

Moderne
trifft Nachhaltigkeit

Die Architektur

Die attraktiv gestaltete Außenfassade in Creme- und Brauntönen fügt sich unaufdringlich in das Bild der Umgebung, mit zahlreichen Grün- und Feldflächen, ein. Großzügige Fensterbänder und eine besondere Putzstruktur – sogenannter Besenstrich – verleihen der Fassade Eleganz und Leichtigkeit.

Die Zuwegung zu den einzelnen Gebäuden vermittelt eine einladende Atmosphäre, die sich von den Eingangsbereichen bis in die Wohnungen fortsetzt. Im Innenbereich des Areals entsteht ein nachbarschaftlicher Treffpunkt mit durchdacht angelegten Wegeführungen und Grünbereichen, Sitzgelegenheiten und einem Spielplatz.

Das Energiekonzept

Eine Besonderheit in green v Viernheim ist das nachhaltige und effiziente Energiekonzept: Für die Wohnungen werden aktuelle Klimaschutzstandards umgesetzt, die die Umwelt schonen und Ressourcen sparen. Vor diesem Hintergrund wird auf den Einsatz von fossilen Brennstoffen verzichtet. Die Wärme- und Warmwassererzeugung erfolgen mittels Wärmepumpen, die Ihren Strombedarf anteilig aus den PVT-Modulen (Photovoltaik und Solarthermie) auf dem Dach beziehen. Bei diesen Modulen handelt es sich um PV-Kollektoren, welche zusätzlich auf der Rückseite einen Wärmetauscher installiert haben. So können die Wärmepumpen geräuschlos über einen Solekreis Wärme aus der Umgebung entziehen. Die Wärmepumpen sorgen dann in den Häusern für Warmwasser und eine energieeffiziente Beheizung. Die Beheizung in den Wohnungen erfolgt über eine Fußbodenheizung mittels Warmwasser.

Die innovative Wärmepumpentechnik erlaubt auch eine Abkühlung der Räume bei sommerlichen Temperaturen um ca. 2-3°C gegenüber der Außentemperatur. Um die Raumtemperaturen in den Wohnungen zu senken, kann ab einer Außentemperatur von ca. + 25°C der Fußboden auf Wunsch mittels der Raumthermostate temperiert werden. Nach zentraler Umschaltung an den Wärmepumpen fließt bei Bedarf, umgekehrt zum Heizkonzept, abgekühltes Wasser durch die im Fußboden verlegten Rohrleitungen. So wird durch die Fußbodentemperierung Wärme im Sommer aus den Räumen abgeführt. Dies geschieht ausschließlich ohne Luftumwälzung und somit ohne Geräusche und Zugerscheinungen in den Räumen. Die zur Kühlung des Wasserkreislaufs im Rohrleitungsnetz benötigte Energie kann zu einem Großteil durch die Photovoltaikanlage auf dem Dach gewonnen werden.

KfW-Förderung

Unser Bauvorhaben green v Viernheim erreicht die Klassifizierung Klimafreundliches Wohngebäude mit QNG und wird mit dem besonderen Förderprogramm 297/298 der KfW-Bankengruppe unterstützt. Es qualifiziert sich dadurch für ein außergewöhnlich gutes Zinsprogramm, das erhebliche Kosteneinsparungen für Sie als Käufer mit sich bringt. Weitere Informationen finden Sie in unserem Flyer (PDF, 4,7 MB).

Zum Seitenanfang
Bild Neubau Eigentumswohnungen Otfried-Preußler-Straße Viernheim

Bauweise und Ausstattung
für hohe Ansprüche

Unsere hochwertige Bauweise, unter Verwendung sorgfältig ausgewählter Materialien, sorgt auch in green v Viernheim für hohen Wohnkomfort.

Hier einige Beispiele:

  • Massive Bauweise mit hochwertigem Kalksandstein
  • Aufzugsschächte mit erhöhter Wandstärke zur Reduzierung der Schallübertragung
  • Erstklassiges Wärmedämmverbundsystem
  • Elektrisch betriebene Rollläden
  • Separat für jeden Raum regulierbare Fußbodenheizung sowie Fußbodenkühlung
  • Zeitloses und robustes Eichenparkett
  • Komfortable Bäder mit bodengleich gefliestem Duschbereich
  • Hochwertige Sanitärobjekte, ausgesuchte Fliesen namhafter Herstellerl
  • Abschließbare Fenster- und Fenstertürgriffe im EG
  • Vorrüstung für Markisen in allen Wohnungen
  • Alle Wohnungen sind nach der Hessischen Bauordnung (HBO) von den öffentlichen Verkehrsflächen bis zum Wohnungseingang barrierefrei erreichbar
  • 20 % der Wohnungen (der Gesamtbaumaßnahme) werden barrierefrei umgesetzt
  • Gemeinsame Tiefgarage für alle fünf Gebäude mit 112 PKW-Stellplätzen
  • Rollgittertor mit Fernbedienung
  • Videoüberwachung an der Tiefgaragenzufahrt
  • E-Mobilität: Es sind mindestens 6 TG-Stellplätze vorgesehen, weitere Stellplätze können ausgerüstet werden
  • Klimafreundliches Wohngebäude mit QNG (KFWG-Q)*

Verraten Sie uns Ihre Sonderwünsche

Selbstverständlich berücksichtigen wir auch gerne Ihre individuellen Sonderwünsche gegen Aufpreis. Unser langjähriges Know-how sowie die effiziente Bündelung von planerischer und ausführender Bauleitung innerhalb unserer Unternehmensgruppe zahlt sich für Sie in vielfacher Hinsicht aus: Für alle Anliegen gibt es stets einen Ansprechpartner, faire Preise und stetige Überwachung während der Ausführung durch unser kompetentes Projekt- und Bauleitungsteam.

*Die KFWG – Q Stufe wird erreicht, wenn für ein Effizienzhaus bzw. Effizienzgebäude 40 ein Nachhaltigkeitszertifikat ausgestellt wird, dass die Übereinstimmung der Maßnahme mit den Anforderungen des „Qualitätssiegel Nachhaltiges Gebäude Plus“ (QNG-PLUS) oder „Qualitätssiegel Nachhaltiges Gebäude Premium (QNG-PREMIUM) bestätigt. Quelle: Bundesportal, https://www.bmwsb.bund.net

Bild Neubau Eigentumswohnungen Otfried-Preußler-Straße Viernheim

Inmitten der Metropolregion Rhein-Neckar
und bestens angebunden

Viernheim

Viernheim liegt in Hessen, grenzt aber im Westen, Süden und Osten an Baden-Württemberg an. Mit rund 34.000 Einwohnern ist sie die zweitgrößte Stadt im südhessischen Kreis Bergstraße und verfügt über eine hervorragende BAB-Anbindung. Ob mit Fahrrad, ÖPNV oder Auto: die nächst größeren Städte Mannheim, Heidelberg und Weinheim an der Bergstraße sind in kürzester Fahrtzeit zu erreichen.

Gute Infrastruktur mit kurzen Wegen

Die Innenstadt lädt zu einem Schaufensterbummel ein, man findet hier zahlreiche Restaurants und Cafés zum Verweilen.

Inmitten der Stadt befindet sich die 1900 erbaute Apostelkirche − ein beeindruckendes Wahrzeichen Viernheims. Schulen und Kindergärten, Ärzte, Banken sowie Geschäfte des täglichen Lebens sind fußläufig oder mit dem Fahrrad erreichbar. Alle Shopping-Begeisterten kommen im Rhein-Neckar-Zentrum, einem der größten Einkaufs- und Freizeitzentren der Region, voll auf ihre Kosten. In unmittelbarer Nähe befinden sich auch das Kinopolis und das neue Indoor Skydiving Viernheim.

Naturliebhaber schätzen als beliebte Ausflugsziele den Anglersee, den Vogelpark sowie den Kletterwald mit angrenzendem Spielplatz und weitläufigen Waldwegen.

Rechtlicher Hinweis: Die Informationen zum Bauvorhaben sind ein redaktioneller Beitrag der neubau kompass AG. Er dient ausschließlich Informationszwecken und stellt kein Angebot im rechtlichen Sinne dar. Die angebotenen Inhalte werden von der neubau kompass AG nach § 2 TMG veröffentlicht und kontrolliert. Informationen zu einer etwaigen Provisionspflicht sind beim Anbieter zu erfragen. Alle Angaben, insbesondere zu Preisen, Wohnflächen, Ausstattung und Bezugsfertigkeit sind ohne Gewähr. Irrtum vorbehalten.

Anbieter

DIRINGER & SCHEIDEL WOHN- UND GEWERBEBAU GmbH

Wilhelm-Wundt-Straße 19, 68199 Mannheim

DIRINGER & SCHEIDEL WOHN- UND GEWERBEBAU GmbH