Dieses Wohnbeispiel ist Teil des Bauvorhabens green v Viernheim

green v, Viernheim

  • Effizienzhaus 40
  • Adresse
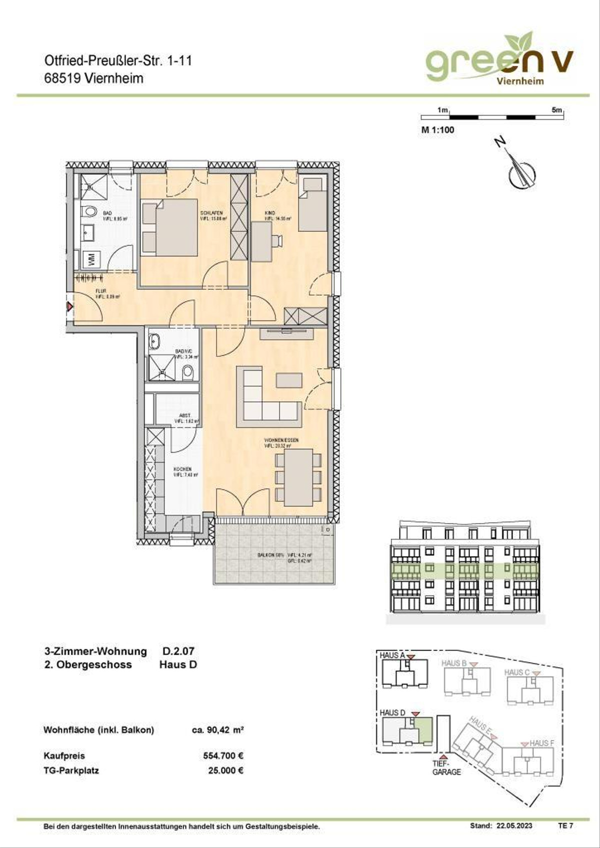
    Otfried-Preußler-Straße 1 - 11, 68519 Viernheim
  • Wohntyp
    Etagenwohnung
  • Preis
    554.700 €
  • Provision für Käufer
    provisionsfrei für den Käufer
  • Etage
    2. OG
  • Zimmeranzahl
    3
  • Wohnfläche
    Auf Anfrage
  • ID
    240988
  • Anbieter Objekt-ID
    W011/G1/E2/TE07_D.2.07

Lage

Auf der Karte anzeigen

Der Finanzierungsrechner für Ihren Wohnkredit

Mit unserem Finanzierungsrechner kannst du schnell und bequem eine Finanzierung für deine Immobilie berechnen.

Finanzierungsbeispiel

Eigenkapital: 110.940 €
Sollzinsbindung: 10 Jahre
Tilgungsrate: 1 %
Monatsrate

1.709 €

Dieses Wohnbeispiel ist Teil des Bauvorhabens
green v Viernheim

Anbieter kontaktieren
Pflichtfelder *

Wir behandeln deine Daten vertraulich. Mit dem Absenden erklärst du dich mit der Verarbeitung deiner Anfrage gemäß unserer Datenschutzerklärung und AGB für Verbraucher:innen einverstanden.

Anbieter

DIRINGER & SCHEIDEL WOHN- UND GEWERBEBAU GmbH

Wilhelm-Wundt-Straße 19, 68199 Mannheim

DIRINGER & SCHEIDEL WOHN- UND GEWERBEBAU GmbH