Dieses Bauvorhaben ist abverkauft.

Behrendt Gruppe

Wohnen im Soll am See

Neubau von 41 Eigentumswohnungen

Projektdetails

  • Im Soll, 22179 Hamburg / Bramfeld
  • Eigentumswohnung
  • 41
  • Gehoben
  • 7941

Lage

Auf der Karte anzeigen

Projektbeschreibung



Wohnen Im Soll

am See


Auf dem idyllischen Grundstück Im Soll am kleinen See in Bramfeld entsteht eine moderne Wohnanlage mit 41 Neubau-Eigentumswohnungen. Die Gebäude werden in Niedrigenergiebauweise als EFFIZIENZHAUS 70 errichtet und mit innovativer Heiztechnik, einem erdgasbetriebenen Blockheizkraftwerk ausgestattet.


Die Architektur


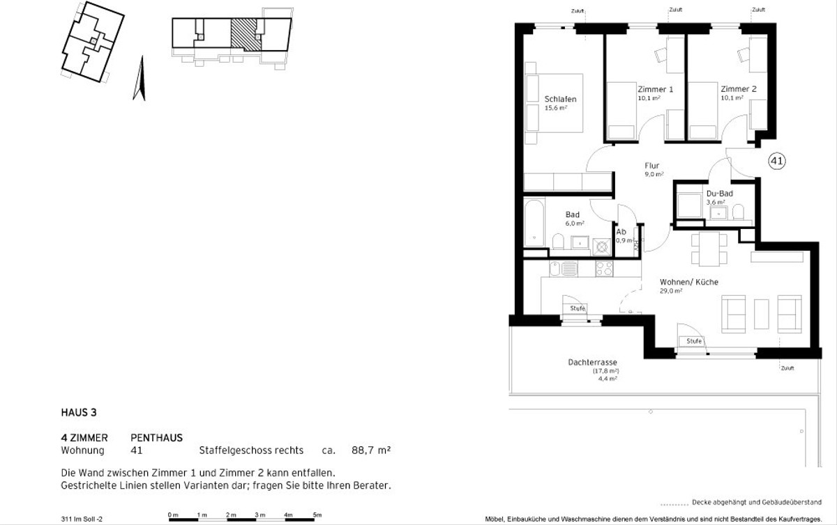
Die Wohnanlage BV 311 besteht aus zwei Gebäuden mit 41 Wohnungen, die über drei Häuser erschlossen werden. Das Haus an der Straße präsentiert sich mit in einem sandgrauen Verblendmauerwerk. Die Staffelgeschosse sind nach ortstypischem Vorbild in hellem Putz farblich abgesetzt. Die Häuser im Garten erhalten eine helle Putzfassade. Neben den Fenstern befinden sich graue, tieferliegende Putzflächen als gestaltendes Element, auch die Eingangsbereiche der Häuser 2 und 3 werden durch graue Putzflächen hervorgehoben. Die Fensteröffnungen sind überwiegend bodentief und erhalten wie die Balkone ein verzinktes Stahlgeländer.
Die Erdgeschosswohnungen öffnen sich zu den Terrassen und Gärten. Die Wohnungen in den oberen Geschossen erhalten Balkone oder Dachterrassen. An den Hauseingängen befinden sich je eine Klingel- und Sprechanlage sowie eine Kamera zur Zugangsüberwachung. In den Wohnungen kann eine Empfangseinrichtung für das Videosignal als Sonderwunsch installiert werden.
Unter den Gebäuden befindet sich die Tiefgarage sowie die Fahrradkeller und je ein Kellerabteil für jede Wohnung. Die Wohnungen sind über Aufzüge von der Tiefgarage aus zu erreichen.

Bilder zum Neubau Wohnen im Soll am See


Design und Ausstattung


MY HOME heißt die Behrendt-Designlinie Ihrer zukünftigen Wohnung. Von Architekten mit der Spezialisierung auf Innenraumgestaltung entwickelt, strahlt die Linie MY HOME Geborgenheit mit klaren Konturen und Kontrasten aus. Das Gestaltungskonzept schafft ein harmonisches Zusammenspiel von Farben, Formen und Materialien: Das Eichenparkett und die anthrazit farbene Bodenfliese in 30 x 60 cm, die Türen sowie das Schalterprogramm für die Elektroinstallation und nicht zuletzt die Sanitärobjekte und Armaturen in den Bädern sind perfekt aufeinander abgestimmt. Mit zusätzlichen Modulen passen Sie Ihre Wohnung an Ihre persönlichen Bedürfnisse an: Eine Einbauküche kann in verschiedenen Ausführungen zusätzlich erworben werden. Die Sanitär- und Elektroanschlüsse für die Einbauküche sind bei Erwerb eines Küchenmoduls im Lieferumfang enthalten, ansonsten befinden sich die Anschlüsse im Installationskanal am Schachtausgang. Weitere Module für Elektroausstattung, Baddetails oder Türen bieten wir Ihnen abhängig vom Baufortschritt an. Die Designlinien LIVING CITY und PURE NATURE können Sie gegen Aufpreis erwerben. Detaillierte Informationen erhalten Sie von Ihrem Berater.


Bilder zum Neubau Wohnen im Soll am See

Die Lage

Bramfeld - so grün und citynah


Seinen Namen verdankt Bramfeld dem in der einstigen Heideund Moorlandschaft weit verbreiteten Brambusch, dem Ginsterstrauch. Die erste urkundliche Erwähnung des einstigen Dorfes datiert bereits auf das Jahr 1271. Heute gehört Bramfeld als Stadtteil zum Bezirk Wandsbek und überzeugt seine Bewohner mit Idylle am See, viel Grün und vor allem mit einem entspannten Lebensgefühl.

Die Hamburger Innenstadt ist etwa 20 Minuten entfernt und mit dem Auto sind die Autobahnen A1 und A24 sowie die A7 schnell erreicht. Bequeme öffentliche Verbindungen bieten mehrere Buslinien, darunter auch Schnell- und Nachtbusse. Vom Bramfelder Dorfplatz aus gelangt man beispielsweise in wenigen Minuten direkt zum Bahnhof Barmbek, mit den Uund S-Bahn-Verbindungen in die Hamburger Innenstadt oder zum Flughafen Fuhlsbüttel.


Angaben gemäß EnEV:

Energieausweistyp: Bedarfsausweis
Endenergiebedarf: 55,3kWh/(m²*a)
Wesentlicher Energieträger: KWK, fossil
Baujahr: 2014


Rechtlicher Hinweis: Die Informationen zum Bauvorhaben sind ein redaktioneller Beitrag der neubau kompass AG. Er dient ausschließlich Informationszwecken und stellt kein Angebot im rechtlichen Sinne dar. Die angebotenen Inhalte werden von der neubau kompass AG nach § 2 TMG veröffentlicht und kontrolliert. Informationen zu einer etwaigen Provisionspflicht sind beim Anbieter zu erfragen. Alle Angaben, insbesondere zu Preisen, Wohnflächen, Ausstattung und Bezugsfertigkeit sind ohne Gewähr. Irrtum vorbehalten.