VERKAUFT

Dieses Bauvorhaben ist abverkauft.

Dieses Wohnbeispiel ist Teil des Bauvorhabens The Lyte

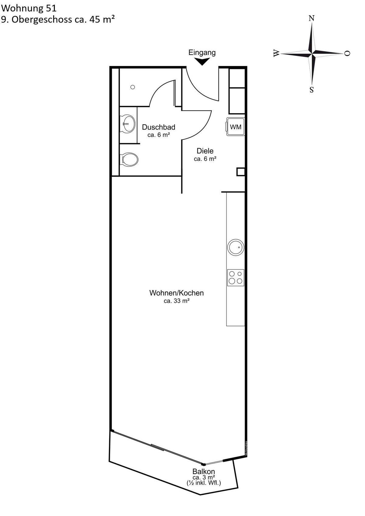
Wohnung 51

  • Bezugsfertig
  • Adresse
    Hübenerstraße 8, 20457 Hamburg / HafenCity
  • Wohntyp
    Etagenwohnung
  • Preis
    995.000 €
  • Etage
    9. OG
  • Zimmeranzahl
    1
  • Wohnfläche
    47,67 m2
  • ID
    291639

Lage

Auf der Karte anzeigen

Der Finanzierungsrechner für Ihren Wohnkredit

Mit unserem Finanzierungsrechner kannst du schnell und bequem eine Finanzierung für deine Immobilie berechnen.

Finanzierungsbeispiel

Eigenkapital: 199.000 €
Sollzinsbindung: 10 Jahre
Tilgungsrate: 1 %
Monatsrate

3.104 €

Dieses Wohnbeispiel ist Teil des Bauvorhabens
The Lyte

Anbieter

Engel & Völkers Hamburg Projektvermarktung

Stadthausbrücke 5, 20335 Hamburg

Engel & Völkers Hamburg Projektvermarktung