Dieses Bauvorhaben ist abverkauft.

BGV - Bayerische Grundstücksverwertung

Sonnenleite - Germering

Neubau von 27 Eigentumswohnungen

Projektdetails

  • Sonnenleite 23, 82110 Germering
  • Eigentumswohnung
  • 27
  • Gehoben
  • 5353

Lage

Auf der Karte anzeigen

Projektbeschreibung

Sonnenleite

Wohnen in Bestlage von Germering / Unterpfaffenhofen

Manchmal stimmt es wirklich: Nomen est omen. Zum Beispiel bei diesem attraktiven Bauvorhaben in der Germeringer Sonnenleite. Mit perfekter Verkehrsanbindung und idealer Infrastruktur entsteht hier in Kürze eine kleine Wohnanlage mit 27 Wohnungen und Tiefgarage. Die 2- bis 4-Zimmer-Wohnungen, auch "Haus im Haus" oder Maisonettestil, begeistern durch helle, großzügige Räume, eine hochwertige Ausstattung und höchste Bauqualität. Singles jeden Alters, Paare und Familien finden hier mehr als einen Ort zum Wohnen, nämlich ein echtes Zuhause.

Die Lage

Germering - Das gute Leben zwischen Stadt und Land

Der kurze Weg nach München und in die Freizeitparadiese Oberbayerns macht Germering zu einer besonders komfortablen Wohnlage. Germering ist mit zwei S-Bahn-Haltestellen der Flughafenlinie S8, mit der B2, der A96 sowie dem Autobahnring A99 optimal an den Großraum München angebunden. Auch interessant für die Freizeit sind die Verbindungen Richtung Süden und Westen ins malerische Fünfseenland und in das nahe Würmtal.

Das Bauvorhaben

Wohnqualität für alle Generationen

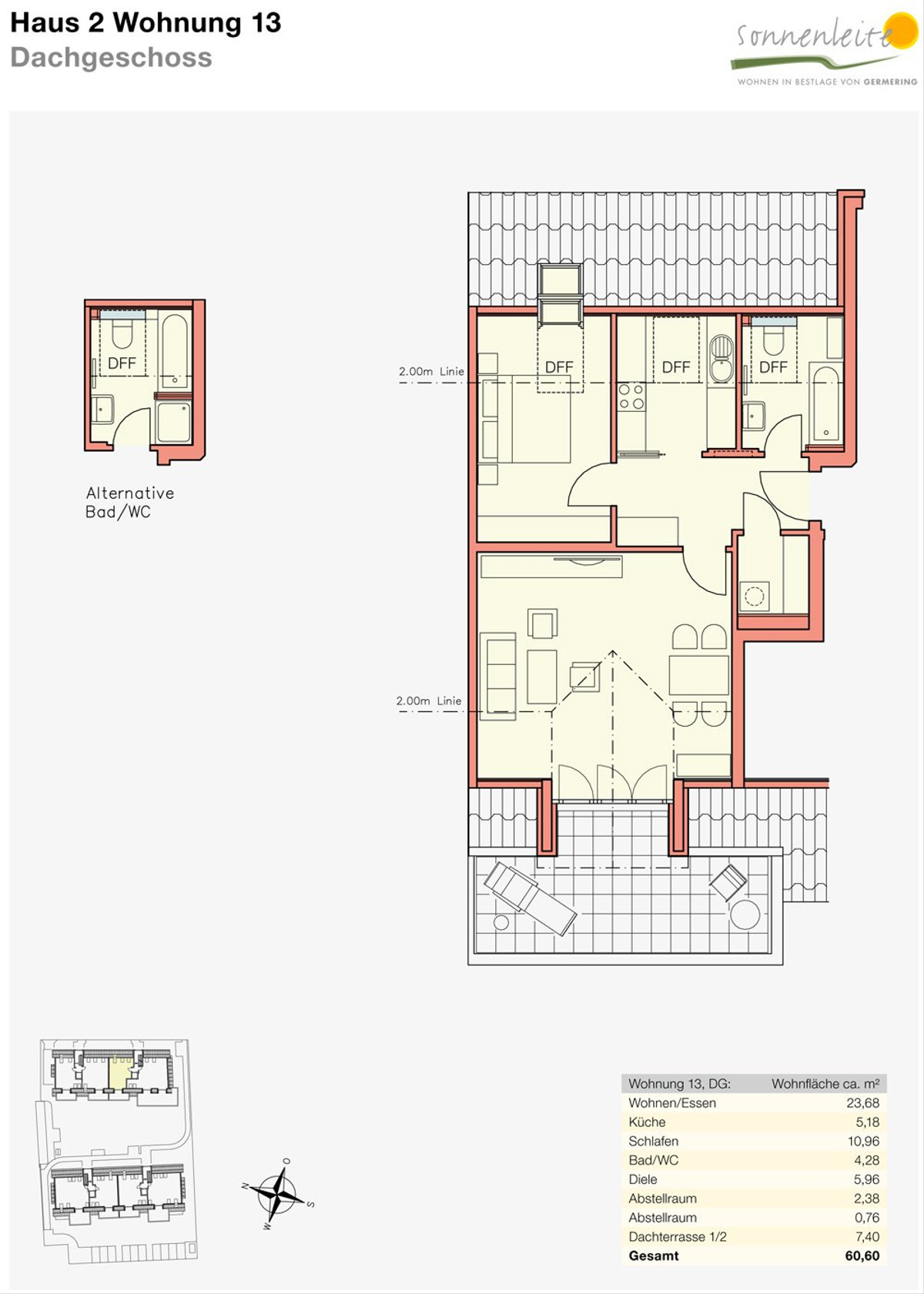
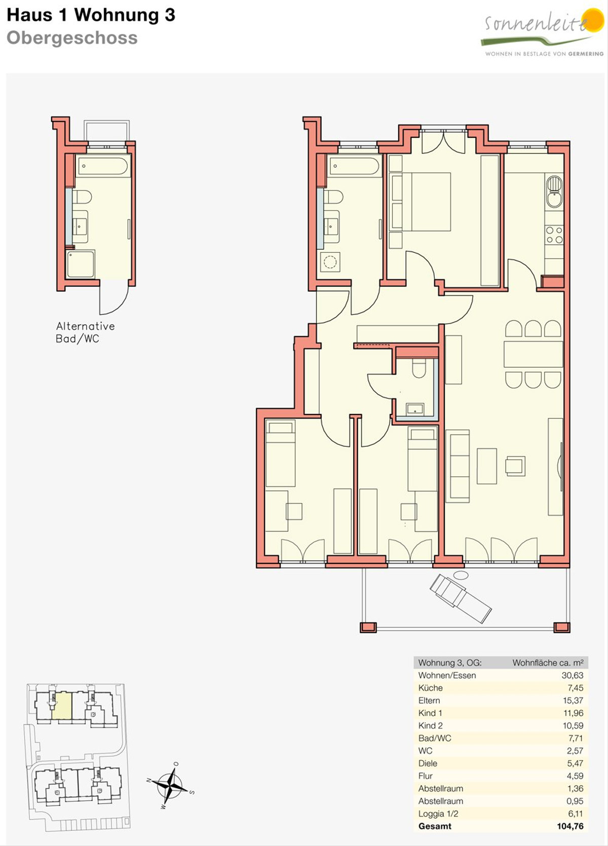
Die "Sonnenleite" besteht aus zwei Gebäuden mit jeweils drei Geschossen und zwei Eingängen je Gebäude. Alle Erdgeschosswohnungen verfügen über private Gärten, die Obergeschosse erhalten großzügige Loggien und Balkone. Im Dachgeschoss genießt man das Privileg einer herrlichen Dachterrasse. Ein ganz besonderes Wohngefühl vermitteln die angebotenen Maisonetten.

Die 2- bis 4-Zimmer-Wohnungen mit Flächen zwischen 60 und 122 Quadratmetern bieten Singles, Paaren und Familien ein großzügiges, helles und komfortables Zuhause. Nicht zuletzt die barrierelose Erreichbarkeit von der Tiefgarage bis hinauf ins Dachgeschoss garantiert in jedem Alter Unabhängigkeit und hohen Wohnwert.

Bilder zum Neubau Sonnenleite

Die Ausstattung

Einige Highlights

  • Modernes Fliesendesign in Feinsteinzeug, großformatig 25 x 50 cm als Wandbelag in vielen Farben und Oberflächen
  • Formschöne Sanitärausstattung von Keramag und Kaldewei
  • Edle Armaturen von Grohe
  • Parkettböden Eiche natur im Schiffsverband in allen Wohnräumen
  • Komfortable Fußbodenheizung in allen Räumen
  • Kontrollierte Wohnraumlüftung
  • Elektrische Rollläden
Bilder zur Immobilie in Germering

Nachhaltigkeit

Ein Haus braucht Wärm

Mit steigenden Energiekosten und erhöhtem Umweltbewußtsein wächst auch das Interesse an alternativen Formen zur Wärmegewinnung. Der Einsatz eines Erdgas-Blockheizkraftwerks ist so eine Form und bringt viele Vorteile.

  • hohe Effizienz
  • produziert Strom und Wärme vor Ort
  • keine Netzverluste bei der Einspeisung des Stroms und der Nutzung von Wärme
  • Vergütung des erzeugten Stroms
  • Umweltschonende Technologie: Das Blockheizkraftwerk (BHKW) produziert mit Hilfe einer Gasturbine, die einen Generator antreibt, Strom. Gleichzeitig wird die dabei entstehende Abwärme zum Heizen der Fußbodenheizung und des Brauchwassers der Wohnungen genutzt.

Die Kombination aus idealer Infrastruktur, ruhiger Wohnlage und bester Bauqualität macht die Wohnungen an der Sonnenleite im gefragten Großraum München zu einem hoch attraktiven Angebot - zum Selbstbezug ebenso wie zur Kapitalanlage.

Rechtlicher Hinweis: Die Informationen zum Bauvorhaben sind ein redaktioneller Beitrag der neubau kompass AG. Er dient ausschließlich Informationszwecken und stellt kein Angebot im rechtlichen Sinne dar. Die angebotenen Inhalte werden von der neubau kompass AG nach § 2 TMG veröffentlicht und kontrolliert. Informationen zu einer etwaigen Provisionspflicht sind beim Anbieter zu erfragen. Alle Angaben, insbesondere zu Preisen, Wohnflächen, Ausstattung und Bezugsfertigkeit sind ohne Gewähr. Irrtum vorbehalten.

Anbieter

BGV - Bayerische Grundstücksverwertung

Rüdesheimer Straße 15, 80686 München

BGV - Bayerische Grundstücksverwertung