Dieses Wohnbeispiel ist Teil des Bauvorhabens Paulshöfe

4-Zi.-Maisonettewohnung, Terrasse mit Garten und zwei Bäder

  • Effizienzhaus 40
  • Effizienzhaus 55 EE
  • Im Rohbau
  • Adresse
    Lilli-Marx-Straße 32, 40597 Düsseldorf / Benrath
  • Wohntyp
    Apartment
  • Preis
    629.900 €
  • Zimmeranzahl
    4
  • Badezimmer
    2
  • Schlafzimmer
    3
  • Wohnfläche
    105,13 m2
  • Baujahr
    2027
  • Bezugsfertig ab
    Sommer 2027
  • ID
    293684
  • Anbieter Objekt-ID
    132862701#Z1AxyZ

Merkmale

  • Barrierefrei
  • Fußbodenheizung
  • Garten bzw. Gartennutzung
  • Keller
  • Neubau
  • Personenaufzug

Lage

Auf der Karte anzeigen

Im rechtsrheinischen Benrath wohnen Sie angenehm ruhig – und sind doch schnell mittendrin: Der Düsseldorfer Hauptbahnhof ist mit dem Regionalzug in nur 12 Minuten erreichbar, auch die S-Bahn bringt Sie zügig ans Ziel. Wer lieber mit dem Rad oder zu Fuß unterwegs ist, kann den Rhein ganz bequem über mehrere Brücken queren – ideal für spontane Ausflüge in die Stadt oder ans andere Ufer. Naturfreunde finden Erholung direkt vor der Tür: Die Urdenbacher Kämpe lädt mit Wiesen, Auwäldern und alten Obstbäumen zu Spaziergängen oder Radtouren ein. Ein Ort, der entschleunigt – und zeigt, wie nah Natur und Alltag beieinanderliegen können.

Ausstattung

- barrierefrei
- Maisonettewohnung
- Terrasse und Gartennutzung
- zwei Bäder (im EG mit bodengleicher Dusche und im OG mit Badewanne)
- Handtuchheizkörper
- offene Wohnküche
- Fußbodenheizung
- pflegeleichter Designboden und Fliesen
- bodentiefe Fenster
- Schallschutzfenster
- eigener Keller

Beschreibung

Zwei Etagen, ein Zuhause mit Charakter, diese Maisonettewohnung überzeugt mit clever aufgeteilten Räumen und einem privaten Garten.

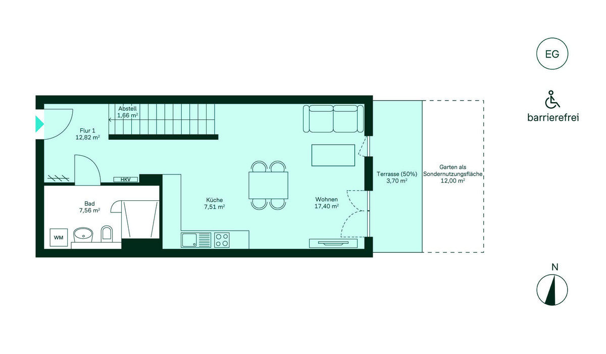
Komfortabel wohnen auf zwei Ebenen, barrierefrei und mit viel Platz für individuelle Wohnideen. Diese Maisonettewohnung bietet Ihnen ein angenehmes Wohngefühl mit praktischen Details für den Alltag. Im Erdgeschoss befinden sich ein einladender Eingangsbereich mit Platz für Ihre Garderobe, ein Duschbad sowie eine funktional geschnittene Küche, die direkt in den hellen Wohnbereich übergeht. Von hier aus gelangen Sie auf die Terrasse mit Gartenanteil, ein schöner Ort, um den Tag im Freien zu genießen. Im ersten Obergeschoss warten drei weitere Zimmer, die sich ideal als Schlaf-, Kinder- oder Arbeitszimmer eignen. Ergänzt wird das Raumangebot durch ein Badezimmer mit Badewanne. Die barrierefreie Gestaltung macht dieses Zuhause besonders komfortabel für alle, die Bewegungsfreiheit und Wohnqualität zu schätzen wissen.

Sonstiges

Festpreisgarantie für Ihre Planungssicherheit

Mit unserer Festpreisgarantie bleibt Ihr vertraglich vereinbarter Kaufpreis unverändert. Sie wählen Ihre Wunschimmobilie zu dem entsprechenden Kaufpreis, ohne versteckte Kosten. Selbst bei schwankenden Rohstoffpreisen behalten Sie von Anfang an finanzielle Klarheit und können mit einem sicheren Gefühl planen.

Der Finanzierungsrechner für Ihren Wohnkredit

Mit unserem Finanzierungsrechner kannst du schnell und bequem eine Finanzierung für deine Immobilie berechnen.

Finanzierungsbeispiel

Eigenkapital: 125.980 €
Sollzinsbindung: 10 Jahre
Tilgungsrate: 1 %
Monatsrate

1.965 €

Dieses Wohnbeispiel ist Teil des Bauvorhabens
Paulshöfe

Exposé/Preisliste anfordern
Pflichtfelder *

Wir behandeln deine Daten vertraulich. Mit dem Absenden erklärst du dich mit der Verarbeitung deiner Anfrage gemäß unserer Datenschutzerklärung und AGB für Verbraucher:innen einverstanden.

Anbieter