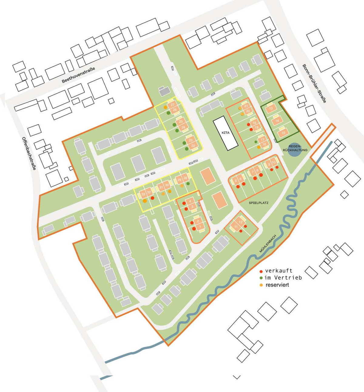
Dieses Wohnbeispiel ist Teil des Bauvorhabens Mertener Mühle

*Projektvorstellung & Open-House am So., 17.05., um 12 Uhr, Gustav-Mahler-Str. 31, 53332 Bornheim*

  • Adresse
    Helmut-Schmidt-Straße, 53332 Bornheim-Rheinland / Merten
  • Wohntyp
    Doppelhaushälfte
  • Preis
    509.900 €
  • Zimmeranzahl
    6
  • Badezimmer
    1
  • Schlafzimmer
    4
  • Wohnfläche
    171 m2
  • Gesamtfläche
    190 m2
  • Grundstücksfläche
    330 m2
  • Baujahr
    2026
  • Bezugsfertig ab
    vsl. Herbst 2027
  • Anzahl Außenstellplätze
    2
  • ID
    278189
  • Anbieter Objekt-ID
    3395-17

Merkmale

  • Abstellraum
  • Badewanne
  • Balkon
  • Befeuerung: Luftwärmepumpe
  • Dusche
  • Freiplatzstellplatz
  • Fußbodenheizung
  • Garten bzw. Gartennutzung
  • Gäste-WC
  • Keller

Lage

Auf der Karte anzeigen

WILLKOMMEN IN BORNHEIM
Das Neubauprojekt „Mertener Mühle - Schöner Leben im Rheinland“ liegt eingebettet in ein gewachsenes Wohngebiet im beschaulichen Bornheimer Stadtteil Merten, der zu den größten „Vororten“ der Gemeinde zählt. Aufgrund der sehr guten Infrastruktur mit mehreren KITAs, einer Grundschule, einer Sekundarschule, Arztpraxen, Einkaufsmöglichkeiten, diversen Restaurants und Gaststätten, ist der Stadtteil insbesondere bei Familien sehr beliebt. 

Einkäufe und kleine Besorgungen erledigen Sie einfach zu Fuß. Auch der Weg zur KITA ist nicht weit, denn auf dem Baugebiet wird eine neue Kindertagesstätte errichtet. Die umliegenden Felder und Wälder locken Aktive zu ausgedehnten Wanderungen oder Joggingrunden ins Freie. Generell gibt es in Merten viel zu entdecken: Zahlreiche Naherholungsgebiete und Wanderwege, Sehenswürdigkeiten wie das Schloss Bornheim oder die Herseler Werth, ein buntes Vereinsleben, Kultur und Brauchtum tragen zur hohen Lebensqualität der Gemeinde bei - hier ist das Leben lebenswert.

Durch die sehr gute Anbindung über ÖPNV und die Autobahn profitieren Berufstätige von kurzen Wegen nach Bonn oder Köln - und als „Gigabit-Stadt“ treibt Bornheim den Glasfaserausbau konsequent voran, so dass auch das Arbeiten von zu Hause dank schnellem Internet reibungslos möglich ist.

Ausstattung

Die moderne Bauweise beinhaltet:
- tragende und nichttragende Innenwände werden gemauert
- Hochwertige 3-fach verglaste Kunststofffensterelemente mit Rollladen
- Eigene Luft­-Wasser­-Wärmepumpe mit großem Warm­wasserspeicher
- PV-Anlage
- Fußbodenheizung mit separaten Raumthermostaten
- Keine Verwendung von Fertigbauteilen
- Voll ausgestattetes Tageslichtbadezimmer mit Badewanne und bodengleicher Dusche inkl. Boden­- und Wandfliesen
- Gäste­-WC mit Boden­- und Wandfliesen
- Gepflasterte Terrasse mit Außenzapfstelle
- 2-Holm-Stahltreppe mit Treppenstufen und Holzhandlauf aus Buche
- Blowerdoortest inklusive

Haustyp Tectum 170 - mit Keller:
- Vollunterkellerung, Ausführung in WU­-Beton inkl. Kellerdämmung (weiße Wanne)
- Ein Raum im Untergeschoss wird zur vollständigen wohnlichen Nutzung als Homeoffice/Gästezimmer/Hobbyraum mit Fußbodenheizung ausgestattet

Beschreibung

Im „Vorort“ Merten - in Bornheim - entstehen in Kürze mit dem Neubauprojekt „Mertener Mühle - Schöner Leben im Rheinland“ der EHP Immobiliengruppe GmbH 33 Häuser zum Kauf, davon 30 Doppelhaushälften und drei freistehende Einfamilienhäuser auf Erbbaurechtsgrundstücken.

Dürfen wir Ihnen Ihr zukünftiges Haus vorstellen? Im Haustyp Tectum 170 ist viel Platz auch für die große Familie - denn sechs Zimmer bieten jede Menge Raum für das harmonische Zusammenleben unter einem Dach. Das Haus bietet zudem einen Keller.

In den ersten 10 Jahren zahlen Sie sogar nur 50 % des Erbbauzinses, nämlich 190 € monatlich.

Die großzügig geschnittenen Doppelhaushälften dieses Haustyps kommen auf eine Gesamtfläche von 206 m² , davon 171 m² Wohnfläche, die sich auf vier Ebenen verteilt. Die Grundstücksgrößen variieren dabei von ca. 300 bis 440 m² .

Ihr neues Heim betreten Sie durch den überdachten Eingang und erreichen von dort aus das Erdgeschoss mit Diele, Gäste-WC, Esszimmer mit Küche und das großzügige Wohnzimmer, dem Herzstück des Hauses. Über dieses gelangen Sie zur Terrasse und in den großen Garten – der perfekte Ort für Grillabende mit Ihren Liebsten oder ein Familienfrühstück am Sonntagmorgen. In der oberen Etage befinden sich drei Schlafzimmer – zwei Kinderzimmer sowie das Elternschlafzimmer mit begehbarer Ankleide – und ein großes Badezimmer. Eine Etage höher findet sich das geräumige und ausgebaute Dachgeschoss, das einen idealen Rückzugsort für beispielsweise das Hobby oder das Arbeiten von zu Hause bietet. Das Haus ist voll unterkellert - ein großzügiger Abstell-/Hauswirtschafts-/ bzw. Haustechnikraum machen das Leben praktisch. Ein weiteres Gäste- oder Arbeitszimmer mit Tageslicht bietet genug Platz für Ihre Wohnträume.

Energienachweis

Energieausweistyp: Bedarfsausweis
Gültigkeit: 12.12.2034
Endenergiebedarf: 18.2
Energieträger: Luftwärmepumpe
Ausstelldatum: 2024-12-13
Energieklasse: A+
18.2 kWh/(m²*a)
Energieeffizienzklasse A+
  • A+
  • A
  • B
  • C
  • D
  • E
  • F
  • G
  • H
  • 0
  • 25
  • 50
  • 75
  • 100
  • 125
  • 150
  • 175
  • 200
  • 225
  • > 250

Sonstiges

Die in diesem Exposé sowie in Anlagen und Plänen enthaltenen Angaben und Objektbeschreibungen beruhen ausschließlich auf Angaben des Eigentümers bzw. sonstiger Dritter. Der Makler hat die sachliche Richtigkeit und Vollständigkeit nicht überprüft und übernimmt daher keine Haftung.
Der dargestellte Grundriss ist nicht maßstabgerecht und dient nur als Einrichtungsvorschlag. Maßgeblich sind die Angaben im Kaufvertrag.

------------------------------------------------
Der Verkauf ist für den Erwerber provisionsfrei.
------------------------------------------------

CLOUDBERRY Real Estate GmbH
-Neubauwohnen im Rheinland-
Als spezialisierter Vertrieb für Neubauprojekte unterstützen wir Sie bei der Suche nach der passenden Immobilie. Unser Anspruch ist es, Sie umfangreich und kompetent zu beraten, unabhängig davon, ob es sich um Ihr neues Zuhause oder eine attraktive Kapitalanlage handelt. Bei Bedarf kümmern wir uns auch um eine individuell passende Finanzierung und den Verkauf Ihrer bisherigen Immobilie.

Informationen zum Projekt:
https://www.mertener-muehle.de

Informationen zur CLOUDBERRY Real Estate GmbH:
www.cloudberry.de

Telefon: 0221 429142-33
E-Mail: vertrieb@mertener-muehle.de

www.instagram.com/cloudberryrealestate
www.facebook.com/cloudberryrealestate

Der Finanzierungsrechner für Ihren Wohnkredit

Mit unserem Finanzierungsrechner kannst du schnell und bequem eine Finanzierung für deine Immobilie berechnen.

Finanzierungsbeispiel

Eigenkapital: 101.980 €
Sollzinsbindung: 10 Jahre
Tilgungsrate: 1 %
Monatsrate

1.571 €

Dieses Wohnbeispiel ist Teil des Bauvorhabens
Mertener Mühle

Anbieter kontaktieren
Pflichtfelder *

Wir behandeln deine Daten vertraulich. Mit dem Absenden erklärst du dich mit der Verarbeitung deiner Anfrage gemäß unserer Datenschutzerklärung und AGB für Verbraucher:innen einverstanden.