Dieses Wohnbeispiel ist Teil des Bauvorhabens Langenfelder Damm 83

Exklusives Neubau-Penthouse mit vier Dachterrassen und Premiumausstattung

  • Effizienzhaus 55 EE
  • Provisionsfrei
  • Adresse
    Langenfelder Damm 83, 22525 Hamburg / Stellingen
  • Wohntyp
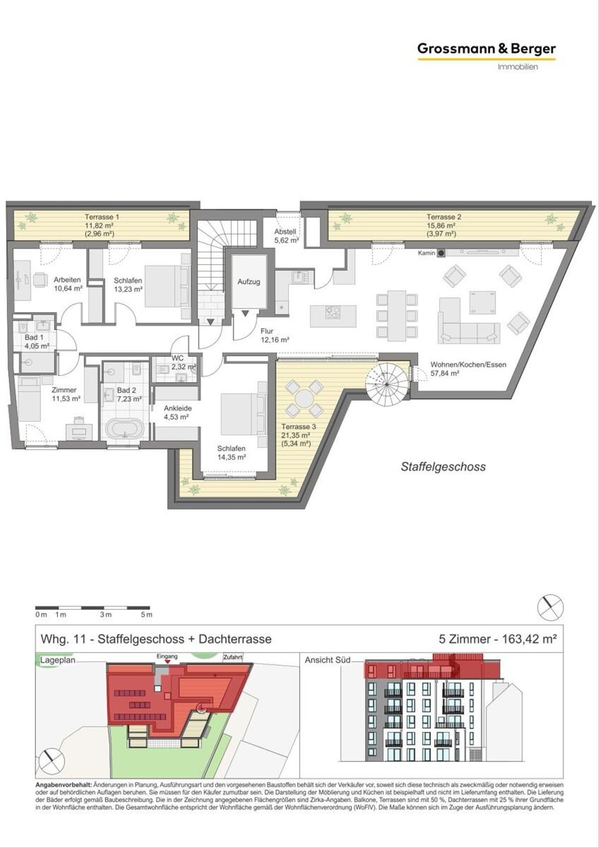
    Penthouse
  • Preis
    1.949.000 €
  • Etage
    5. OG (Penthouse)
  • Zimmeranzahl
    5
  • Badezimmer
    2
  • Schlafzimmer
    4
  • Wohnfläche
    163,42 m2
  • Baujahr
    2025
  • Bezugsfertig ab
    Sofort bezugsfertig
  • ID
    291686
  • Anbieter Objekt-ID
    NB 8632_11

Merkmale

  • Badewanne
  • Befeuerung: Luftwärmepumpe
  • Dusche
  • Einbauküche
  • Fliesenboden
  • Fußbodenheizung
  • Gäste-WC
  • Offene Küche
  • Parkettboden
  • Personenaufzug

Lage

Auf der Karte anzeigen

Der Langenfelder Damm 83 befindet sich in zentraler Lage von Hamburg-Stellingen, unmittelbar an der Grenze zu Eimsbüttel – einem der beliebtesten und lebenswertesten Stadtteile der Hansestadt. Die nahegelegene Osterstraße gilt als Herzstück Eimsbüttels und ist nur wenige Gehminuten entfernt. Mit ihren charmanten Cafés, Restaurants, Boutiquen und kleinen Feinkostläden oder dem Wochenmarkt bietet sie eine abwechslungsreiche Mischung aus urbanem Flair und hanseatischer Gelassenheit. Auch die Infrastruktur überzeugt auf ganzer Linie: Supermärkte, Kitas und Schulen befinden sich im direkten Umfeld und machen den Standort besonders attraktiv für Familien. Dank der hervorragenden Anbindung an den öffentlichen Nahverkehr sind Sie bestens vernetzt – die U-Bahn-Stationen „Lutterothstraße“ und „Osterstraße“ (Linie U2) sowie die S-Bahn-Station „Langenfelde“ (Linien S3 und S21) sind bequem fußläufig erreichbar. So gelangen Sie in nur wenigen Minuten in die Hamburger Innenstadt. Für Freizeit und Erholung bieten zahlreiche Sportvereine, Fitness- und Wellnessangebote oder das weitläufige Niendorfer Gehege sowie mehrere Kleingartenanlagen ein breites Angebot, so entsteht ein ideales Gleichgewicht zwischen urbaner Lebendigkeit und privater Rückzugsoase – ein Standort, der gleichermaßen zentral, grün und lebenswert ist.

Ausstattung

Die Wohnungen beeindrucken mit einer durchdachten Raumaufteilung, hochwertigen und pflegeleichten Materialien sowie einem stimmigen Wohnkonzept. Mittelpunkt jeder Einheit ist der offene Wohn-, Ess- und Kochbereich, der mit großen Fensterflächen und viel Tageslicht eine einladende Atmosphäre schafft. Balkone, Terrassen oder Dachterrassen mit hochwertigem WPC-Belag erweitern den Wohnraum ins Freie. Zur hochwertigen Ausstattung gehören Fußbodenheizung, edle Bodenbeläge, stilvolle Sanitärobjekte und moderne Bäder mit bodengleicher Dusche, teilweise zusätzlicher Badewanne sowie separatem Gäste-WC. Glasfaseranschlüsse ermöglichen eine zukunftssichere digitale Infrastruktur. Ob Elternschlafzimmer, Kinderzimmer, Gäste- oder Arbeitszimmer – alle bieten vielfältige Nutzungsmöglichkeiten und ausreichend Platz für individuelle Wohnideen. Abstellräume innerhalb der Wohnungen sorgen für zusätzlichen Stauraum und Alltagstauglichkeit. Das Penthouse bietet direkten Aufzugzugang und beeindruckende Ausblicke über die Umgebung von den verschiedenen Dachterrassen. Hier verbindet sich modernes Design mit urbaner Eleganz – Wohnen auf höchstem Niveau.

Beschreibung

In zentraler Lage an der Grenze zu Eimsbüttel bietet das moderne Wohnensemble insgesamt elf Eigentumswohnungen, die urbanes Leben und entspannte Wohnqualität ideal verbinden – zentral gelegen, bestens angebunden und in einem Wohnumfeld, das künftig durch eine 30-km/h-Zone zusätzlich aufgewertet wird. Das im Jahr 2025 fertiggestellte Neubauprojekt bietet einen vielfältigen Wohnungsmix von 3- bis 5-Zimmer-Einheiten mit Wohnflächen zwischen ca. 89 m² und 163 m² – vom Erdgeschoss bis hin zum exklusiven Penthouse. Die energieeffiziente Bauweise im KfW-55-EE-Standard sowie eine integrierte Photovoltaikanlage sorgen für nachhaltiges Wohnen und niedrige Energiekosten. Ein Personenaufzug verbindet alle Geschosse komfortabel miteinander und führt bis in das Untergeschoss, in dem sich die privaten Kellerräume sowie ein praktischer Fahrradabstellraum befinden. Das Gebäude fügt sich harmonisch in die gewachsene Umgebung ein und überzeugt durch eine zeitlose Architektur mit klaren Linien und hochwertigen Materialien. Die Wohnungen sind ab sofort verfügbar und befinden sich im Erstbezug – perfekt für alle, die Wert auf Qualität, Komfort und Nachhaltigkeit legen.

Energienachweis

Energieausweistyp: Bedarfsausweis
Gültigkeit: 2032-12-01
Endenergiebedarf: 22.3
Energieträger: LUFTWP
Energieklasse: A+
22.3 kWh/(m²*a)
Energieeffizienzklasse A+
  • A+
  • A
  • B
  • C
  • D
  • E
  • F
  • G
  • H
  • 0
  • 25
  • 50
  • 75
  • 100
  • 125
  • 150
  • 175
  • 200
  • 225
  • > 250

Sonstiges

Die Wohnungen sind ab sofort bezugsfertig.

Der Kaufpreis ist für den Erwerber courtagefrei.

Dieses Wohnbeispiel ist Teil des Bauvorhabens
Langenfelder Damm 83

Anbieter kontaktieren
Pflichtfelder *

Wir behandeln deine Daten vertraulich. Mit dem Absenden erklärst du dich mit der Verarbeitung deiner Anfrage gemäß unserer Datenschutzerklärung und AGB für Verbraucher:innen einverstanden.

Anbieter

Grossmann & Berger Hamburg

Bleichenbrücke 9, 20354 Hamburg

Grossmann & Berger Hamburg