Dieses Wohnbeispiel ist Teil des Bauvorhabens HERBART VON LIETZENSEE

Idyllische Garten-Oase am Lietzensee: Residieren Sie in exklusiver Lage

  • Verkaufsstart erfolgt
  • Adresse
    Herbartstraße 23, 14057 Berlin / Charlottenburg
  • Wohntyp
    Erdgeschosswohnung
  • Preis
    929.000 € (zzgl. Provision)
  • Provision für Käufer
    3,57%
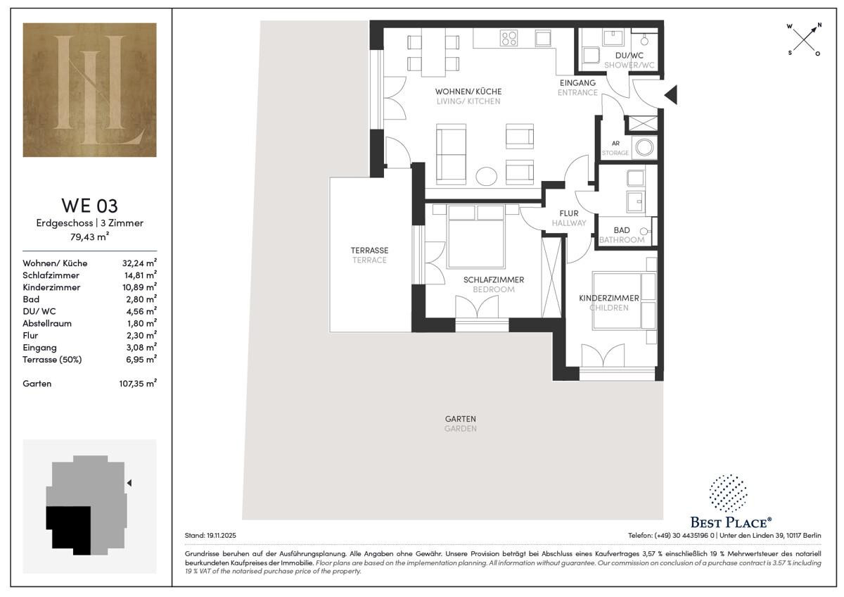
  • Zimmeranzahl
    3
  • Wohnfläche
    79,43 m2
  • Baujahr
    2026
  • ID
    293418
  • Anbieter Objekt-ID
    HERB-WE03

Merkmale

  • Befeuerung: Fernwärme
  • Fußbodenheizung
  • Garten bzw. Gartennutzung
  • Keller
  • Personenaufzug
  • Tiefgaragenstellplatz

Lage

Auf der Karte anzeigen

Wie ein unsichtbares Band verbinden die Grunewalder Seen die Metropole mit dem grünen Umland. Einer von ihnen ist der Lietzensee, der mit dem umliegenden Park eine Ruhe-Oase für die Bewohner ist. Unter dem Kunstgärtner Ferdinand Deppe entstand hier im 19. Jahrhundert eine der opulentesten Rosen- und Dahlienzuchten. Von dort aus strömte der Duft frischer Blumen in die ganze Umgebung. Diese besondere Atmosphäre hat sich der Park bewahrt. Bei einem Spaziergang um den See oder auf einer der Liege- und Picknickwiesen beobachten Sie an lauen Sommerabenden den Sonnenuntergang und genießen das Leben im Hier und Jetzt. Einen traumhaften Blick über den See haben Sie von der Großen Kaskade, denn sie rahmt mit ihrer Pergola am Ufer dieses einzigartige Panorama. Zwischen den intensiv begrünten Ufern tauchen stuckverzierte Villen und vornehme Wohnhäuser auf. Nach einem schönen Spaziergang lädt das Bootshaus Stella zum Verweilen ein. Der Biergarten ist im Sommer besonders beliebt. Und wer von hier aus weiterzieht, gelangt nur wenige Schritte später zu einem Ort, an dem die Eleganz der Natur mit der Pracht vergangener Zeiten verschmilzt: Anmut und Schönheit: Das Schloss Charlottenburg ist der Inbegriff royaler Wohnkultur. Schon früh wurde die Sommerresidenz samt ihrem weitläufigen Garten zum Lieblingsort preußischer Könige und Kurfürsten. Und auch heute noch herrscht rund um den Schlossplatz, die Orangerie und den großen Schlossgarten ein ganz besonderes Flair. Ob bei einem winterlichen Spaziergang durch den verschneiten Park, einem Besuch auf dem romantischen Weihnachtsmarkt vor dem Schloss Charlottenburg oder einer Joggingrunde an warmen Sommerabenden, das Schloss zieht Groß und Klein in seinen Bann und gehört mit seinem einzigartigen Charme zu den vornehmsten Nachbarn Ihres neuen Zuhauses.

Ausstattung

•Terrasse und Garten ca. 107,35 m2 (SNR)
•Bodentiefe Aluminiumfenster mit 3-fach-Isolierverglasung
•2 Badezimmer mit Rainshower Dusche
•Echtholzparkett mit Fußbodenheizung
•Abstellraum und Kellerabteil
•Digitale Schließanlage
•Video-Gegensprechanlage
•Tiefgaragenstellplatz (separat zu erwerben)
•Vorrüstung für E-Ladestationen
•Aufzug

Beschreibung

In einer eleganten, erhabenen und zeitlosen Neubau-Villa, Architektur Max Dudler, empfängt Sie dieses lichtdurchflutete Garten-Apartment in direkter Nähe zum idyllischen Lietzensee mit Terrasse und großem Privatgarten. Ein gemütlicher Rückzugsort: stilvoll und elegant.

Jeder Tag beginnt für Sie mit einem einzigartigen Blick ins Grün des parkähnlich angelegten Grundstücks, denn sowohl vom geschmackvollen Wohn-, Koch- und Essbereich als auch Ihrem Schlafzimmer haben Sie Zugang zur Terrasse und den die Wohnung komplett umschließenden eigenen Garten. Hier genießen Sie perfekte Privatheit und Ruhe. Während beide Schlafzimmer und eines der Bäder vom Wohnbereich getrennt zugänglich sind, eröffnet das offene Wohnkonzept viel Freiraum zur persönlichen Stilentfaltung. Diese attraktive Wohnung wird Ihren Wunsch nach Geborgenheit, erstklassigem Komfort und Alltagsluxus mit bodentiefen Fenstern, hochwertigem Fischgrät-Parkett und Wellness-Badezimmer mit handverlesenen Designlinien erfüllen. Gerne beraten wir Sie zu den unterschiedlichen Ausstattungslinien.

Herbart von Lietzensee wird mehr als ein Zuhause sein: Ihr Ort, um in Balance zu bleiben. So gehen Sie bewusster durch den Alltag, können den Blick sowohl innen als auch nach außen schweifen lassen – inspiriert von Wärme und Gemütlichkeit. Willkommen am Lietzensee.

Energienachweis

Energieausweistyp: Bedarfsausweis
Gültigkeit: 2035-11-26
Endenergiebedarf: 54.2
Energieträger: FERN
Energieklasse: B
54.2 kWh/(m²*a)
Energieeffizienzklasse B
  • A+
  • A
  • B
  • C
  • D
  • E
  • F
  • G
  • H
  • 0
  • 25
  • 50
  • 75
  • 100
  • 125
  • 150
  • 175
  • 200
  • 225
  • > 250

Der Finanzierungsrechner für Ihren Wohnkredit

Mit unserem Finanzierungsrechner kannst du schnell und bequem eine Finanzierung für deine Immobilie berechnen.

Finanzierungsbeispiel

Eigenkapital: 185.800 €
Sollzinsbindung: 10 Jahre
Tilgungsrate: 1 %
Monatsrate

2.899 €

Dieses Wohnbeispiel ist Teil des Bauvorhabens
HERBART VON LIETZENSEE

Anbieter kontaktieren
Pflichtfelder *

Wir behandeln deine Daten vertraulich. Mit dem Absenden erklärst du dich mit der Verarbeitung deiner Anfrage gemäß unserer Datenschutzerklärung und AGB für Verbraucher:innen einverstanden.

Anbieter