Dieses Wohnbeispiel ist Teil des Bauvorhabens Henrietten Gärten

Rückzugsort im Grünen: Reihenhaus mit Garten, Parkett & Fußbodenheizung

  • Baubeginn erfolgt
  • Verkaufsstart erfolgt
  • Adresse
    Friedrich-Naumann-Straße 61, 16540 Hohen Neuendorf
  • Wohntyp
    Reihenhaus
  • Preis
    489.000 € (zzgl. Provision)
  • Provision für Käufer
    3,57 %
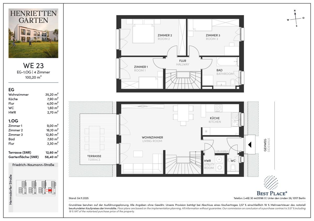
  • Zimmeranzahl
    4
  • Wohnfläche
    100,2 m2
  • Baujahr
    2026
  • ID
    295032
  • Anbieter Objekt-ID
    FNS-WE23

Merkmale

  • Fußbodenheizung
  • Garten bzw. Gartennutzung

Lage

Auf der Karte anzeigen

•200 m zu Fuß zum Spielplatz
•300 m zu Fuß zur Bushaltestelle (Bus 822)
•450 m zu Fuß zum Bahnhof Hohen Neuendorf-West (RB20)
•2 Min. mit dem Fahrrad zur Kita Zauberstein und Grundschule
•6 Min. mit dem Fahrrad zur Marina Havelbaude
•7 Min. mit dem Fahrrad zum Marie-Curie-Gymnasium
•8 Min. mit dem Auto zum S-Bahnhof Hohen Neuendorf
•11 Min. mit dem Auto zum Golfclub Stolper Heide
•30 Min. mit dem Auto zum Ernst-Reuter-Platz (City-West)

Ausstattung

• Offener Wohn-, Koch- und Essbereich mit direktem Zugang zur Terrasse
• Terrasse und Garten in Westausrichtung
• Fenster mit 3-fach Isolierverglasung
• Fußbodenheizung in allen Wohnräumen
• Eichen-Marken-Fertigparkett (drei Ausführungen zur Auswahl)
• Tageslichtbad mit bodengleicher Dusche und Badewanne
• Markensanitär im Bad (u. a. Grohe, Hoesch, Geberit)
• Gäste-WC und separater Hauswirtschaftsraum im Erdgeschoss
• Luft-Wasser-Wärmepumpe mit Kühlfunktion
• Photovoltaik-Anlage auf dem Dach
• Glasfaseranschluss für Highspeed-Internet
• Pkw-Stellplatz mit Vorrüstung für E-Mobilität
• Baucontrolling durch TÜV SÜD

Beschreibung

Ein Zuhause für alle Sinne: Dieses moderne Reihenhaus empfängt Sie mit Blick auf die eigene Terrasse und den Garten, der im Sommer zur blühenden Oase wird und im Winter eine idyllische Ruhe ausstrahlt. Bereits der freundliche Eingangsbereich vermittelt ein Gefühl des Ankommens und öffnet sich fließend zum offenen Wohn-, Koch- und Essbereich, dem lebendigen Mittelpunkt des Hauses. Bodentiefe Terrassentüren lassen viel Licht herein und geben den Blick in den Garten frei. Ob gemeinsames Frühstück auf der Terrasse, spielende Kinder im Grünen oder lange Sommerabende mit der Familie und Freunden – hier entstehen Momente, die bleiben.

Im Obergeschoss liegen die privaten Räume des Hauses. Das großzügige Elternzimmer sowie zwei Kinder- oder Arbeitszimmer werden vom hellen Tageslichtbad mit Badewanne, Dusche und hochwertigem Markensanitär zu einem stimmigen Wohnkonzept ergänzt.

Für einen besonders hohen Wohnkomfort sorgt die Luft-Wasser-Wärmepumpe mit Kühlfunktion in den Sommermonaten. Echtholzparkett und Fußbodenheizung sorgen ergänzen das angenehme Raumklima. Und die 3-fach isolierverglasten Fenster in Kombination mit der eigenen PV-Anlage reduzieren die Wohnnebenkosten. Abgerundet wird das attraktive Reiheneckhaus vom eigenen Pkw-Stellplatz samt E-Vorrüstung.

Energienachweis

Energieausweistyp: Bedarfsausweis
Gültigkeit: 1935-08-18
Endenergiebedarf: 29.9
Energieträger: ELECTRICITY
Energieklasse: A+
29.9 kWh/(m²*a)
Energieeffizienzklasse A+
  • A+
  • A
  • B
  • C
  • D
  • E
  • F
  • G
  • H
  • 0
  • 25
  • 50
  • 75
  • 100
  • 125
  • 150
  • 175
  • 200
  • 225
  • > 250

Der Finanzierungsrechner für Ihren Wohnkredit

Mit unserem Finanzierungsrechner kannst du schnell und bequem eine Finanzierung für deine Immobilie berechnen.

Finanzierungsbeispiel

Eigenkapital: 97.800 €
Sollzinsbindung: 10 Jahre
Tilgungsrate: 1 %
Monatsrate

1.506 €

Dieses Wohnbeispiel ist Teil des Bauvorhabens
Henrietten Gärten

Anbieter kontaktieren
Pflichtfelder *

Wir behandeln deine Daten vertraulich. Mit dem Absenden erklärst du dich mit der Verarbeitung deiner Anfrage gemäß unserer Datenschutzerklärung und AGB für Verbraucher:innen einverstanden.

Anbieter