Dieses Bauvorhaben ist abverkauft.
Projektdetails
-
Adresse12437 Berlin / Treptow-Köpenick
-
WohntypEigentumswohnung
-
Einheiten36
-
KategorieGehoben
-
Projekt-ID8919
Lage
Weitere Infos
Bezahlbare Eigentumswohnungen mit hochwertiger Ausstattung - bereits 90 % verkauft!
Erzielbare Miete ca.:
- 11,50 EUR/m²
Rendite ca.:
- 4,2 %
Projektbeschreibung
AUS ÜBERLEGUNG GUT - DIE HEIMATGÄRTEN
Bei der Planung des Projekts stand neben der licht- und raumoptimierten Architektur der Wohnkomfort im Mittelpunkt. So wurden lichtdurchflutete Wohnungen mit attraktiven, den unterschiedlichen Lebensstilen der Generationen entsprechend angepassten Grundrisse geschaffen und mit qualitativ hochwertigen und ausgewählten Materialien aufgewertet.
Zudem wird eine Tiefgarage entstehen, sodass die Bewohner des Heimatgartens die Möglichkeit haben, einen Stellplatz zu ihrer Wohnung zu erwerben.
Mit Hilfe von drei Fahrstühlen gelangen die Bewohner problemlos von der Tiefgarage in die jeweiligen Wohnetagen.
HEIMATGARTEN IM DETAIL
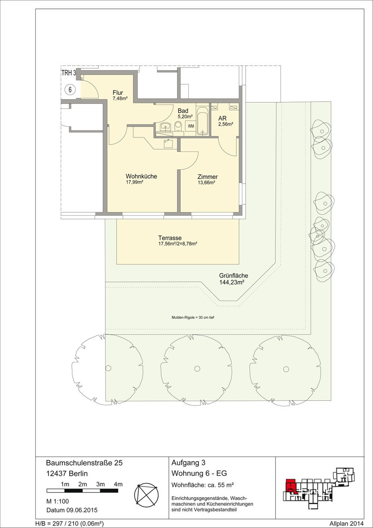
- Fünfgeschossiger Neubau mit 36 Eigentumswohnungen
- Garten-, Etagen- und Dachgeschosswohnungen mit 2 bis 5 Zimmern
- Wohnflächen zwischen ca. 44 qm und ca. 151 qm
- Lichtdurchflutete Wohnungen mit ca. 2,60 m Deckenhöhe
- Private Gärten, Balkone und Dachterrassen mit Südausrichtung
- Großzügige, moderne Grundrisse mit überwiegend offenen Wohnküchen
- Alle Wohnungen sind barrierefrei
- Bodenausstattung Zimmer: Eichenparkett, Fußbodenheizung mit Raumthermostat
- Bodenausstattung Bäder, WCs und Küchen: Feinsteinzeugfliesen
- Rollläden in den Gartenwohnungen
- Wärmeschutz nach EnEV 2014
- Heizung und zentrale Warmwasserbereitung mit Erdgas unter Einbindung regenerativer Energien
- 3 Aufzüge
- Attraktive Außenanlagen und Gemeinschaftsflächen
- Fahrradstellplätze auf der Anlage und in der Tiefgarage
- Tiefgarage mit optionalen Stellplätzen
- 36 Kellerräume
- Kabelanschluss
NATUR IM LEBEN: BERLIN-TREPTOW KOMMT
DENN DAS GUTE LIEGT SO NAH
Einkaufen:
- Einkaufspassage direkt vor Ort
- Supermärkte und Discounter in nächster Nähe
- Bäcker, Optiker, Apotheken, Drogeriemärkte entlang der Baumschulenstraße
Freizeit
- Späth-Arboretum als Sommer-Ausflugsziel
- Königsheide mit 110 ha Waldfläche
- Forst Plänterwald mit "Spreepark", einem stillgelegten Vergnügungspark
- Treptower Park mit zahlreichen Freizeitmöglichkeiten
- Grünzug Heidekampgraben mit Spiel- und Erholungsflächen
- Müggelsee, Spree und Dahme
- Tennisplätze, Schwimmhalle und weitere Sporteinrichtungen in fußläufiger Nähe
Bildung / Schulische Einrichtungen
- Zahlreiche Kindertagesstätten in direkter Nähe
- Grundschulen, Oberschulen und Volkshochschulen in der Umgebung
Ärztliche Versorgung
- Ärztehaus mit verschiedenen Fachrichtungen in fußläufiger Entfernung
- Pflegedienst DomusVita als direkter Nachbar
Öffentliche Anbindung
- S-Bahn Baumschulenweg 3 Gehminuten
- Buslinien 166, 170 und 265, M 41
- Fährlinie F11 zur Kleingartenkolonie Wilhelmstrand
Auto / Flugzeug
- A 113 / A 100 5-8 Min
- WISTA Adlershof 10 Min
- Kreuzberg 10 Min
- Friedrichstraße 25 Min
- Flughafen BER 16 Min
Rechtlicher Hinweis: Die Informationen zum Bauvorhaben sind ein redaktioneller Beitrag der neubau kompass AG. Er dient ausschließlich Informationszwecken und stellt kein Angebot im rechtlichen Sinne dar. Die angebotenen Inhalte werden von der neubau kompass AG nach § 2 TMG veröffentlicht und kontrolliert. Informationen zu einer etwaigen Provisionspflicht sind beim Anbieter zu erfragen. Alle Angaben, insbesondere zu Preisen, Wohnflächen, Ausstattung und Bezugsfertigkeit sind ohne Gewähr. Irrtum vorbehalten.

