DAHLER & COMPANY Wohnen München GmbH & Co. KG

Annabrunner Straße 7

Neubau von 6 Eigentumswohnungen

  • Effizienzhaus 55

Projektdetails

  • Annabrunnerstr. 7, 81673 München / Laim
  • Eigentumswohnung
  • 535.000 € - 1.210.000 €
  • Auf Anfrage
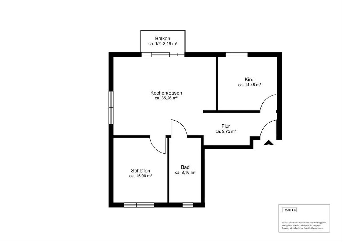
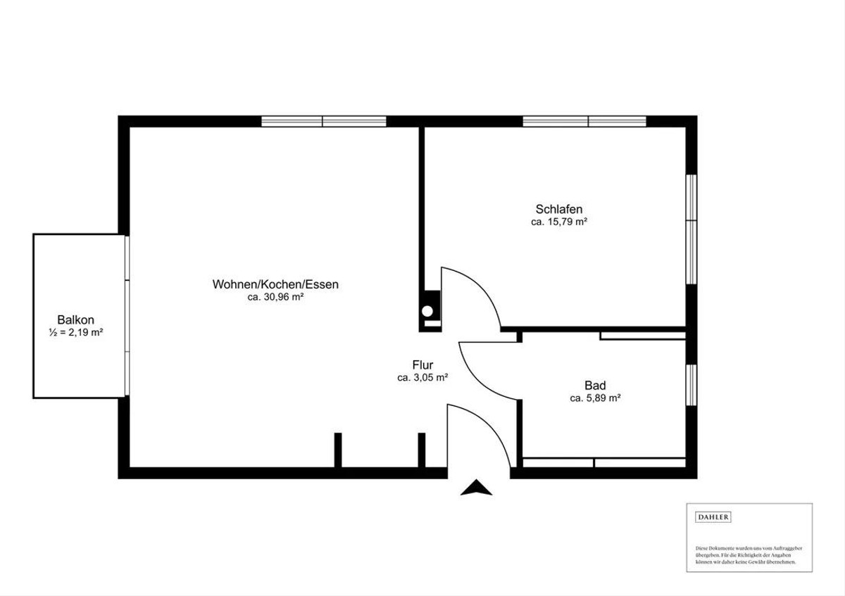
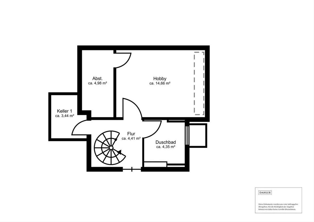
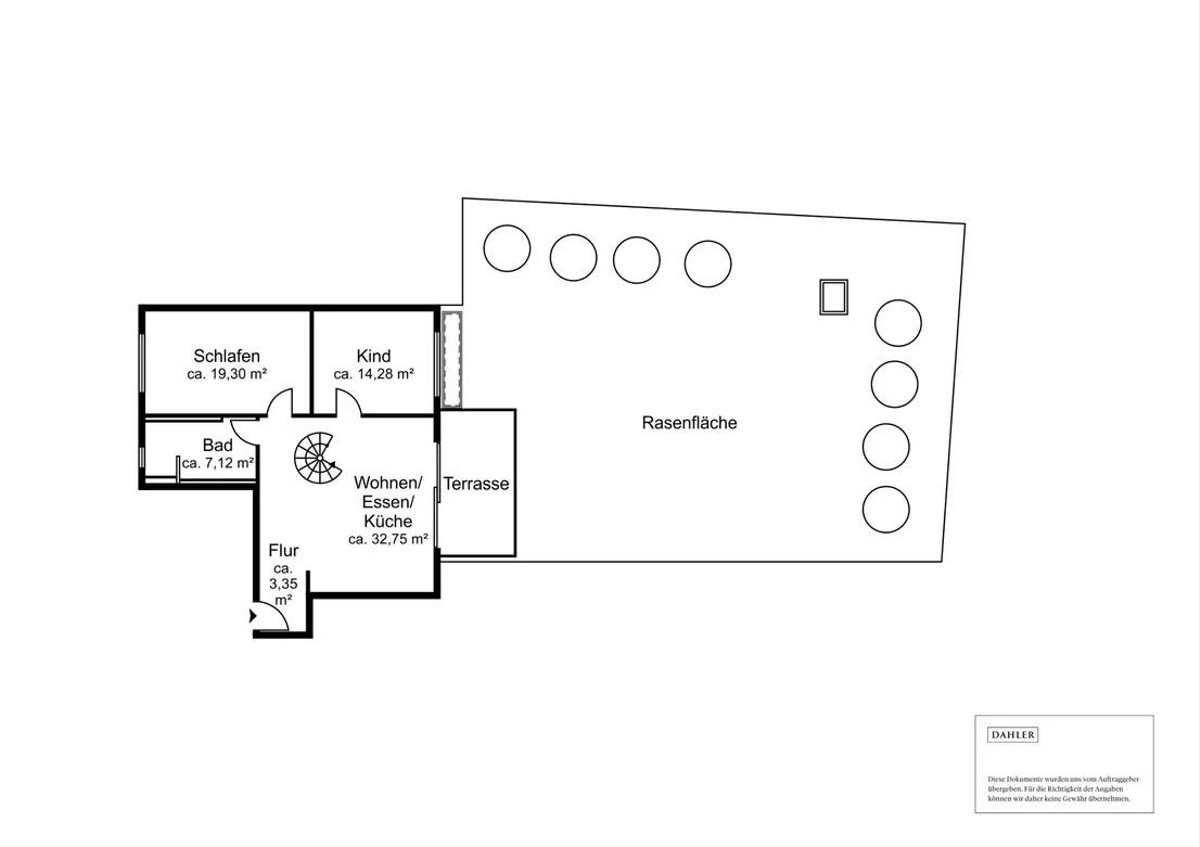
  • 51 - 86 m2
  • Juli 2026
  • 6
  • Gehoben
  • 27831

Merkmale

  • Aufzug
  • Balkon
  • Bodentiefe Fenster
  • Einbauküche
  • Elektrische Rollläden
  • Fenster 3-fach verglast
  • Fußbodenheizung
  • Klimaanlage
  • Offene Küche
  • Parkettboden
  • Teilw. Gartenanteil
  • Terrasse

Lage

Auf der Karte anzeigen
Exposé/Preisliste anfordern
Pflichtfelder *

Wir behandeln deine Daten vertraulich. Mit dem Absenden erklärst du dich mit der Verarbeitung deiner Anfrage gemäß unserer Datenschutzerklärung und AGB für Verbraucher:innen einverstanden.

Projektbeschreibung

Bild Neubau Eigentumswohnungen Annabrunner Straße München: Visualisierung eines Mehrfamilienhauses

Neubauprojekt München-Laim

Neubau-Highlight in Münchner Osten

Mitten im beliebten Münchner Stadtteil Berg am Laim entsteht ein exklusives Neubauprojekt, das urbanes Wohnen mit hoher Lebensqualität verbindet. Die Wohnanlage umfasst lediglich sechs hochwertige Wohneinheiten und bietet dadurch ein hohes Maß an Privatsphäre und Individualität. Umgeben von gewachsenen Strukturen, einer hervorragenden Nahversorgung und grünen Rückzugsorten ist dieses Projekt ideal für alle, die eine ruhige, aber zentrale Lage im Münchner Osten schätzen.

Architektonisch überzeugt das Ensemble durch eine moderne, klare Formsprache, die durchdachte Grundrisse mit lichtdurchfluteten Räumen verbindet. Die stilvolle Fassadengestaltung, großzügige Fensterflächen und sorgfältig ausgewählte Materialien schaffen eine harmonische Verbindung von Funktionalität und Ästhetik. Ergänzt wird dies durch großzügige Außenbereiche – wie Terrassen, Balkone oder Gartenanteile – die jeder Wohnung ein individuelles Freiraumgefühl verleihen.

Besonders hervorzuheben ist die energieeffiziente Bauweise gemäß KfW55-Standard, welche nicht nur den neuesten Anforderungen an Nachhaltigkeit und Klimaschutz entspricht, sondern auch zukunftssicheres Wohnen mit attraktiven Fördermöglichkeiten vereint. In Verbindung mit einer modernen Hybrid-Heizanlage, Fußbodenheizung, hochwertigen Ausstattungsdetails und durchdachter Haustechnik entsteht hier ein Wohnkomfort, der Maßstäbe setzt – und das in einer der gefragtesten Wohnlagen Münchens.

Bild Neubau Eigentumswohnungen Annabrunner Straße München: Visualisierung einer offenen Wohnküche

Ausstattung

  • Modernes Neubauhaus im klassischen Stil
  • KfW 55 Neubau-Standard, niedrige Energiekosten
  • Lichtdurchfluteter Wohn-Essbereich mit offener Küche
  • Inklusive hochwertiger Einbauküche (Design frei wählbar)
  • Hochwertige Sanitärobjekte und Fliesen (individuell gestaltbare Bäder)
  • Moderne Klimaanlage zum Kühlen und Wärmen
  • Fußbodenheizung in allen Räumen
  • Vollholzparkett oder alternatives hochwertiges Material in allen Wohnräumen (individuell wählbar)
  • Dreifachverglaste bodentiefe Fenster
  • Elektrische Rollos
  • Aufzug im Haus
  • Großer Tiefgaragenstellplatz
Bild Neubau Eigentumswohnungen Annabrunner Straße München: Visualisierung eines Mehrfamilienhauses

Lage und Lagebeschreibung

Die Immobilie liegt in einer besonders charmanten Wohngegend im beliebten Münchner Stadtteil Berg am Laim – einem Ort, der urbanes Leben und ruhige Wohnqualität harmonisch miteinander verbindet. Hier trifft die Nähe zur Stadt auf ein angenehmes, familiäres Umfeld mit gewachsenem Charakter. Gepflegte Häuser, begrünte Innenhöfe und kleine Seitenstraßen prägen das Bild der Nachbarschaft und schaffen eine Atmosphäre, in der man sich sofort zu Hause fühlt.

Der tägliche Bedarf lässt sich bequem in der Umgebung decken: Bäckereien, Supermärkte, charmante Cafés und Restaurants befinden sich nur wenige Gehminuten entfernt. Auch Schulen, Kitas und ärztliche Einrichtungen liegen in direkter Nähe – ideal für Familien und Menschen, die kurze Wege im Alltag schätzen.

Die Anbindung ist hervorragend: Straßenbahn, Bus und S-Bahn ermöglichen eine schnelle Verbindung in die Münchner Innenstadt, während der Mittlere Ring und die A94 in wenigen Minuten mit dem Auto erreichbar sind. Trotz dieser zentralen Lage bleibt die Wohnumgebung ruhig und angenehm entspannt.

Grünflächen und kleine Parks in der Umgebung laden zu Spaziergängen, sportlichen Aktivitäten oder gemütlichen Stunden im Freien ein – ein wunderbarer Ort, um nach einem langen Tag zur Ruhe zu kommen und das Leben zu genießen.

Rechtlicher Hinweis: Die Informationen zum Bauvorhaben sind ein redaktioneller Beitrag der neubau kompass AG. Er dient ausschließlich Informationszwecken und stellt kein Angebot im rechtlichen Sinne dar. Die angebotenen Inhalte werden von der neubau kompass AG nach § 2 TMG veröffentlicht und kontrolliert. Informationen zu einer etwaigen Provisionspflicht sind beim Anbieter zu erfragen. Alle Angaben, insbesondere zu Preisen, Wohnflächen, Ausstattung und Bezugsfertigkeit sind ohne Gewähr. Irrtum vorbehalten.

Anbieter

DAHLER & COMPANY Wohnen München GmbH & Co. KG

Maximilianstr. 32, 80539 München

DAHLER & COMPANY Wohnen München GmbH & Co. KG

Weitere Projekte in der Nähe