Dieses Bauvorhaben ist abverkauft.

b.on baupartner ® GmbH

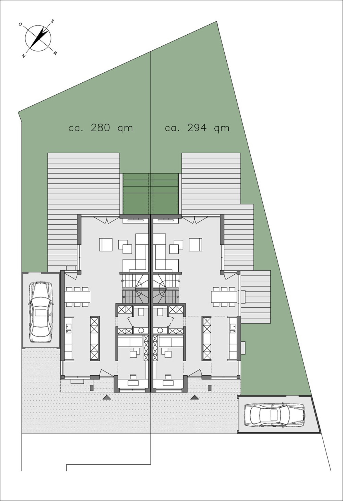
Angermunder Straße 47 A und 47 B

Neubau von 2 Einfamilienhäusern

Projektdetails

  • Angermunder Straße 47, 40489 Düsseldorf / Angermund
  • Doppelhaushälfte, Einfamilienhaus
  • Auf Anfrage
  • Gehoben
  • 10163

Lage

Auf der Karte anzeigen

Projektbeschreibung

Raumwunder

6 Zimmer, 3 Bäder plus ausgebauter Hobbyraum mit Duschbad im Kellergeschoss

Bild zum Neubauprojekt Angermunder Straße 47

Neubau von zwei Einfamilienhäusern als Doppelhaushälften
In bester Wohnlage von Angermund planen und bauen wir zwei großzügige Einfamilienhäuser als Doppelhaushälften. Die ca. 280 qm und 294 qm großen Grundstücke liegen nicht direkt an der Straße, sondern in "zweiter Reihe", eingebettet in die gewachsenen Gärten der Nachbarhäuser mit schönem alten Baumbestand - absolut ruhig und grün - Eine Oase! Die moderne zeitlos schöne Architektur des Hauses wird geprägt durch klare Linien und großzügige Fensterflächen. Die überaus gelungene Raumaufteilung bietet mit 6 Zimmern und 3 Bädern viel Platz für eine Familie und/ oder Menschen mit Anspruch an größeren Lebensraum. Im Kellergeschoss entsteht durch eine großflächige Abböschung zusätzlich ein weiterer großer Hobbyraum mit viel Licht und eigenem Duschbad. Ein Bereich mit idealen und vielfältigen Nutzungsmöglichkeiten! Selbstverständlich können Sie Ihre Ideen und Wünsche noch einbringen - unsere Architekten beraten Sie gerne!

Moderne Architektur in traditioneller massiver Bauweise, energiesparend gemäß den erhöhten Anforderungen der EnEV 2014, beste Ausstattung und Bauqualität in absolut gefragter Lage - alle Voraussetzungen für ein sicheres Immobilien-Investment mit Wertsteigerungspotential gegeben.

Ausstattung
  • Moderne geradlinige Architektur
  • Optimale Grundrissgestaltung und Raumaufteilung
  • Fassade mit Wärmedämmverbundsystem nach EnEV 2014 weiß verputzt
  • Keller als wasserundurchlässiger Betonkeller nach WU-Richtlinien
  • Großzügige, bodentiefe Glasflächen
  • Fenster und Fenstertüren aus Kunststoff bi-color mit Dreifachverglasung
  • Pilzzapfenverriegelung in Anlehnung an WK 2
  • Elektrisch betriebene Rollläden
  • Kostensparende Gasbrennwertheizung
  • Solaranlage zur Unterstützung der Warmwasseraufbereitung
  • Fußbodenheizung mit Raumthermostaten
  • Vier Badezimmer
  • Bäder/Sanitärobjekte von Villeroy & Boch
  • Hochwertige Bodenfliesen in Küche und Bädern
  • Parkett in allen und Wohn- und Schlafräumen
  • Überdachter Eingangsbereich
Bild zum Neubauprojekt Angermunder Straße 47
Bild zum Neubauprojekt Angermunder Straße 47

Die Lage
Bild zum Neubauprojekt Angermunder Straße 47
Bild zum Neubauprojekt Angermunder Straße 47
Bild zum Neubauprojekt Angermunder Straße 47
Die Rosenstadt Angermund gehört zu den bevorzugten und gefragten Wohnlagen im Norden der Landeshauptstadt Düsseldorf. Der über 800 Jahre alte Ort bietet eine sehr gute Infrastruktur. Der tägliche Bedarf kann auf kurzem Wege gedeckt werden. Supermärkte, Bäcker, Banken, Ärzte und Apotheken liegen in erreichbarer Nähe. Im Ort befinden sich Kindergärten und eine Grundschule. Im Nachbarstadtteil Kaiserswerth befinden sich zwei private Gymnasien sowie die Internationale Schule. Angermund hat für alle etwas zu bieten. Sehr gute Verkehrsanbindung mit dem PKW und öffentlichen Verkehrsmitteln wie Bus und S-Bahn. Der Flughafen und das Stadtzentrum sind in kürzester Zeit erreichbar. Der Anschluss der Autobahnen A 44 und A 59 gewährleistet eine optimale Verbindung zu den umliegenden Nachbarstädten.

Rechtlicher Hinweis: Die Informationen zum Bauvorhaben sind ein redaktioneller Beitrag der neubau kompass AG. Er dient ausschließlich Informationszwecken und stellt kein Angebot im rechtlichen Sinne dar. Die angebotenen Inhalte werden von der neubau kompass AG nach § 2 TMG veröffentlicht und kontrolliert. Informationen zu einer etwaigen Provisionspflicht sind beim Anbieter zu erfragen. Alle Angaben, insbesondere zu Preisen, Wohnflächen, Ausstattung und Bezugsfertigkeit sind ohne Gewähr. Irrtum vorbehalten.

Anbieter

Weitere Projekte in der Nähe