Dieses Bauvorhaben ist abverkauft.
Projektdetails
-
AdresseAm Alten Kurpark, 24576 Bad Bramstedt
-
WohntypEigentumswohnung, Penthouse
-
Einheiten32
-
KategorieGehoben
-
Projekt-ID14926
Merkmale
- Bodentiefe Fenster
- Carport
- Dachterrasse
- Einbauküche
- Fenster 3-fach verglast
- Offene Küche
- Teilw. Gartenanteil
- Terrasse
Lage
Projektbeschreibung


Nah am Stadtzentrum von Bad Bramstedt gelegen, entstehen 22 attraktive Doppelhaushälften und 10 moderne Eigentumswohnungen in ruhiger, familienfreundlicher Nachbarschaft.
Haus oder Wohnung?

DOPPELHÄUSER
Die 22 Doppelhaushälften der 11 Stadthäuser mit Größen von ca. 104 m2 und ca. 128 m2 halten viel Platz zum Gestalten des eigenen Hauses bereit. Wer noch mehr Raum für Ideen benötigt, baut den Dachboden aus und erhält dadurch zusätzlich rund 34 m2.
HAUS B
Haus B bietet einen großzügigen Wohn-/Essbereich mit offener Küche. Im Erdgeschoss befindet sich außerdem ein Duschbad und ein Abstellraum. Im 1. Obergeschoss gibt es drei Schlafzimmer und ein Vollbad. Der Spitzboden bietet die Möglichkeit die Gesamtwohnfläche von ca. 124,87 m2 zu erweitern.HAUS C
Haus C bietet im Erdgeschoss eine Küche mit Essbereich und einen separaten Wohnbereich von dem man direkt auf die Terrasse gelangt. Außerdem gibt es ein Duschbad und einen Abstellraum. Im oberen Stockwerk gibt es drei Schlafzimmer und ein Vollbad. Der Spitzboden bietet die Möglichkeit die Gesamtwohnfläche von ca. 105,26 m2 zu erweitern.HAUS D
Im Haus D wurde die offene Küche direkt im Wohn- und Essbereich integriert. Außerdem gibt es im Erdgeschoss ein kleines Schlafzimmer, ein Duschbad und einen Abstellraum. Im oberen Stockwerk gibt es drei weitere Schlafzimmer und ein Vollbad. Der Spitzboden bietet die Möglichkeit die Gesamtwohnfläche von ca. 124,37 m2 zu erweitern.
EIGENTUMSWOHNUNGEN
Auch die beiden dreigeschossigen Mehrfamilienhäuser mit insgesamt 10 Eigentumswohnungen unterschiedlicher Größen (ca. 63 m2 bis ca. 120 m2) entsprechen in ihrer Ausführung den heutigen Anforderungen an zeitgemäßes Bauen.
Modern und dabei stets solide, das ist die Formel auch für die zwei Mehrfamilienhäuser im neuen Quartier Am Alten Kurpark. In klassischer, norddeutscher Backsteintradition passen sie sich nahtlos in das architektonische Gesamtkonzept unseres Projektes ein.
WOHNUNG 1
Wohnung 1 liegt im Erdgeschoss rechts und hat eine Gesamtwohnfläche von 72,92 m2 verteilt auf 3 Zimmer.WOHNUNG 2
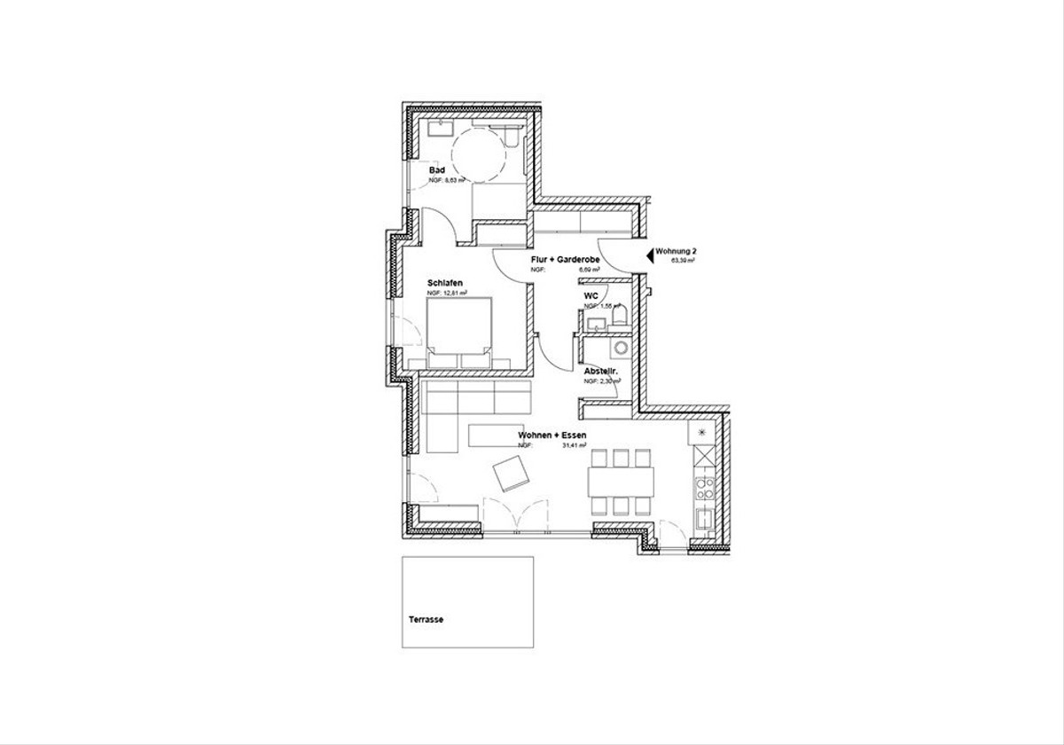
Wohnung 2 liegt im Erdgeschoss links und hat eine Gesamtwohnfläche von 63,39 m2 verteilt auf 2 Zimmer.
WOHNUNG 3
Wohnung 3 liegt im 1. Obergeschoss rechts und hat eine Gesamtwohnfläche von 74,76 m2 verteilt auf 3 Zimmer.WOHNUNG 4
Wohnung 4 liegt im 1. Obergeschoss links und hat eine Gesamtwohnfläche von 74,76 m2 verteilt auf 3 Zimmer.WOHNUNG 5
Wohnung 5 ist eine großzügige Penthouse-Wohnung mit 3 Zimmern und Dachterrasse, verteilt auf eine Gesamtwohnfläche von 119,64 m2.
Viel Platz für Erholung
Kontaktdaten
Beim Strohhause 27
20097 Hamburg
Tel.: 040.35 74 01-2020
E-Mail: neubau@spardaimmobilien.de
Website: www.spardaimmobilien.de
Rechtlicher Hinweis: Die Informationen zum Bauvorhaben sind ein redaktioneller Beitrag der neubau kompass AG. Er dient ausschließlich Informationszwecken und stellt kein Angebot im rechtlichen Sinne dar. Die angebotenen Inhalte werden von der neubau kompass AG nach § 2 TMG veröffentlicht und kontrolliert. Informationen zu einer etwaigen Provisionspflicht sind beim Anbieter zu erfragen. Alle Angaben, insbesondere zu Preisen, Wohnflächen, Ausstattung und Bezugsfertigkeit sind ohne Gewähr. Irrtum vorbehalten.