Dieses Wohnbeispiel ist Teil des Bauvorhabens Zwieseler Hof

3-Zimmer-Eigentumswohnung mit Balkon in Karlshorst | Erstbezug

  • Baubeginn erfolgt
  • Effizienzhaus 55 EE
  • Adresse
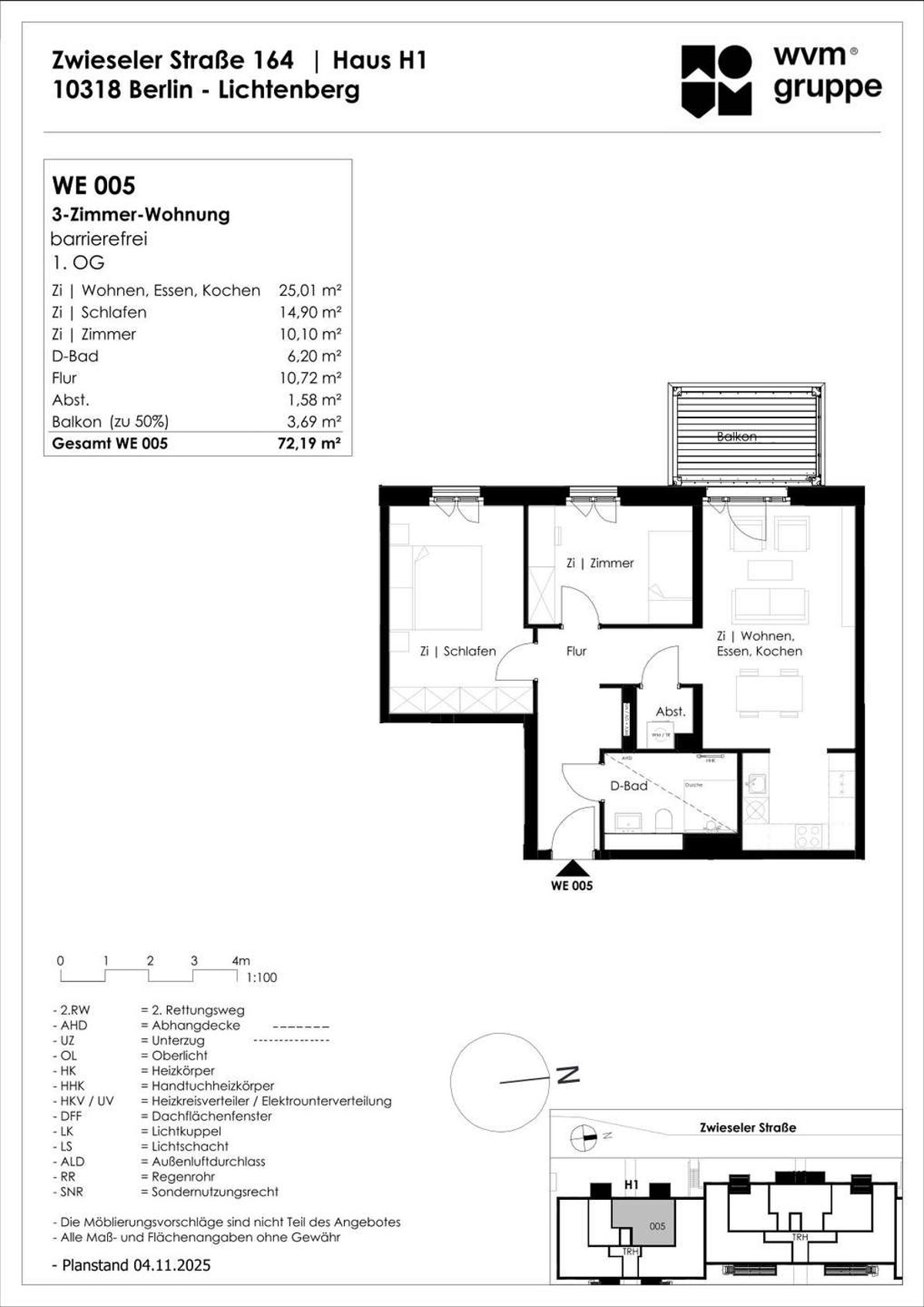
    Zwieseler Straße 164, 10318 Berlin / Karlshorst
  • Wohntyp
    Etagenwohnung
  • Preis
    451.000 €
  • Etage
    1. OG
  • Zimmeranzahl
    3
  • Badezimmer
    1
  • Schlafzimmer
    2
  • Wohnfläche
    72,19 m2
  • Bezugsfertig ab
    31.12.2026
  • Tiefgaragen-Stellplatz
    34.900 €
  • ID
    295123
  • Anbieter Objekt-ID
    ZWS 164 - WE 005

Merkmale

  • Abstellraum
  • Balkon
  • Barrierefrei
  • Gehobene Ausstattung
  • Keller
  • Parkettboden
  • Personenaufzug
  • Tiefgaragenstellplatz

Lage

Auf der Karte anzeigen

Das Projekt Zwieseler Hof befindet sich im Berliner Ortsteil Karlshorst, im Bezirk Lichtenberg. In ruhiger und grüner Umgebung entsteht hier ein neues Wohnquartier, das sich durch seine familienfreundliche Atmosphäre und die gute Anbindung an den öffentlichen Nahverkehr auszeichnet. Der U-Bahnhof Biesdorf Süd liegt nur 700 m entfernt, der U-Bahnhof Tierpark und der S-Bahnhof Karlshorst sind in knapp 10 Minuten mit dem Bus erreichbar. Der Tierpark Berlin, der Biesdorfer Park und die Nähe zum dynamischen Friedrichshain bieten vielfältige Freizeitmöglichkeiten zwischen Natur und urbanem Leben.

Ausstattung

*Die Rabattaktion gilt ausschließlich für ausgewählte 3- bis 4-Zimmer-Wohnungen und ist im jeweils ausgewiesenen Kaufpreis bereits berücksichtigt. Die Rabattaktion läuft bis zum 30.04.2026. Das Angebot gilt für ausgewählte Einheiten nach Maßgabe des Verkäufers. Änderungen, Irrtümer oder vorzeitige Einstellung vorbehalten.

Diese charmante 3-Zimmer-Wohnung im ersten Stockwerk bietet auf 72,19 m² Wohnfläche eine gelungene Kombination aus moderner Funktionalität und stilvollem Design. Zwei helle Schlafzimmer mit Südausrichtung bieten Platz zum Wohlfühlen. Das elegante Badezimmer mit bodengleicher Dusche sorgt für Komfort und macht das tägliche Leben angenehm.

Ein Aufzug sorgt für einen komfortablen und barrierefreien Zugang zur Wohnung. Das Wohnkonzept überzeugt durch erstklassige, qualitative Ausstattung. Die Fußbodenheizung bietet auch an kalten Tagen Wärme und schafft eine behagliche Atmosphäre.

Zur weiteren Ausstattung gehört ein separater Abstellraum mit Waschmaschinenanschluss. Eine Video-Gegensprechanlage sorgt für das Sicherheitsgefühl und mehr Komfort im Alltag – ein durchdachtes Zuhause, das keine Wünsche offenlässt.

Beschreibung

Entdecken Sie urbanes Flair und ruhiges Wohnen im Zwieseler Hof – einem einzigartigen Wohnkonzept, das modernen Stadtcharme und naturnahe Erholung harmonisch miteinander verbindet. Hier genießen Sie das Beste aus beiden Welten: lebendig und modern, aber gleichzeitig eingebettet.
Der Zwieseler Hof bietet eine Wohnkultur, die den Alltag entschleunigt und Ihnen Raum zum Atmen gibt. In einer familienfreundlichen Nachbarschaft laden zahlreiche Spiel- und Bewegungsflächen sowie Grünanlagen zum Verweilen und gemeinsamen Erleben ein. Nachhaltigkeit steht dabei im Mittelpunkt – energieeffizientes Wohnen durch den Einsatz erneuerbarer Energien sorgt für eine zukunftssichere Lebensweise. Die Architektur, entworfen vom renommierten Architekturbüro Nöfer aus Berlin, besticht durch zeitlose Eleganz und höchste Qualität. Großzügige Grundrisse, hochwertige Ausstattung und barrierefreier Zugang schaffen maximalen Wohnkomfort für jede Lebensphase.

Karlshorst, das „Dahlem des Ostens“, profitiert zudem von der dynamischen Entwicklung an der östlichen Spreeachse. Hier erleben Sie ruhiges Wohnen in einer grünen Umgebung und sind dennoch schnell im Herzen Berlins – das Beste aus beiden Welten!

Energienachweis

Energieausweistyp: Bedarfsausweis
Gültigkeit: 07.02.2035
Endenergiebedarf: 14.4
Energieträger: Nahwärme
Ausstelldatum: 2025-02-07
Energieklasse: A+
14.4 kWh/(m²*a)
Energieeffizienzklasse A+
  • A+
  • A
  • B
  • C
  • D
  • E
  • F
  • G
  • H
  • 0
  • 25
  • 50
  • 75
  • 100
  • 125
  • 150
  • 175
  • 200
  • 225
  • > 250

Sonstiges

ENERGIEPFLICHTANGABEN GEM. § 87 GEG:
Art des Energieausweises: Bedarfsausweis
Wert des Energiebedarfs: 14,4 kWh/(m²*a)
Energieträger: Luft-Wasser-Wärmepumpe
Baujahr: 2025
Energieeffizienzklasse: A+

Bei den Visualisierungen handelt es sich um unverbindliche Darstellungen.
Keine Maklerprovision für den Käufer!

wvm gruppe - Wir bauen auf Beständigkeit. Seit über 30 Jahren in Köln und seit 10 Jahren auch in Berlin!

Der Finanzierungsrechner für Ihren Wohnkredit

Mit unserem Finanzierungsrechner kannst du schnell und bequem eine Finanzierung für deine Immobilie berechnen.

Finanzierungsbeispiel

Eigenkapital: 90.200 €
Sollzinsbindung: 10 Jahre
Tilgungsrate: 1 %
Monatsrate

1.391 €

Dieses Wohnbeispiel ist Teil des Bauvorhabens
Zwieseler Hof

Anbieter kontaktieren
Pflichtfelder *

Wir behandeln deine Daten vertraulich. Mit dem Absenden erklärst du dich mit der Verarbeitung deiner Anfrage gemäß unserer Datenschutzerklärung und AGB für Verbraucher:innen einverstanden.