Ein modernes Wohnkonzept in reizvoller Umgebung
Die Planung sieht eine Einfamilienvilla in modernem, Designer-Baustil vor.
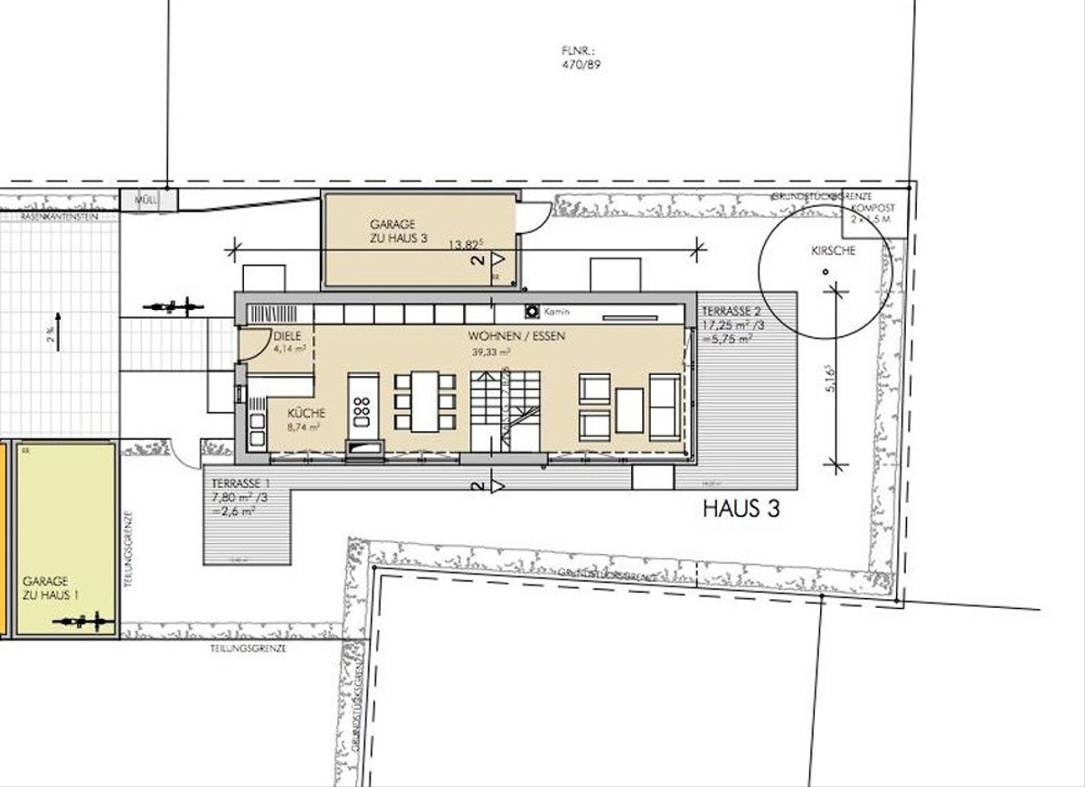
Die Architektur zeichnet sich durch die klare Struktur, das optimale und großzügige
Raumkonzept, sowie die Kombination zwischen moderner Gestaltung und Design aus. Der
konzeptionell durchdachte, zeitgemäße Grundriss vermittelt den zukünftigen Bewohnern ein
besonderes Flair. Durch die hohen Räume, den offenen Grundriss mit einem großzügigen
Wohn-/Essbereich, den schwellenfreien Übergängen sowie großen, modernen bodentiefen
Fensterflächen, die viel Licht und Sonne in den Wohnbereich lassen, wird ein fließendes
Raumgefühl erzeugt. Sorgfältig ausgewählte Materialien und die hochwertige
Qualitätsausstattung verbinden innovativen Wohnkomfort mit einer garantierten
Wohlfühlatmosphäre Ihres Traumhauses. Das nach Süden ausgerichtete Grundstück bietet den
zukünftigen Eigentümern attraktive Möglichkeiten der individuellen Gestaltung des
Gartens.
Die moderne Architektenvilla
Die Baubeschreibung sieht insgesamt eine sehr hochwertige und
wertbeständige Bauausführung und Ausstattung vor. Die technische Ausstattung des Objektes
entspricht dem Anspruch an eine energieeffiziente und moderne Bauweise. Das
Energie-Effizienzhaus in wohngesunder Ziegelbauweise erfüllt den gehobenen
Wärmedämmstandardnach KFW-70-Norm (nach EnEV 2014). Die Beheizung erfolgt mit einer
kostensparenden und effizienten Wärmepumpen-Technologie. Diese Heizungsanlage entspricht
voll dem Trend des Einsatzes von regenerativen Rohstoffen und erfüllt damit das Gesetz zum
Einsatz erneuerbarer Energien. Alle Räume in den Wohngeschossen inkl. des Hobbyraumes im
Keller erhalten Fußbodenheizung, ergänzt in den Bädern mit zusätzlichen Handtuchwärmer. Die
zum größtenteils bodentiefen Fenstern entsprechen mit der optimierten Wärme- und
Schalldämmung den hohen Anforderungen nach KFW 70. Sämtliche Fenster sind mit Rollläden
ausgestattet, sofern technisch möglich. Die gesamte Innenausstattung, wie z.B. Sanitär
können individuell bemustert werden. Selbstverständlich stehen hier hochwertige, formschöne
Sanitärobjekte von führenden Markenherstellern zur Auswahl. Die Ausstattung sieht in
sämtlichen Wohn- und Schlafräumen einen qualitativ hochwertigen Parkettboden vor. In den
Fluren, Dielen und Bädern ist die Verlegung von edlem Feinsteinzeug vorgesehen, welches
wiederum individuell bemustert werden kann. Im Erdgeschoss ist der Anschluss für einen
offenen Kamin bereits im Kaufpreis berücksichtigt. Ebenfalls im Kaufpreis enthalten sind
eine Einzelgarage und ein Stellplatz.
Makrolage
Die Stadt Gauting liegt im Landkreis von Starnberg - dem zauberhaften
Fünfseenland, in idyllischer Landschaft umgeben von Seen, Wäldern und Bergen. Lebensqualität
wird hier, im idyllischen Würmtal groß geschrieben und gehört zu den begehrtesten Wohnlagen
südlich der Landeshauptstadt und nördlich des Starnberger Sees. Naturliebhaber haben viele
Möglichkeiten der Freizeitgestaltung, wie z.B. Wandern, Radfahren oder Golfen im schönen
Fünfseenland. Auch Pferdeliebhaber kommen auf Ihre Kosten, Reitställe befinden sich in
direkter Umgebung.
Mikrolage
Die hervorragende Infrastruktur bietet den knapp 20.000 Einwohnern eine
ideale Anbindung mit der nur 700 Meter entfernten S-Bahnstation Gauting S6 in nur 25 Minuten
in die Münchner Innenstadt. Die nächste Bushaltestelle ist nur wenige Gehminuten entfernt.
Mit dem Pkw erreichen Sie die Landeshauptstadt in nur 20 Minuten. Auch den Flughafen
erreichen Sie in 45 Minuten. Ihre Einkäufe aller Art können Sie in fußläufiger Umgebung
erreichen. Hier sind Bioläden, Bauernmärkte, Hofläden sowie Discounter vertreten. Gauting
ist eine lebendige Stadt, es gibt ein vielfältiges Freizeit- und Kultur-, sowie Gastronomie
Angebot. Beispielsweise ist ein Tennisclub und der nächste öffentliche 6 Loch
Golfübungsplatz nur 1,4 km und der Golf & Land Club Gut Rieden nur 7 km entfernt. Beliebte
Biergärten wie Forst Karsten oder die Schlossgaststätte Leutstetten sind ebenfalls in nur
wenigen Minuten mit dem Auto erreichbar.