Dieses Wohnbeispiel ist Teil des Bauvorhabens Seequartier

3-Zimmer-Wohnung mit Balkon und Seeblick in Müllrose

  • Baubeginn erfolgt
  • Effizienzhaus 55
  • Provisionsfrei
  • Adresse
    Seeallee 16a, 15299 Müllrose
  • Wohntyp
    Apartment
  • Preis
    269.900 €
  • Etage
    1. OG
  • Zimmeranzahl
    3
  • Badezimmer
    1
  • Schlafzimmer
    2
  • Wohnfläche
    63,15 m2
  • Balkon-Terrassen-Fläche
    6,42 m2
  • Baujahr
    2026
  • Bezugsfertig ab
    Dezember 2026
  • ID
    294394
  • Anbieter Objekt-ID
    132862727#Z1AxyZ

Merkmale

  • Balkon
  • Barrierefrei
  • Befeuerung: Luftwärmepumpe
  • Fußbodenheizung
  • Neubau
  • Personenaufzug

Lage

Auf der Karte anzeigen

Im Seequartier genießen Sie eine herrliche Lage zwischen dem Großen Müllroser See, dem Katharinensee und viel Natur. Zur Badestelle sind es gerade mal 20 Meter. Kurze Wege zum Bäcker und zum Supermarkt sorgen außerdem für hohe Lebensqualität. Willkommen im charmanten Städtchen Müllrose.

Ausstattung

- Neubau als Effizienzhaus 55
- mit Wärmepumpe
- Balkon mit Blick auf den großen Müllroser See
- Fußbodenheizung
- bodengleiche Dusche
- bodentiefe Fenster
- Aufzug
- offener Wohn- und Essbereich

Beschreibung

Willkommen in Ihrer neuen 3-Zimmer-Wohnung mit Balkon in Müllrose. Genießen Sie modernen Komfort und Nachhaltigkeit.

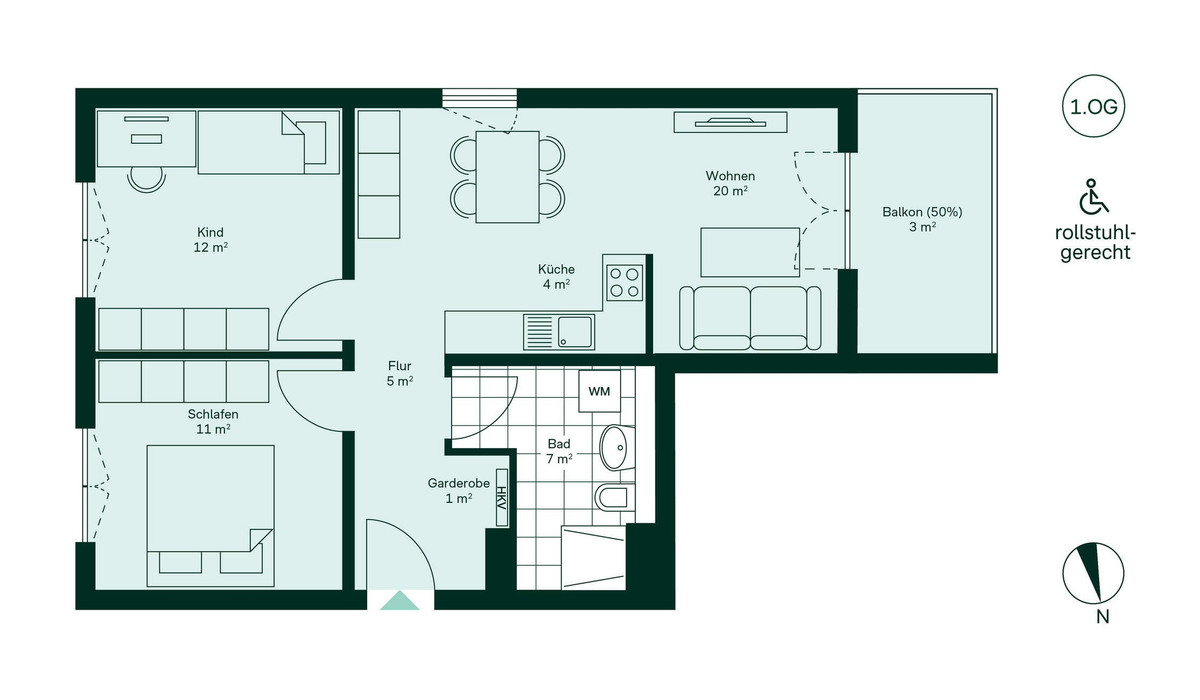
Schon beim Eintreten spüren Sie die klare Struktur dieser rollstuhlgerechten Wohnung. Der Flur empfängt Sie mit einer praktischen Garderobennische, die Jacken, Schuhe und Taschen ordentlich aufnimmt. Im Mittelpunkt steht der rund zwanzig Quadratmeter große Wohn und Essbereich. Große Fenster sorgen für angenehme Lichtverhältnisse und öffnen den Raum zum Balkon. Von hier aus treten Sie direkt ins Freie und genießen frische Luft in Ihrem eigenen Bereich im ersten Obergeschoss und blicken auf den großen Müllroser See. Offen an den Wohnbereich angebunden ist die Küche mit kompakter und funktionaler Aufteilung. Kurze Wege zum Esstisch machen den Alltag leicht und laden zu gemeinsamen Mahlzeiten ein.

Das Schlafzimmer bietet mit etwa elf Quadratmetern einen ruhigen Rückzugsort. Daneben steht Ihnen ein weiteres Zimmer mit rund zwölf Quadratmetern zur Verfügung. Ob als Kinderzimmer, Gästezimmer oder Arbeitsbereich, Sie entscheiden, was am besten zu Ihrem Leben passt. Auch das Bad ist durchdacht gestaltet. Eine bodengleiche Dusche, ausreichend Bewegungsfläche und der Anschluss für die Waschmaschine schaffen Komfort im Alltag.

Energienachweis

Energieträger: Wärmepumpe

Sonstiges

Alle Häuser und Wohnungen im Seequartier werden durch eine Wärmepumpe nachhaltig und umweltfreundlich mit Wärme versorgt. Als Effizienzhaus 55 nach GEG 2023 gebaut, sind sie mit sparsamen Fußbodenheizungen ausgestattet. Gemeinschaftsbereiche fördern das Miteinander und bieten vielfältige Freizeitmöglichkeiten in herrlicher Lage zwischen dem Großen Müllroser See, dem Katharinensee und viel Natur. Zur Badestelle sind es gerade mal 20 Meter.

+++

Festpreisgarantie für Ihre Planungssicherheit

Mit unserer Festpreisgarantie bleibt Ihr vertraglich vereinbarter Kaufpreis unverändert. Sie wählen Ihre Wunschimmobilie zu dem entsprechenden Kaufpreis, ohne versteckte Kosten. Selbst bei schwankenden Rohstoffpreisen behalten Sie von Anfang an finanzielle Klarheit und können mit einem sicheren Gefühl planen.

Der Finanzierungsrechner für Ihren Wohnkredit

Mit unserem Finanzierungsrechner kannst du schnell und bequem eine Finanzierung für deine Immobilie berechnen.

Finanzierungsbeispiel

Eigenkapital: 53.980 €
Sollzinsbindung: 10 Jahre
Tilgungsrate: 1 %
Monatsrate

847 €

Dieses Wohnbeispiel ist Teil des Bauvorhabens
Seequartier

Exposé/Preisliste anfordern
Pflichtfelder *

Wir behandeln deine Daten vertraulich. Mit dem Absenden erklärst du dich mit der Verarbeitung deiner Anfrage gemäß unserer Datenschutzerklärung und AGB für Verbraucher:innen einverstanden.