Dieses Bauvorhaben ist abverkauft.

Wohnbau Hess

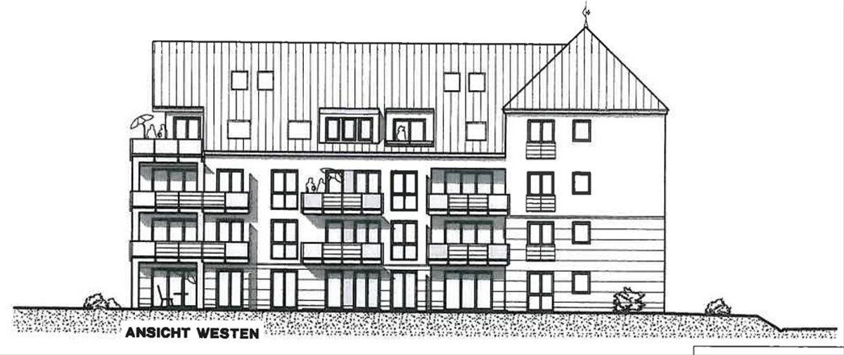
Schäfergarten Bischofsheim

Neubau von Eigentumswohnungen

Projektdetails

  • Bischofsheim zwischen Alt Bischofsheim und Zwingerstraße, 63477 Maintal / Bischofsheim
  • Eigentumswohnung
  • Auf Anfrage
  • Standard
  • 3672

Lage

Auf der Karte anzeigen

Projektbeschreibung

Schäfergarten Bischofsheim


Ansprechende, komfortable und energiesparende Eigentumswohnungen

Im Main-Bischofsheim zwischen Alt-Bischofsheim und Zwingerstraße entsteht eine neue Wohnanlage bestehend aus: 4 Wohngebäuden als Wohnungseigentumsanlage mit insgesamt 40 Eigentumswohnungen, ca. 3 Gewerbeeinheiten (Haus A+D) und einer Tiefgarage mit insgesamt 63 Stellplätzen. Im ersten Bauabschnitt wird das Haus C mit 21 Eigentumswohnungen errichtet. Mit dem Bau wird voraussichtlich im August begonnen.

Massivbauweise mit Kalksandstein

  • gesundes Raumklima
  • enorm belastbar
  • bauökologisch empfehlenswert und umweltschonend
  • hoher Schallschutz
  • frost- und witterungsfest, Hitzeschutz im Sommer

Energiesparende Bauweise

  • Vollwärmedämmung 16 cm dick
  • Photovoltaik auf dem Dach
  • Fenster mit Dreischeibenverglasung, k-Wert 1,0W/(m²*K)
  • Dachdämmung 24 cm dick
  • Pelletheizung
  • Planung der Heizung durch einen Fachplaner auf Grundlage der EnEV 2009
  • Heizlastberechnung nach DIN sowie unter Berücksichtigung aller einschlägigen Normen und Richtlinien z.B. Feuerstättenverordnung u. Erneuerbaren-Energie-Wärmegesetzt (EEWärmeG)

Wohnkomfort

  • Fußbodenheizung: mehr Stellfläche, angenehmes Raumklima
  • Wohnräume mit Nautrholzparkett Eiche Natur
  • Wand- und Bodenfliesen in den Bädern
  • Sanitärobjekte z.B. Roca Nexo, designed bei Antonio Bullo, Przellan weiß
  • Armaturen z.B. Vigour Nexo, Messing verchromt
  • Bade- und Duschwanne aus Acryl, Fa. Vigour
  • Duschwanne mit niedrigem Einstieg, Brausegarnitur z.B. Nikles Techno mit Easy-to-clean Technologie
  • Handtuchheizkörper
  • Aufzug von der Tiefgarage bis zur Wohnetage (außer Galeriegeschoss)
  • Tiefgarage
  • Keller zu jeder Wohnung

Zeitplan

1. Bauabschnitt Haus C und Tiefgarage:
Teilbaugenehmigung Haus C erteilt am 01.07.2011
Baugenehmigung Haus C erteilt am 09.09.2011
Baubeginn: Voraussichtlich November 2011
Bezugsfertigstellung: geplant IV. Quartal 2012

2. Bauabschnitt Haus B:
Planungsbeginn: I. Quartal 2012
Bauantrag: geplant II. Quartal 2012
Baubeginn: geplant III. Quartal 2012
Bezugsfertigstellung: III. Quartal 2013

3. Bauabschnitt Haus A mit Eiscafé und Laden:
Planungsbeginn: geplant 2013
Baubeginn: geplant 2014
Bezugsfertigstellung: geplant 20154. Bauabschnitt Haus D und Marktplatz:
Planungsbeginn: geplant 2013
Baubeginn: geplant 2014
Bezugsfertigkeit: geplant 2015Das sind aber nur Annahmen. Der genaue Bauverlauf ist abhängig vom Wetter, dem Baubetrieb und vom Verkauf der Wohnungen.

Besichtigung

Alt Bischofsheim (Marktplatz)
63477 Maintal-Bischofsheim

Öffnungszeiten:
Sonntag: 14°° bis 16°° Uhr

Rechtlicher Hinweis: Die Informationen zum Bauvorhaben sind ein redaktioneller Beitrag der neubau kompass AG. Er dient ausschließlich Informationszwecken und stellt kein Angebot im rechtlichen Sinne dar. Die angebotenen Inhalte werden von der neubau kompass AG nach § 2 TMG veröffentlicht und kontrolliert. Informationen zu einer etwaigen Provisionspflicht sind beim Anbieter zu erfragen. Alle Angaben, insbesondere zu Preisen, Wohnflächen, Ausstattung und Bezugsfertigkeit sind ohne Gewähr. Irrtum vorbehalten.