Dieses Bauvorhaben ist abverkauft.
Projektdetails
-
AdresseSavoyenstraße 5, 80638 München / Nymphenburg
-
WohntypEigentumswohnung
-
Einheiten8
-
KategorieGehoben
-
Projekt-ID21599
Merkmale
- Aufzug
- Balkon
- Bodentiefe Fenster
- Echtholz-Parkett
- Elektrische Rollläden
- Fenster 3-fach verglast
- Fußbodenheizung
- Großformatige Fliesen
- Kellerraum
- Kontrollierte Wohnraumlüftung
- Privatgärten
- Sanitärausstattung von Markenherstellern
- Terrasse
- Tiefgarage
- Video-Gegensprechanlage
- Wärmepumpe
Lage
Projektbeschreibung


objekt
Neubauprojekt Savoyenstraße 5
Zuhause in Nymphenburg
Charmante Alleestraßen, historische Villen und Stadthäuser, großbürgerliches Flair und gewachsene Strukturen prägen diesen ganz besonderen Münchner Stadtteil. Mit seiner modernen Eleganz schlägt das Bauvorhaben S5 | NY die Brücke von der Vergangenheit in die Gegenwart. Durchdacht und hochklassig fügt sich der Neubau in unmittelbarer Nähe zum Nymphenburger Schloss in die gewachsene Nachbarschaft ein und bereichert dieses äußerst begehrte Viertel um eine exklusive Mehrfamilien-Anlage.
Der Baubeginn ist bereits erfolgt und das Projekt wird im Sommer 2022 fertiggestellt.

Gebäude
Eckpunkte zu einem besonderen
Bauvorhaben
ARCHITEKTUR UND GRUNDRISSE
Auf einem großzügigen, sonnigen Grundstück entsteht ein Neubau in äußerst attraktiver moderner Architektur. Das Gebäude umfasst acht Wohneinheiten und eine Tiefgarage. Bodentiefe Fenster verleihen dieser exklusiven Mehrfamilien-Anlage ein modernes Erscheinungsbild, schaffen lichtdurchflutete Wohnwelten und eröffnen schöne Blicke nach draußen. Die einladende Architektursprache setzt sich auch im Inneren der Wohnungen fort. Die Ausstattung ist hochwertig und für anspruchsvolle Bewohner konzipiert. Geöltes Eichen-Dielenparkett, Fußbodenheizung, BUS-System, helles Feinsteinzeug in den Bädern, Dornbracht-Armaturen und Sanitärobjekte von Villeroy& Boch schaffen eine hohe Wohnqualität. Jeder Einheit ist mindestens ein Tiefgaragen-Stellplatz und jeweils ein Kellerabteil (ausgenommen Wohnung 2) zugeordnet.
INDIVIDUELLE GRUNDRISSE ZUM WOHLFÜHLEN
So einzigartig wie Ihr Lebensstil soll auch der Grundriss Ihrer Wohnung sein. Durchdachte Raumschnitte mit reichlich Stellflächen und Stauraum, offenes Wohnen, Essen und Kochen, private Rückzugsbereiche und helle Bäder, die Ästhetik und Funktionalität vereinen: All diese Wünsche werden erfüllt. Auch die Freiräume sind perfekt geplant: Große Terrassen und Balkone erweitern das Wohnen ins Grüne und schaffen ein Plus an Lebensqualität.

Wohnungen
Elegant und Funktional
Die Ausstattung
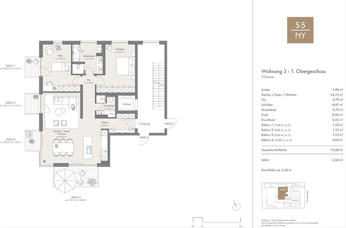
Keine Einheit ist wie die andere; jede Einheit reflektiert individuelle Bedürfnisse. Die Wohnungen bieten drei bzw. vier Zimmer und zwei Bäder – und auch ein schickes 1,5-Zimmer-Apartment steht zur Auswahl. Intern verbunden, verfügt eine der Erdgeschosswohnungen über einen Hobbyraum mit zusätzlichem Duschbad. Das Penthouse erstreckt sich über das gesamte Dachgeschoss und vermittelt dank seiner Weitläufigkeit ein Haus-im-Haus-Gefühl.
Hochwertigkeit, Funktionalität und klassisch-moderne Eleganz sind oberstes Gebot. Deshalb setzen wir auf Markenprodukte renommierter Hersteller – die Erfüllung Ihrer Ansprüche und Wohnträume ist unser Ziel!
Im turbulenten Familienleben und nach einem langen Tag ist der Masterbereich ein willkommender Rückzugsort. Mit einem großzügigen Schlafzimmer, einer Ankleide und einem komfortablen Bad lädt er zum Relaxen und Kräftesammeln ein.


Ausstattungs-Highlights
- BUS-System zur Steuerung von Jalousien, Licht, Heizung und Türkommunikation
- Geöltes Eichen-Dielenparkett mit vierseitiger Fase
- Fußbodenheizung, individuell regulierbar über Raumthermostate
- Hochwertige Holz-Alu-Fenster mit 3-fach-Isolierverglasung
- Elektrisch betriebene Rollläden
- Weiß lackierte, stumpf einschlagende und putzbündige Innentüren
- Großformatiges Feinsteinzeug 60 x 120 cm in den Bädern
- Sanitärkeramik von Villeroy & Boch
- Armaturen von Dornbracht
- Video-Gegensprechanlage mit Farbdisplay
- Personenaufzug vom Untergeschoss bis ins Dachgeschoss
- Sauna und direkter Liftzugang im Penthouse
- Kamin als Sonderwunsch im Penthouse
- Vorbereitung für Netzwerkverkabelung
- Wohnraumlüftungsanlage mit Wärmerückgewinnung
- Physikalische Wasseraufbereitungsanlage
- Nachhaltige Beheizung durch Wasser-Wärmepumpe

Lage
München Nymphenburg
Ein Stadtteil mit Strahlkraft
Alleestraßen mit prächtigem Baumbestand, denkmalgeschützte Bausubstanz und ein einmaliges historisches Flair prägen dieses äußerst gesuchte, privilegierte Umfeld. Besonders hervorzuheben ist die perfekte und sehr familienfreundliche Infrastruktur. Zu Fuß oder per Rad bequem erreichbar, befinden sich im nahen Umkreis alle Geschäfte des täglichen Bedarfs, Apotheken, Reinigungen, Post und Banken. Auch empfehlenswerte Restaurants stehen zur Auswahl. Sportvereine mit Hockey-, Tennis- und vielen weiteren Angeboten, Ballettschulen und Yoga-Studios, Fußballvereine, das Dante-Freibad und der Olympiapark bieten ein ideales Freizeitprogramm für Familien.
Nymphenburg ist bekannt für sein großes Angebot an ausgezeichneten Kitas und Schulen. Zur Auswahl stehen mehrere Kindertagesstätten, darunter auch bilinguale Einrichtungen. Die sehr beliebte, in einem Seitenflügel des Schlosses untergebrachte Grundschule ist auf ruhigen Nebenwegen nur ca. fünf Gehminuten entfernt. Mit den renommierten Nymphenburger Privatschulen und den Maria-Ward-Schulen (jeweils mit Realschul- und Gymnasialzweig) stehen auch ausgezeichnete weiterführende Schulen zur Verfügung. Die exklusiv von uns zum Kauf angebotene Wohnung liegt nur ca. neun Minuten vom Haupteingang des Nymphenburger Schlossparks entfernt. Auf weitläufigen Wegen, an Kanälen und Seen wird Bewegung unter freiem Himmel rund ums Jahr zu einem besonderen Vergnügen.

Rechtlicher Hinweis: Die Informationen zum Bauvorhaben sind ein redaktioneller Beitrag der neubau kompass AG. Er dient ausschließlich Informationszwecken und stellt kein Angebot im rechtlichen Sinne dar. Die angebotenen Inhalte werden von der neubau kompass AG nach § 2 TMG veröffentlicht und kontrolliert. Informationen zu einer etwaigen Provisionspflicht sind beim Anbieter zu erfragen. Alle Angaben, insbesondere zu Preisen, Wohnflächen, Ausstattung und Bezugsfertigkeit sind ohne Gewähr. Irrtum vorbehalten.