Dieses Bauvorhaben ist abverkauft.
Projektbeschreibung
Sportplatz-Quartier
in Tornesch neu zu Hause
Hier steht urbanes Leben und Nachhaltigkeit im Einklang. Bei der Planung der Gebäude wurde viel Wert auf eine maximale Qualität in puncto Großzügigkeit und Ausstattung gelegt, um den heutigen und zukünftigen Anforderungen zu entsprechen.
Die hochqualitativen Reihenhäuser mit einer vielseitigen, zeitlos eleganten Architektur und der einmalig zentralen Lage bieten ein einzigartiges Lebensgefühl und unterstreichen den besonderen, individuellen Anspruch der zukünftigen Bewohner.
Hier können Sie herrlich leben, entspannt aufwachen und auf den sonnigen Terrassen Ihr Frühstück genießen. Die herrlich lichtdurchfluteten Häuser, mit ihren großzügigen Grundrissen, werden mit liebevollen Details ausgestattet und sorgen für angenehme Bequemlichkeit. Ergänzt werden die Reihenhäuser durch die klassisch anmutenden Stadtvillen, die in direkter Nachbarschaft errichtet werden und über großzügig geschnittene Wohnungen verfügen.
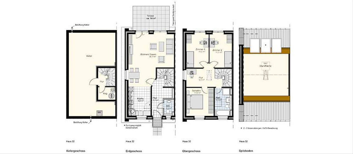
Zeile 6 bis 7
Hochqualitative Reihenhäuser
Highlights
- moderne Brennwertheiztechnik mit Unterstützung der
- Brauchwassererwärmung durch Solarkollektoren
- die Stadthäuser werden "Stein auf Stein" errichtet
- Verblendsteinmauerwerk
- 3-Scheiben-Wärmeschutz-Verglasung
- zwei Vollgeschosse
- 4- bis 5-Zimmer
- teilweise Staffelgeschosse mit Dachterrassen
- Handtuchheizkörper
- sonnige Terrassen, dank bester Ausrichtung
- separate Stellplätze
- Vollkeller
- Aussenpodest mit Glasüberdachung
- frostsichere Außenzapfstelle
Die Lage
Tornesch wächst
Mitten in Tornesch entsteht ein neues Stadtviertel, das Flair und Charme verspricht und durch seine zentrale Citylage heraussticht. Verschiedenste generationsübergreifende Wohnmöglichkeiten versprechen lebendige Vielfalt für dieses attraktive Wohngebiet, das in direkter Anbindung zum Bahnhof errichtet wird. Der dritte Bauabschnitt besteht aus zwei modernen Reihenhauszeilen, die erstklassige Grundrisse beherbergen und teilweise mit Staffelgeschossen und zusätzlichen Dachterrassen ausgestattet sind. Insgesamt sind in diesem Bauabschnitt nur 13 Reihenhäuser geplant. Mit einer Auswahl an unterschiedlichen Hausgrößen von ca. 100 bis 128 m² bietet dieses Quartier für jeden Geschmack etwas, sei es für Singlehaushalte oder für Familien. In wenigen Minuten geht?s vom Sportplatz-Quartier zur A23, so sind die nahegelegenen Zentren der Großstädte im Norden und Süden schnell und bequem zu erreichen. Aber auch - wenn auf die Nutzung des Pkws verzichtet werden kann - ermöglicht eine gute Bus- und Bahnverbindung, die fußläufig zu erreichen ist, eine schnelle Anbindung an Hamburg.
- Einkaufsmöglichkeiten in direkter Nähe
- Bahnanschluss fußläufig zu erreichen
- Schulen und Kita in der Nähe
- Anbindung an Hamburg durch die Autobahn A23
- Nord- und Ostsee in weniger als 1 Stunde
Rechtlicher Hinweis: Die Informationen zum Bauvorhaben sind ein redaktioneller Beitrag der neubau kompass AG. Er dient ausschließlich Informationszwecken und stellt kein Angebot im rechtlichen Sinne dar. Die angebotenen Inhalte werden von der neubau kompass AG nach § 2 TMG veröffentlicht und kontrolliert. Informationen zu einer etwaigen Provisionspflicht sind beim Anbieter zu erfragen. Alle Angaben, insbesondere zu Preisen, Wohnflächen, Ausstattung und Bezugsfertigkeit sind ohne Gewähr. Irrtum vorbehalten.

