Stauch Wohnbau

Peretshofener Straße 5

Neubau von 14 Eigentumswohnungen

Projektdetails

  • Peretshofener Straße 5, 81479 München / Solln
  • Eigentumswohnung
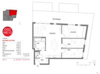
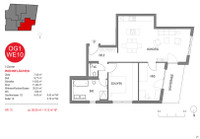
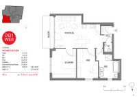
  • 775.800 € - 2.219.500 €
  • 2 - 4 Zimmer
  • 68,06 - 193,67 m2
  • 2027
  • 14
  • Gehoben
  • 27837

Merkmale

  • Aufzug
  • Balkon
  • Bodengleiche Dusche
  • Elektrische Rollläden
  • Feinsteinzeugfliesen
  • Fenster 3-fach verglast
  • Fußbodenheizung
  • Ladestation für Elektrofahrzeuge
  • Parkettboden
  • Teilw. Gartenanteil
  • Terrasse
  • Tiefgarage
  • Video-Gegensprechanlage

Lage

Auf der Karte anzeigen

Weitere Infos

Kaufpreis Stellplatz: 38.200 €

Wohnbeispiele

Exposé/Preisliste anfordern
Pflichtfelder *

Anzahl der Zimmer

Wir behandeln deine Daten vertraulich. Mit dem Absenden erklärst du dich mit der Verarbeitung deiner Anfrage gemäß unserer Datenschutzerklärung und AGB für Verbraucher:innen einverstanden.

Projektbeschreibung

Bild Neubau Eigentumswohnungen Peretshofener Straße München: Visualisierung eines Mehrfamilienhauses

FÜHLEN SIE
SICH ZUHAUSE.

- WILLKOMMEN IN SOLLN -

Stellen Sie sich vor: Grün wohnen am Isarhochufer, urban angebunden und doch mitten im Leben. Alles, was Sie für den Alltag brauchen, liegt direkt um die Ecke. In der Peretshofener Straße 5 in München-Solln wird aus vier Wänden ein echtes Zuhauseein Ort, an dem Sie ankommen und durchatmen können.

DURCHDACHT. VON UNTEN NACH OBEN.

Von der Tiefgarage bis zur Dachgeschosswohnung ist alles auf Qualität und Zukunft ausgerichtet. Das Gebäude verbindet klare Architektur mit nachhaltigem Anspruch - hochwertig in der Ausführung, vorausschauend in der Planung.

Energieeffiziente Konzepte, elektrische Rollläden und eine Video-Sprechanlage sorgen für Komfort und Sicherheit im Alltag. In der Tiefgarage stehen Stellplätze mit Ladesäulen für E-Fahrzeuge bereit. Kurz: Ein Haus, das heute begeistert und morgen überzeugt.

KLARE KANTE. ZEITLOSER CHARAKTER.

Moderne Architektur mit präzisen Ecken und Linien trifft auf durchdachtes Wohnen. Die Fassade spielt mit unterschiedlichen Strukturen und Tiefen - ein lebendiger Rhythmus aus Licht und Schatten, der dem Haus Ruhe und Wertigkeit verleiht. Präzise proportionierte Fenster akzentuieren die klare Geometrie; Balkone und Terrassen sind mit wertig gestalteten Geländern ausgestattet und fügen sich ins Gesamtbild ein.

Die 14 Wohneinheiten bieten Raum für individuelle Entfaltung und sonnige Außenbereiche.

ALLES IM ÜBERBLICK
  • 14 Wohnungen mit ca. 68 m² bis 194 m² Wohnfläche
  • Terrassen, Balkone oder private Gärten
  • Tiefgarage mit Einzelstellplätzen
  • Schöne und moderne Ausstattung
Bild Neubau Eigentumswohnungen Peretshofener Straße München: Visualisierung eines großen Wohnzimmers

STILVOLL.
HOCHWERIG.
SOLLN.

Zeitgemäße Architektur mit klaren Linien trifft auf zeitloses Wohnen - und schafft Raum für schöne Momente in der Peretshofener Straße 5. Genießen Sie Ihr neues Zuhause, drinnen wie draußen, mit Blick ins Grüne und kurzen Wegen ins Zentrum.

Ausstattungen
  • Hochwertige Parkettböden
  • Komfortable Fußbodenheizung
  • Feinsteinfliesen in den Bädern
  • Holz-Alufenster mit 3-fach Isolierglas
  • Bodenebene Duschen
  • Video-Sprechanlage
  • Elektrische Rollläden
  • Aufzug
  • Garagenstellplätze mit Ladesäulen
  • Energieeffiziente Bauweise
  • Vorrüstung Glasfaser
  • etc.
Bild Neubau Eigentumswohnungen Peretshofener Straße München: Visualisierung eines Mehrfamilienhauses

SOLLN.

Die Peretshofener Staße 5 liegt im begehrten, grün geprägten München-Solln - ruhig und zugleich hervorragend angebunden. Die S-Bahn-Station Solln sowie mehrere Busverbindungen bringen Sie komfortabel und zügig in die Innenstadt. Für den täglichen Bedarf ist bestens gesorgt: In unmittelbarer Nähe befinden sich Supermärkte, Bäckereien, Drogerien, Feinkost und Cafes.

Der besondere Reiz dieser Adresse ist die Nähe zum Isarhochufer: Nur wenige Schritte trennen Sie von den weitläufigen Isarauen - perfekt für Spaziergänge, Joggingrunden oder eine entspannte Auszeit im Grünen. Familien schätzen das ruhige Umfeld, sowie das gute Angebot an Kitas, Schulen und Freizeitmöglichkeiten in der Umgebung. Kurz gesagt: eine Lage, die modernes Stadtleben mit hoher Lebensqualität und Natur vor der Haustür verbindet.

Rechtlicher Hinweis: Die Informationen zum Bauvorhaben sind ein redaktioneller Beitrag der neubau kompass AG. Er dient ausschließlich Informationszwecken und stellt kein Angebot im rechtlichen Sinne dar. Die angebotenen Inhalte werden von der neubau kompass AG nach § 2 TMG veröffentlicht und kontrolliert. Informationen zu einer etwaigen Provisionspflicht sind beim Anbieter zu erfragen. Alle Angaben, insbesondere zu Preisen, Wohnflächen, Ausstattung und Bezugsfertigkeit sind ohne Gewähr. Irrtum vorbehalten.

Anbieter

Stauch Wohnbau

Lohenstraße 5, 82166 Gräfelfing

Stauch Wohnbau
Ansprechpartner

Bild des Ansprechpartners

Fabian Wagner
+49 (0)89 548017534
+49 (0)173 4718704
f.wagner@stauch-wohnbau.de


Bild des Ansprechpartners

Joel Zenker
+49 (0)89 548017541
j.zenker@stauch-wohnbau.de

Weitere Projekte in der Nähe