First Home Wohnbau GmbH

Mein Beelitz

Neubau von 18 Doppelhaushälften

  • Effizienzhaus 55
  • Provisionsfrei
  • Schlüsselfertig

Projektdetails

  • Am Stellwerk 27, 29, 31 u.a., 14547 Beelitz
  • Doppelhaushälfte, Haus
  • 535.000 € - 660.000 €
  • 4 - 5 Zimmer
  • 119 - 141 m2
  • vsl. Herbst 2026
  • 16
  • Gehoben
  • 23404

Merkmale

  • Abstellraum
  • Badewanne
  • Bodentiefe Fenster
  • Fußbodenheizung
  • Handtuchheizkörper
  • Hauswirtschaftsraum
  • Laminatboden
  • Luft-Wasser-Wärmepumpe
  • Offene Küche
  • PKW-Stellplätze
  • Privatgärten
  • Rollläden
  • Tageslichtbad
  • Terrasse
  • Vorbereitung für E-Ladestation

Lage

Auf der Karte anzeigen

Wohnbeispiele

Exposé/Preisliste anfordern
Pflichtfelder *

Wir behandeln deine Daten vertraulich. Mit dem Absenden erklärst du dich mit der Verarbeitung deiner Anfrage gemäß unserer Datenschutzerklärung und AGB für Verbraucher:innen einverstanden.

Projektbeschreibung

Sommer im eigenen Garten
– Wohnen inmitten der Spargelstadt Beelitz –

Noch 16 Doppelhaushälften verfügbar

www.mein-beelitz.de
provisionsfrei direkt vom Bauträger

Bild Neubauprojekt Mein Beelitz: Visualisierung eines Doppelhauses

Angrenzend an ein Landschaftsschutzgebiet und fußläufig zum Bahnhof und zur Beelitzer Altstadt entsteht auf ca. 33.000 m² das familienfreundliche Wohngebiet „Mein Beelitz“ mit 34 Doppelhaushälften, 17 Baugrundstücken für freistehende Einfamilienhäuser sowie nach derzeitiger Planung Reihenhäuser und Mehrfamilienhäuser.

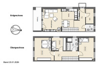
Die Doppelhaushälften unterscheiden sich im Hinblick auf Grundstücks- und Hausgröße sowie Grundriss und Architektur. Es gibt drei Haustypen mit 119 m² bis 141 m² Wohnfläche sowie 4 und 5 Zimmern. Sinnvoll konzipiert und gut ausgestattet schaffen die unterschiedlichen Typen im Effizienzstandard EH 55 ein solides Fundament für Ihren ganz persönlichen Wohntraum.

Die Doppelhaushälften werden schlüsselfertig angeboten.

Bild Neubauprojekt Mein Beelitz: Visualisierung eines Doppelhauses

Diese „Highlights“ schätzen die bisherigen Erwerber:

  • Familienfreundliches Wohnquartier umgeben vom Landschaftsschutzgebiet und nahe dem Zentrum der Spargelstadt Beelitz ermöglicht eine hohe Lebensqualität
  • Nur 250 m bis zum Regionalbahnhof Beelitz mit direkter Bahnverbindung nach Potsdam und Berlin sowie mit einmaligem Umsteigen zum Flughafen BER
  • Sehr gute Infrastruktur der Stadt Beelitz mit Kitas, Schulen, medizinischer Versorgung, Apotheken sowie Super- und Getränkemärkten (z. B. ALDI, Lidl, REWE, Getränke Hoffmann) und vielfältigen Freizeit-, Sport- und Erholungsmöglichkeiten wie z. B. dem neuen Naturfreibad (fußläufig in 10 Minuten erreichbar)
  • Eigenes Grundstück pro Doppelhaushälfte, kein Wohnungseigentum
  • Effizienzhaus EH 55 – Primärenergiebedarf nur 55 % eines vergleichbaren Neubaus gemäß GEG, 65 % des Wärme- und Kälteenergiebedarfs werden aus erneuerbaren Energien durch effiziente Wärmepumpentechnik erzeugt
  • Autarke ökologische Energieerzeugung durch hocheffiziente, innovative Luft-Wasser-Wärmepumpe Viessmann Vitocal 252-A mit 190 l Warmwasserspeicher inklusive Fundament für das Außengerät
  • Fußbodenheizung im Erd- und Obergeschoss mit Einzelraumsteuerung über die Viessmann ViCare App
    Besonderer Hinweis: Die Cooling-Funktion der eingebauten Luft-Wasser-Wärmepumpe erlaubt im Sommer ein aktives Kühlen um bis zu 4 Grad gegenüber der Außentemperatur
  • Glasfaseranschluss für schnelles Internet vorhanden
  • Bestes Preis-Leistungs-Verhältnis nach Kundenmeinung

Folgende Bau- und Ausstattungsmerkmale sind im schlüsselfertigen Kaufpreis enthalten (Standard):

  • Außenmauerwerk aus d=17,5 cm starken Poroton-Planziegel-Mauerwerk (Haus Nr. 58, 60, 62, 64 abweichend in Kalksandstein) plus 16 cm Wärmedämmverbundsystem, Haustrennwand in 17,5 cm Kalksandstein
  • Hochwertiger, eingefärbter Silikonharzputz (2 mm Scheibenputz, Farbklasse C1)
  • Innenputz als einlagiger Gipsputz Q2
  • Klimaschutzfenster mit 6-Kammerprofil, 3-fach-Verglasung (Ug = 0,6) Regel-Air® inkl. Fensterbänke
  • Schallschutzfenster mit 40 dB, Schallschutzklasse 4 in den Aufenthaltsräumen (Wohn-, Schlaf-, Kinderzimmer und Küche)
  • Fenster und Haustür außen farbig foliert
  • Fenster-Rollläden im Erd- und Obergeschoss mit Gurtwickler
  • Elektrische Vorbereitung für Funk-E-Motoren-Rollläden (ohne Motor und Schalter)
  • Innenwände massiv gemauert mit Poroton-Planziegel
  • Engobierte Tondachziegel der Firma Röben, Fabrikat MONZAplus
  • Endbehandelte, formschöne Vollholztreppe aus Buche
  • Wärmegedämmte Bodenklapptreppe
  • Im Dachboden sind ca. 5 m² als Abstellfläche abgebrettert
  • Bad-/Gäste-WC-Paket inkl.:
    • Wand- und Bodenfliesenarbeiten (bis 30 × 60 cm)
    • Badausstattung REISSER Florida mit Aufputz-Armaturen
    • Acryl-Duschwanne 90 × 90 cm und Dusch-Schwingtür „New Soleo“ 90 × 195 cm, Klarglas 6 mm
    • Elektrische Handtuchheizkörper 60 × 120 cm im Bad und Gäste-WC
  • Bodenfliesen (bis 30 × 60 cm) im Hausanschlussraum mit Sockelleisten
  • Klick-Laminat „Hinterseer Eterna Loc8“ inkl. Sockelleisten in allen Räumen, außer Bädern und Hausanschlussraum
  • Malerarbeiten an Wänden und Decken mit Anstrich „Flüssige Raufaser Mittelkorn“
  • Innentüren
  • Vorbereitung für Wallbox-Installation am PKW-Stellplatz
  • Kaufpreiszahlung gemäß MaBV, alternativ gegen Aufpreis 20 % nach Vertragsabschluss und 80 % nach Fertigstellung und Zug um Zug bei Übergabe

Zusätzlich werden gegen Aufpreis diverse Upgrades angeboten.

Bild Neubauprojekt Mein Beelitz: Visualisierung eines Doppelhauses

Verkehrsanbindung - einfach nur gut angebunden

Der Bahnhof Beelitz Stadt ist nur 250 m vom neuen Wohnquartier „Mein Beelitz“ entfernt und optimal angebunden:

Mit der Regionalbahn:

  • 28 Minuten nach Berlin-Wannsee – von dort schnell weiter zum Bahnhof Berlin-Zoologischer Garten und Hauptbahnhof Berlin + BER
  • 28 Minuten zum Hauptbahnhof Potsdam

Mit dem Regiobus:

  • 25 Minuten über Seddin und Michendorf zum Potsdamer Hauptbahnhof

Mit dem Auto:

  • 20 Minuten nach Potsdam
  • 35 Minuten nach Berlin-Charlottenburg
  • 35 Minuten zum Flughafen BER

In wenigen Kilometern ist man auf der A9 und der A10 (Berliner Ring) und erreicht so zügig Frankfurt/Oder, Dresden und Braunschweig/Hannover ebenso wie Leipzig, München, Hamburg und viele weitere Orte.

Bild Neubauprojekt Mein Beelitz: Übersichtskarte zum Bauprojekt

First Home Wohnbau GmbH – immer eine gute Wahl!

Seit 25 Jahren entwickeln wir Wohnprojekte in Berlin und Brandenburg. Wir sind die Experten für die Realisierung Ihres Wohntraums, egal ob Baugrundstück, Eigentumswohnung, Doppel- oder Reihenhaus. Siehe auch www.firsthome.de.

Interessiert?

Wir beraten Sie gerne bei einer Besichtigung des neuen Wohnquartiers vor Ort – auch im Musterhaus Am Stellwerk 28 in 14547 Beelitz oder in unserem Büro in der Lietzenburger Straße 75 in 10719 Berlin.

Sprechen Sie uns an und vereinbaren Sie einen Besichtigungstermin – wir freuen uns auf Sie!

Rechtlicher Hinweis: Die Informationen zum Bauvorhaben sind ein redaktioneller Beitrag der neubau kompass AG. Er dient ausschließlich Informationszwecken und stellt kein Angebot im rechtlichen Sinne dar. Die angebotenen Inhalte werden von der neubau kompass AG nach § 2 TMG veröffentlicht und kontrolliert. Informationen zu einer etwaigen Provisionspflicht sind beim Anbieter zu erfragen. Alle Angaben, insbesondere zu Preisen, Wohnflächen, Ausstattung und Bezugsfertigkeit sind ohne Gewähr. Irrtum vorbehalten.

Rechtlicher Hinweis: Die Informationen zum Bauvorhaben sind ein redaktioneller Beitrag der neubau kompass AG. Er dient ausschließlich Informationszwecken und stellt kein Angebot im rechtlichen Sinne dar. Die angebotenen Inhalte werden von der neubau kompass AG nach § 2 TMG veröffentlicht und kontrolliert. Informationen zu einer etwaigen Provisionspflicht sind beim Anbieter zu erfragen. Alle Angaben, insbesondere zu Preisen, Wohnflächen, Ausstattung und Bezugsfertigkeit sind ohne Gewähr. Irrtum vorbehalten.

Anbieter