planformat GmbH

M hoch 5

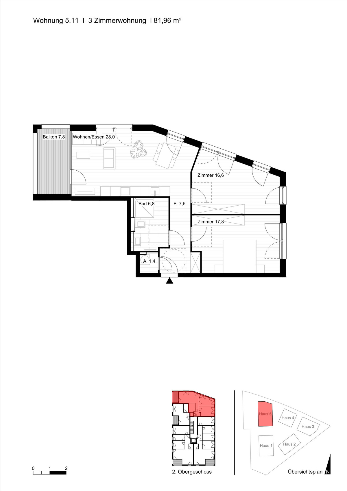
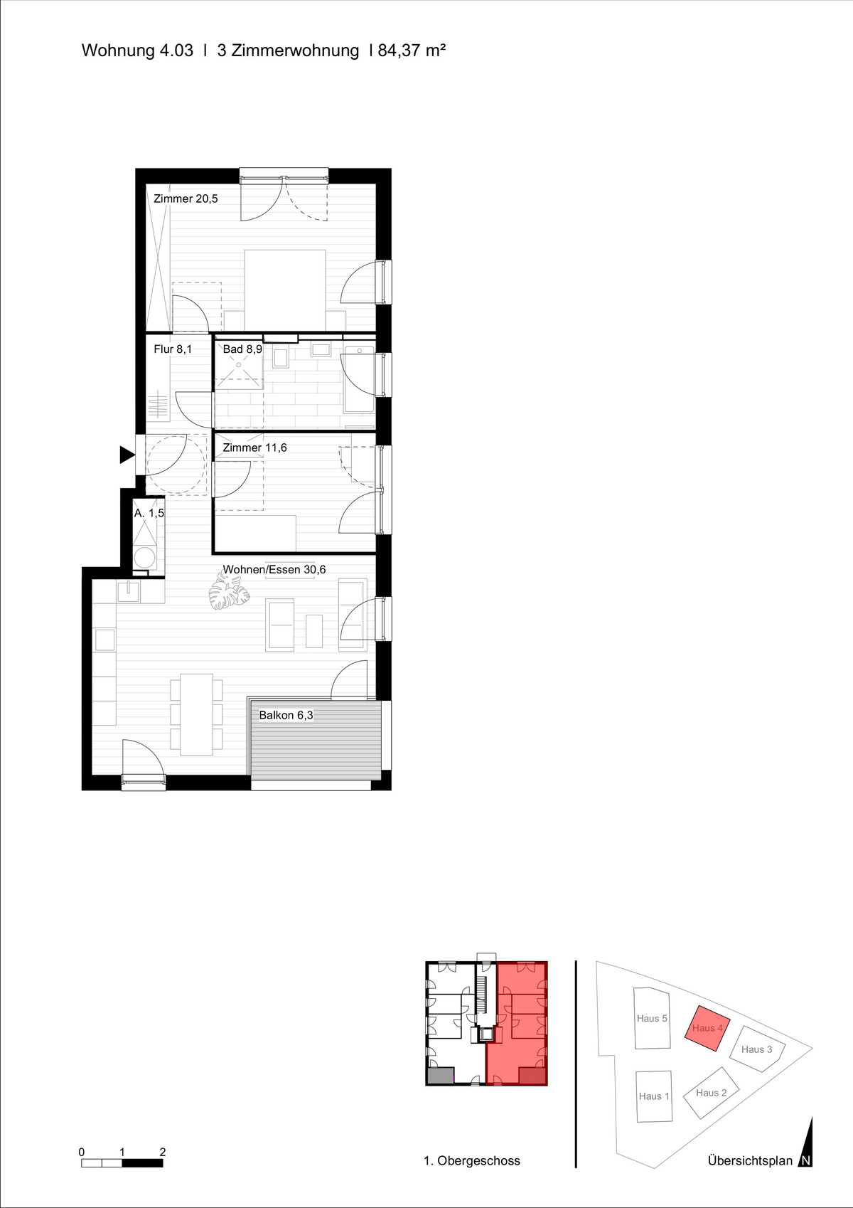
Neubau von 49 Eigentumswohnungen

  • Effizienzhaus 40 QNG

Projektdetails

  • Annemonenweg 40/1, 88074 Meckenbeuren
  • Eigentumswohnung, Kapitalanlage
  • 235.000 € - 679.000 €
  • 1 - 4,5 Zimmer
  • 37,9 - 114,3 m2
  • vsl. Ende 2027
  • 49
  • Gehoben
  • 27949

Merkmale

  • Aufzug
  • Echtholz-Parkett
  • Elektrische Raffstores
  • Feinsteinzeugfliesen
  • Kellerraum
  • Kinderspielplatz
  • Loggia
  • Luft-Wärmepumpe
  • Photovoltaikanlage
  • Sanitärausstattung von Markenherstellern
  • Terrasse
  • Tiefgarage

Lage

Auf der Karte anzeigen
Exposé/Preisliste anfordern
Pflichtfelder *

Anzahl der Zimmer

Wir behandeln deine Daten vertraulich. Mit dem Absenden erklärst du dich mit der Verarbeitung deiner Anfrage gemäß unserer Datenschutzerklärung und AGB für Verbraucher:innen einverstanden.

Projektbeschreibung

Bild Neubau Annemonenweg Meckenbeuren: Visualisierung eines Mehrfamilienhauses

M hoch 5 - Moosstrasse Meckenbeuren

KfW 40 QNG Effizienzhaus – exklusiv und provisionsfrei direkt vom Architekten

Moosstraße Meckenbeuren – Wohnen mit Stil, Weitblick und Nachhaltigkeit

In Meckenbeuren entsteht ein modernes Wohnquartier mit fünf Mehrfamilienhäusern und 49 hochwertigen Wohnungen. Die harmonische Architektur mit klassischen Putzfassaden, großen Fensterflächen und markanten Mansarddächern fügt sich perfekt in die Umgebung ein.

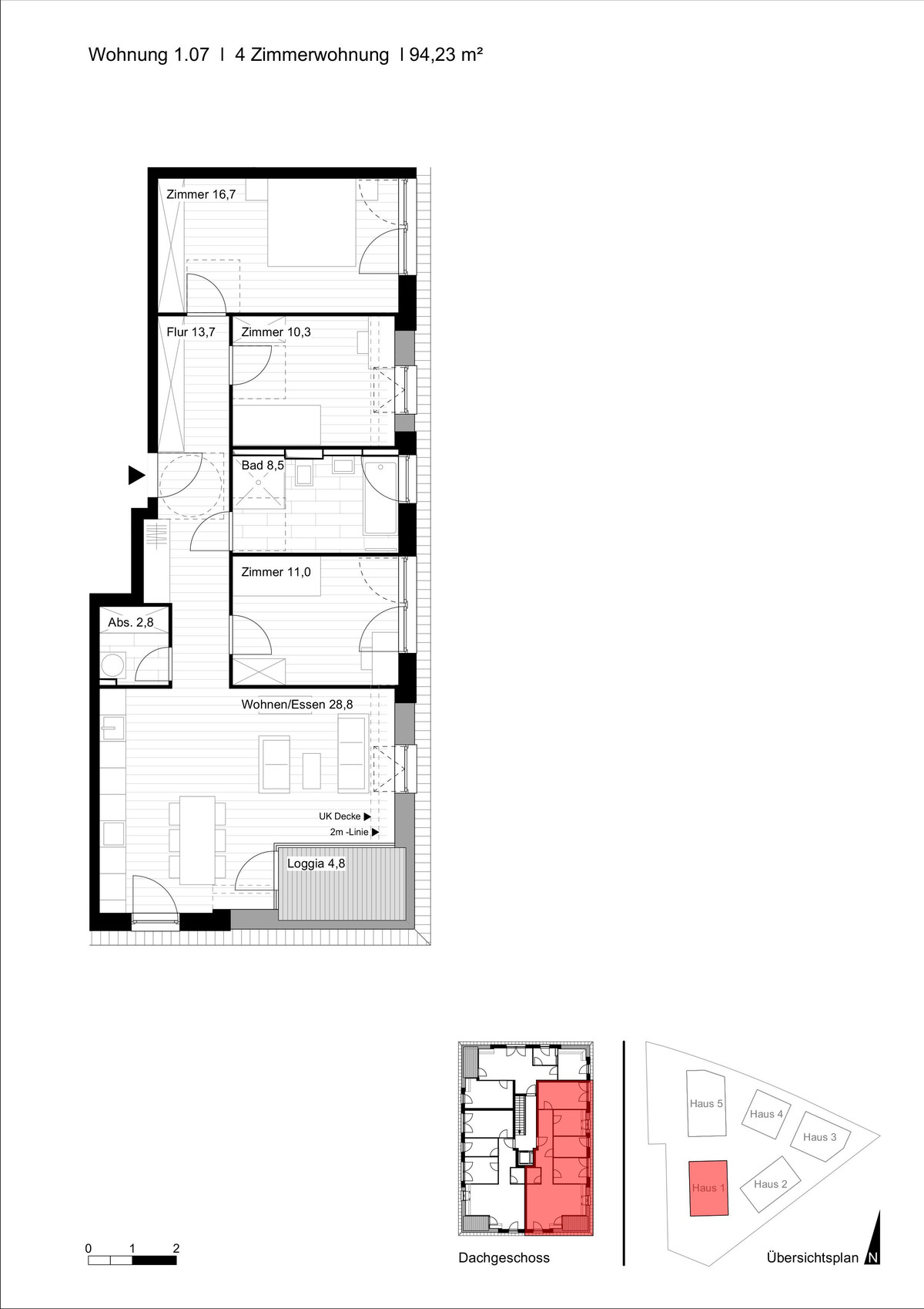
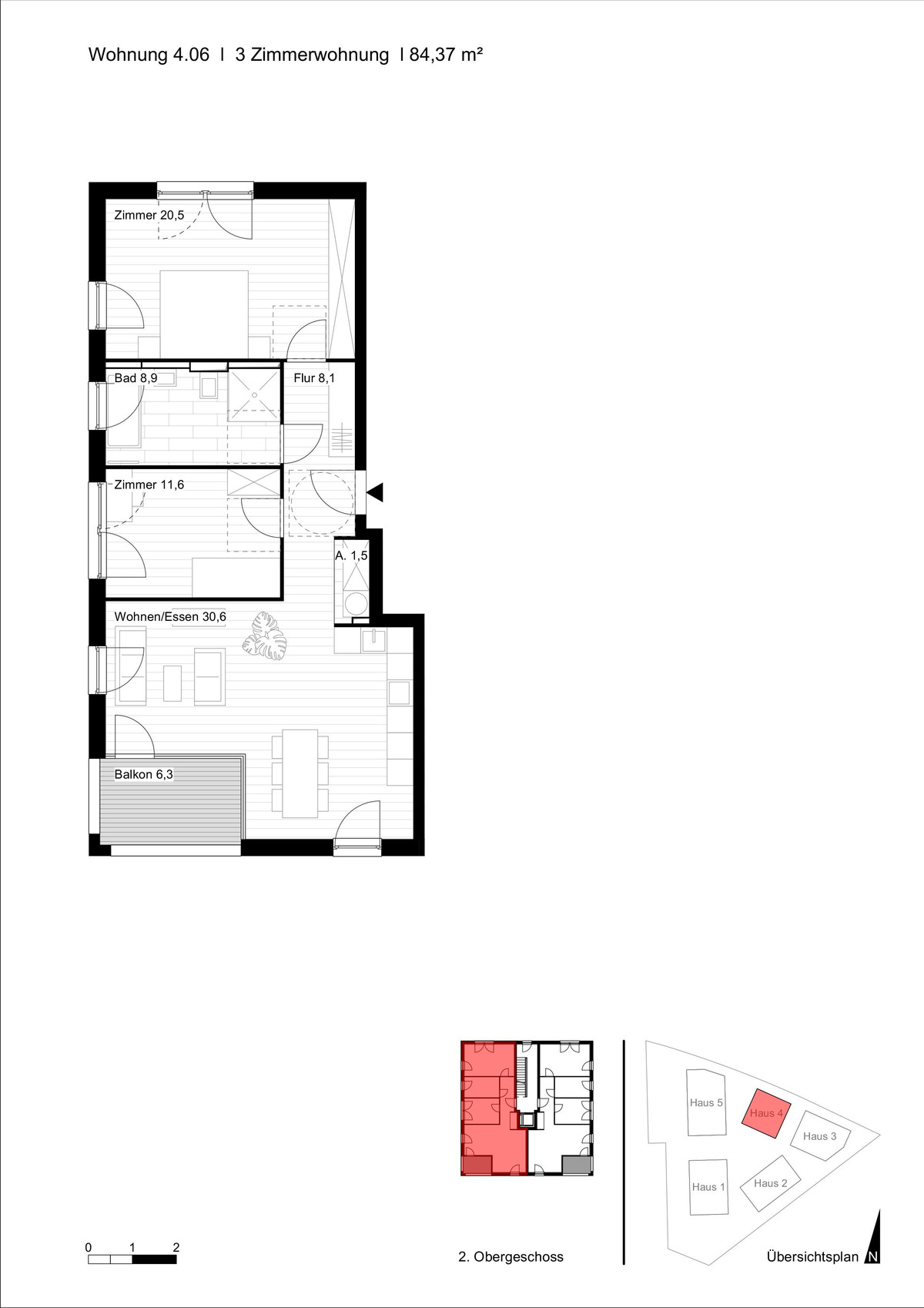
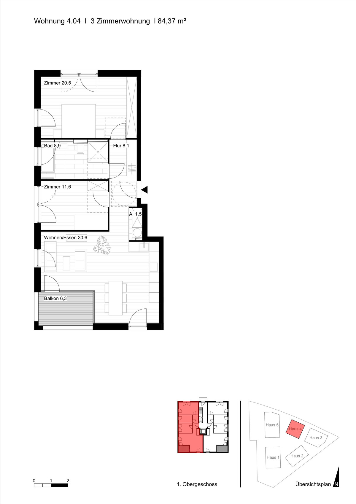
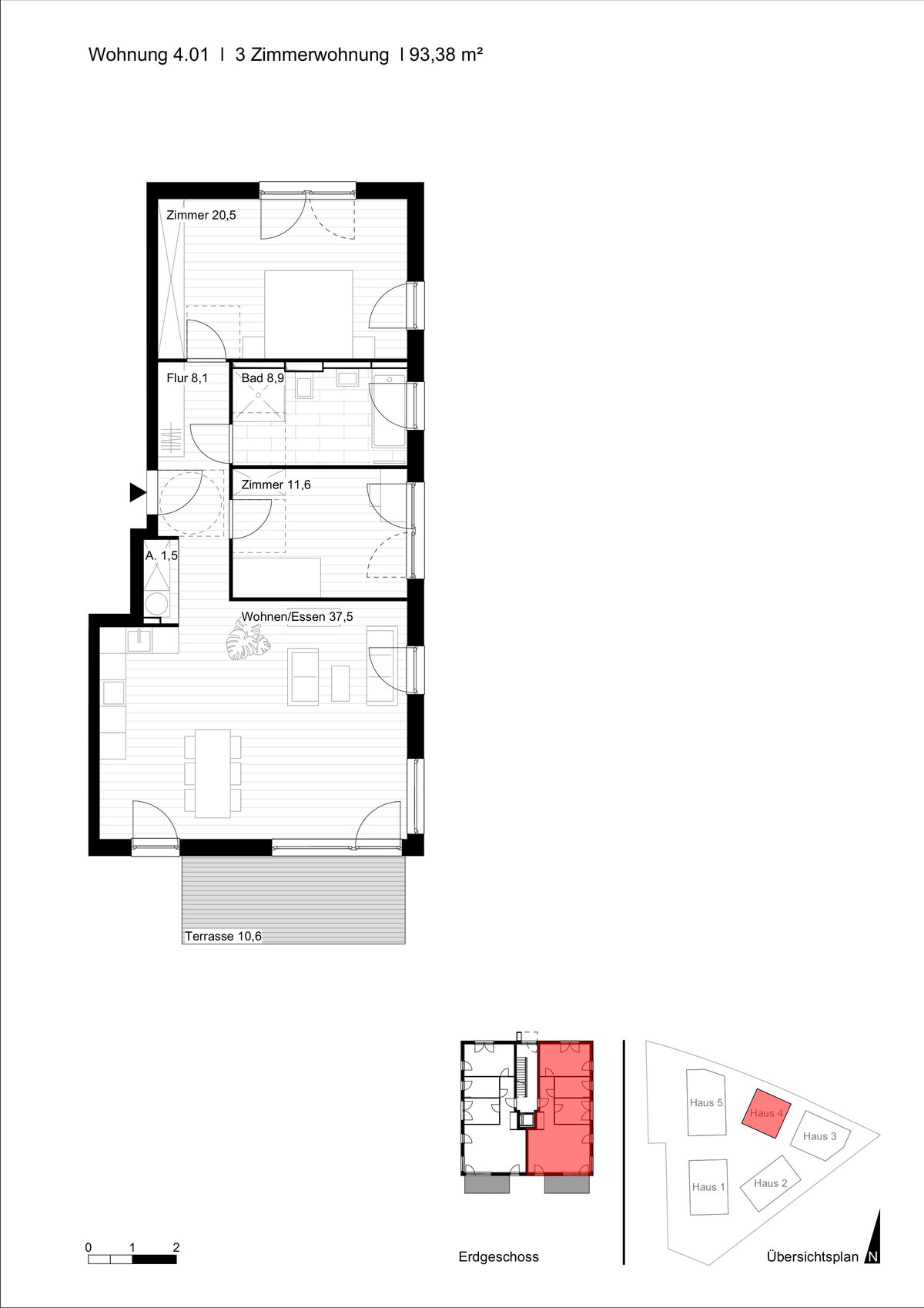
Die 1- bis 4-Zimmer-Wohnungen mit ca. 37–114 m² begeistern durch lichte Raumhöhen von 2,50 m, Eichendielenparkett, kontrollierte Be- und Entlüftung und großzügige Loggien oder Terrassen – meist mit Süd- oder Südwest-Ausrichtung und herrlichem Berg- oder Weitblick. Hochwertige Materialien und durchdachte Grundrisse schaffen Raum für jede Lebensphase – von Singles über Paare bis Familien.

Das Quartier erfüllt den KfW-Effizienzhaus-40-Standard mit QNG-Zertifizierung und wird in Massivbauweise errichtet. Wärmepumpe, Photovoltaikanlage mit Eigenstromnutzung, begrünte Dächer und barrierefreie Zugänge sorgen für nachhaltigen Wohnkomfort. Käufer profitieren zudem von zinsvergünstigten KfW-Darlehen, die besonders attraktive Finanzierungsmöglichkeiten bieten.

Die Tiefgarage mit 67 Stellplätzen und 6 Besucherplätzen, Aufzüge, ein autofreier Innenhof, Grünflächen, Spielplätze und ein Quartiersplatz schaffen Komfort, Sicherheit und Lebensqualität.

Sonderabschreibung nach § 7b EStG – Jetzt steuerlich profitieren

Kapitalanleger können neben der regulären Abschreibung zusätzliche steuerliche Vorteile nutzen. Für bestimmte Neubauten im geförderten Wohnungsbau sind Sonderabschreibungen von bis zu 5 % jährlich im Jahr der Anschaffung und in den folgenden drei Jahren möglich. In Kombination mit dem KfW-40-QNG-Standard, zinsgünstigen KfW-Krediten und der hohen Nachfrage in der Region entsteht ein besonders attraktives Investmentprofil.

Bild Neubau Annemonenweg Meckenbeuren: Visualisierung eines Mehrfamilienhauses

Highlights

M hoch5 Moosstraße Meckenbeuren vereint architektonische Qualität, Energieeffizienz und Wohnwert – in idealer Lage zwischen Ravensburg, Friedrichshafen und dem Bodensee. Perfekt für Eigennutzer und Kapitalanleger.

  • 5 Gebäude mit 49 Wohneinheiten
  • KfW-40-QNG & zinsvergünstigte KfW-Darlehen
  • Sonderabschreibung nach § 7b EStG
  • Wärmepumpe & PV-Anlage mit Eigenstromnutzung
  • Eichendielenparkett, Lüftung, Raumhöhe 2,50 m
  • Tiefgarage, Aufzug, autofreier Innenhof
  • Spielplätze & Quartiersplatz
  • Großteils mit Berg- und Weitblick
Bild Neubau Annemonenweg Meckenbeuren: Visualisierung eines hellen Wohnzimmers

Nachhaltig. Modern. Komfortabel.

Diese Immobilie vereint moderne Architektur mit hochwertigen Ausstattungsmerkmalen für zeitgemäßes Wohnen. Die Ausrichtung nach Süd, Südost und Südwest sorgt für helle, lichtdurchflutete Räume. Nachhaltig gebaut nach KfW40 QNG-Standard überzeugt das Haus auch energetisch.

Die Fassade mit Strukturputz und abgesetzten Fenstern trifft auf ein langlebiges, vollständig recycelbares Stehfalzdach – wartungsarm und ökologisch. Innen erwarten Sie rund 2,50 m hohe Räume, Eichenparkett in Wohnbereichen und Feinsteinzeug in Nasszonen. Energieeffiziente Kunststoff-Fenster mit elektrischem Raffstore sorgen für Komfort und Sonnenschutz.

Die Bäder sind hochwertig ausgestattet – mit bodengleichen Duschen für zeitlose Eleganz. Barrierefreie Wohneinheiten und ein Aufzug mit direktem Zugang zur Tiefgarage garantieren maximalen Komfort. Jede Wohnung verfügt über einen Waschmaschinenanschluss, großzügige Kellerabteile und Zugang zu gemeinschaftlichen Fahrradstellplätzen.

Beheizt wird mit einer Luft-Wärme-Pumpe und Fußbodenheizung in allen Wohnräumen. Loggien und Terrassen – teilweise mit Bergblick – sowie hochwertig gestaltete Außenanlagen schaffen ein harmonisches Wohnumfeld. Die Tiefgarage ist bequem über eine überdachte, zweispurige Rampe erreichbar.

Bild Neubau Annemonenweg Meckenbeuren: Visualisierung eines hellen Wohnzimmers

Ausstattung im Überblick

  • Tiefgarage
  • Luft-Wärme-Pumpe
  • Aufzüge
  • Hochwertige Oberflächen
  • Spielplatz
  • Besucherstellplätze
  • KfW 40 QNG
  • Echtholzparkett (Eiche)
  • große Keller
  • Fahrradkeller
  • Teilweise Bergblick
  • 2,50m lichte Raumhöhe
  • Lüftung
  • Photovoltaik-Anlage
  • Sonderabschreibung
Bild Neubau Annemonenweg Meckenbeuren: Visualisierung eines Mehrfamilienhauses

Lage und Lagebeschreibung

Wohnen mit Weitblick – Lebensqualität trifft Standortvorteil

Am ruhigen Ortsrand von Meckenbeuren entsteht ein neues Wohnensemble, das modernes Wohnen mit einer naturnahen Umgebung verbindet. Umgeben von Wiesen und Feldern bietet das Projekt die perfekte Balance zwischen Rückzug und urbaner Nähe – ideal für alle, die Wert auf Lebensqualität und kurze Wege legen.

Nur wenige Fahrminuten von Friedrichshafen, Ravensburg und dem Bodensee entfernt, überzeugt die Lage mit optimaler Verkehrsanbindung sowie Nähe zu Einkaufsmöglichkeiten, Schulen und Freizeiteinrichtungen. Das Projekt fügt sich harmonisch in die Umgebung ein und schafft mit klarer Architektur und funktionalen Grundrissen zeitgemäßen Wohnraum.

Region mit Zukunft – Meckenbeuren profitiert vom Boom der Bodenseeregion

Als Teil einer wirtschaftlich starken Region punktet Meckenbeuren mit seiner Nähe zu großen Arbeitgebern, wie ZF Friedrichshafen, MTU, Airbus, Zeppelin oder Vetter. Die stabile Wirtschaftslage in der Bodenseeregion, kombiniert mit hoher Lebensqualität, sorgt für einen kontinuierlichen Zuzug – und damit für eine anhaltend hohe Nachfrage nach Wohnraum.

Die Gemeinde selbst zeichnet sich durch eine sehr gute Infrastruktur, Familienfreundlichkeit und kurze Wege in die Natur aus. Von Kindergärten bis Sportvereinen – Meckenbeuren bietet alles für den Alltag in Reichweite.

Rechtlicher Hinweis: Die Informationen zum Bauvorhaben sind ein redaktioneller Beitrag der neubau kompass AG. Er dient ausschließlich Informationszwecken und stellt kein Angebot im rechtlichen Sinne dar. Die angebotenen Inhalte werden von der neubau kompass AG nach § 2 TMG veröffentlicht und kontrolliert. Informationen zu einer etwaigen Provisionspflicht sind beim Anbieter zu erfragen. Alle Angaben, insbesondere zu Preisen, Wohnflächen, Ausstattung und Bezugsfertigkeit sind ohne Gewähr. Irrtum vorbehalten.

Anbieter

planformat GmbH

Eckenerstr. 65, 88046 Friedrichshafen

planformat GmbH