Dieses Bauvorhaben ist abverkauft.
Projektdetails
-
AdresseGeorg-Elser-Straße 3-33, 34123 Kassel / Bettenhausen
-
WohntypReihenhaus, Haus
-
Einheiten16
-
KategorieGehoben
-
Projekt-ID13323
Merkmale
- Elektrische Rollläden
- PKW-Stellplätze
- Privatgärten
- Schallschutz
- Terrasse
Lage
Projektbeschreibung
Architektur
Einzigartiges Design trifft individuelle Zweckmäßigkeit
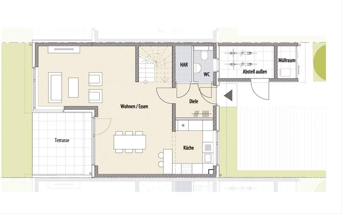
Die 16 modernen Reihenhäuser "Leben am Osterholz-Park" zeugen von der Handschrift der Baufrösche - Architekten und Stadtplaner mbH aus Kassel. Sie erhalten ein einzigartiges Architektur-Unikat. Massiv gebaute Wohneinheiten (140 m²) mit großzügigen Bereichen für Ihre ganze Familie, bieten viel Platz zur individuellen Gestaltung Ihrer Wohnträume. Unterschiedliche Fassadenkonzepte bieten Ihnen Freiheit in der Gestaltung der äußeren Anmutung Ihres Eigenheims. Die durchgehende Hauszeile mit einer festgelegten Firsthöhe bildet einen Schutzriegel für die privaten Gärten und Terrassen in direkter Ausrichtung zur Westsonne. Somit können Sie sich in Ihre Wohlfühloase zurück ziehen, die Ruhe genießen.Ausbauhäuser


Individuelles Wohnen ganz nach Ihrem Geschmack
Mit Eigeninitiative zur Traumimmobilie!Dem Projekt Leben am Osterholz-Park unterliegt eine Besonderheit. Die Eigenheime werden als Ausbauhäuser angeboten. Somit besteht die Möglichkeit, Kosten zu sparen und mit eigener Kraft sein neues zu Hause ganz individuell auszubauen. Sie werden stolz auf das Selbstgestaltete sein. Durch gegenseitige Hilfe entstehen schon früh freundschaftliche Bindungen zu Ihren neuen Nachbarn. Gern beraten wir Sie, wie Sie Ihr Eigenheim ganz nach Ihren eigenen Bedürfnissen individuell gestalten können.
Ausbau-Pakete
Ausbauvariante Basis
Im Leistungsumpfang enthalten:- erschlossenes Grundstück
- Rohbau (Bodenplatte, Mauerwerk, Decken)
- Zimmererarbeiten
- Dachdeckerarbeiten
- Kunststofffenster mit Schallschutz-Mehrfachverglasung und abschließbaren Fenstergriffen
- elektrische Rollläden im EG (außer FF)
- Kunststoffhaustür mit Glaseinsatz und automatischer Mehrfachverriegelung
- Stahltreppe mit Baustufen
- Fassade mit Wärmedämmung und Außenputz
- Hauseingangsbereich gepflastert
- Pkw-Stellplatz gepflastert
- Hausanschlüsse (Gas, Wasser, Strom, Telekom;
- Schmutz- und Regenwasseranschlüsse an öffentl. Kanal
Als Eigenleistungen zu erbringen:
- nichttragende Innenwände
- Trockenbau im Dachgeschoss
- Elektro-, Heizungs- und Sanitärinstallationen
- Gas-Brennwerttherme und Flachheizkörper
- Solarthermieanlage
- Verspachtelung der Deckenfugen
- Innenputz
- Estricharbeiten
- Sanitäreinrichtung
- Fliesenarbeiten
- Innentüren und Zargen
- Bodenbeläge (Teppich, Laminat etc.)
- Tapezier- und Malerarbeiten
- Treppenbelag (Holz oder Naturwerkstein)
- Gartenterrasse
- Gartenanlage und Bepflanzung
Ausbauvariante Plus
Im Leistungsumpfang enthalten:- erschlossenes Grundstück
- Rohbau (Bodenplatte, Mauerwerk, Decken)
- Innenwände (nach geplantem Grundriß)
- Zimmererarbeiten
- Dachdeckerarbeiten
- Kunststofffenster mit Schallschutz-Mehrfachverglasung und abschließbaren Fenstergriffen
- elektrische Rollläden im EG (außer FF)
- Kunststoffhaustür mit Glaseinsatz und automatischer Mehrfachverriegelung
- Trockenbau im Dachgeschoss
- Elektro-, Heizungs- und Sanitärinstallationen
- Gas-Brennwerttherme und Flachheizkörper
- Solarthermieanlage
- Verspachtelung der Deckenfugen
- Innenputz
- Estricharbeiten
- Stahltreppe mit Baustufen
- Fassade mit Wärmedämmung und Außenputz
- Hauseingangsbereich gepflastert
- Pkw-Stellplatz gepflastert
- Hausanschlüsse (Gas, Wasser, Strom, Telekom;
- Schmutz- und Regenwasseranschlüsse an öffentl. Kanal
Als Eigenleistungen zu erbringen:
- Sanitäreinrichtung
- Fliesenarbeiten
- Innentüren und Zargen
- Bodenbeläge (Teppich, Laminat etc.)
- Tapezier- und Malerarbeiten
- Treppenbelag (Holz oder Naturwerkstein)
- Gartenterrasse
- Gartenanlage und Bepflanzung
Haus- und Grundstücksgrößen
Freie Entfaltung in eigenem Raum
Auf einer Wohnfläche von ca. 140 m² und einer Grundstücksfläche von insgesamt ca. 212 m² können Sie sich entspannen und den eigenen Schritt vorgeben. Darin enthalten sind ca. 34 m² Wohnfläche im Dachgeschoss als Ausbaureserve. Zudem steht Ihnen ein Außenabstellraum mit Dachboden zur Verfügung.Mit den großen und geschlossen zu gestaltenden Westgärten von ca. 90 m² und dem vorhandenen Platzangebot mit ca. 151 m² Wohn- und Nutzfläche inklusive Außenabstellraumflächen bietet das Haus beste Voraussetzungen für Ihr neues Zuhause.
Leben & Lifestyle
Inspirierende Lebensart vereint mit kurlureller Vielfalt
Verkehrstechnisch sind Sie gut angebunden. So ist die Autobahn A7 in nur wenigen Minuten zu erreichen, ebenso Haltestellen von Bus und Tram.Das Zentrum von Kassel, mit seinen vielfältigen Einkaufsmöglichkeiten, gastronomischen Angeboten und schönen Parks liegt nur 6 km entfernt. Kassel beherrscht den Spagat zwischen Historie und Moderne wie kaum eine andere Stadt. Das Freizeit-, Kultur- und Sportangebot mit documenta, Museumslandschaft, Weltkulturerbe Bergpark Wilhelmshöhe, Grimmwelt, Bädern, Golfanlage, Wintersport, etc. ist international einmalig.
Alle Bildungseinrichtungen bis hin zur Universität sind vorhanden und werden durch renommierte Forschungsinstitute ergänzt. Der Wirtschaftsstandort Kassel besteht aus Handels-, Handwerks-, Gastronomie- und Industriebetrieben, die vielfältige und anspruchsvolle Arbeitsplätze bereithalten. Hinzu kommt eine hochklassige medizinische Versorgung.
Energiekennwerte
- Endenergiebedarf: 48,80 kWh/(m²*a)
- wesentlicher Energieträger: Erdgas
- Heizungsart: Gasheizung
- Baujahr: 2016/2017
- Energieeffizienzklasse: A
Rechtlicher Hinweis: Die Informationen zum Bauvorhaben sind ein redaktioneller Beitrag der neubau kompass AG. Er dient ausschließlich Informationszwecken und stellt kein Angebot im rechtlichen Sinne dar. Die angebotenen Inhalte werden von der neubau kompass AG nach § 2 TMG veröffentlicht und kontrolliert. Informationen zu einer etwaigen Provisionspflicht sind beim Anbieter zu erfragen. Alle Angaben, insbesondere zu Preisen, Wohnflächen, Ausstattung und Bezugsfertigkeit sind ohne Gewähr. Irrtum vorbehalten.