Dieses Bauvorhaben ist abverkauft.

Martens & Kühl

Kösterbergstraße 85 und 87

Neubau von 6 Eigentumswohnungen

Projektdetails

  • Kösterbergstraße 85 und 87, 22587 Hamburg / Blankenese
  • Eigentumswohnung
  • 6
  • Gehoben
  • 11742

Lage

Auf der Karte anzeigen

Projektbeschreibung

Neubau von zwei Stadthäusern mit je 3 Wohneinheiten

Bilder Neubau Wohnungen Kösterbergstrasse Hamburg-Blankenese

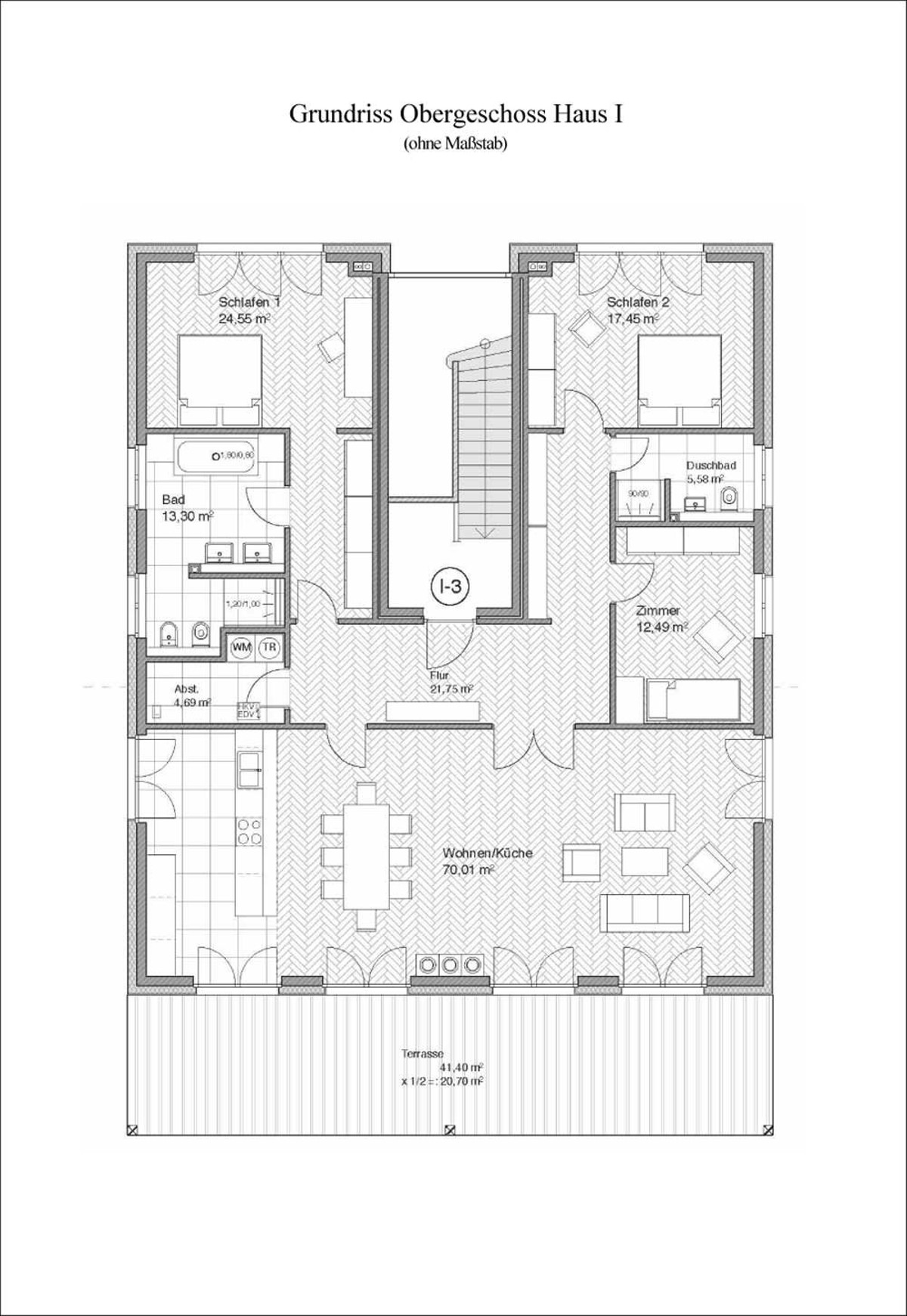
Die Häuser Kösterbergstraße 85 und 87 werden als baugleiche Stadthäuser mit jeweils drei Wohneinheiten errichtet. Im Obergeschoss erstreckt sich eine Wohnung jeweils über die gesamte Etage. Zwei weitere Wohnungen sind als Maisonette-Wohnungen jeweils über das Erd- und Untergeschoss ausgebildet. 

Das Bauvorhaben

Bilder Neubau Wohnungen Kösterbergstrasse Hamburg-Blankenese Bilder Neubau Wohnungen Kösterbergstrasse Hamburg-Blankenese Bilder Neubau Wohnungen Kösterbergstrasse Hamburg-Blankenese

Städtebaulich integrieren sich die Häuser Kösterbergstraße 85 und 87 in die vorhandene traditionelle Bebauung der Kösterbergstraße. Die durchdachten Grundrisse schaffen darin einen hohen Wohnwert, welcher sich auch in den höheren Decken und großzügigen Räumen wiederspiegelt. Eine helle Fassade in Verbindung mit dezenten Zierprofilen generiert in seiner Außenansicht eine zurückhaltende Gestaltung der beiden Stadthäuser.

Die Holzfenster und das Stabparkett aus Eichenholz im Fischgrätmuster mit einer Hamburger Sockelleiste unterstreichen den Charme der Wohnungen. Bäder und die Küchen erhalten dem Stil des Hauses entsprechend ausgewählte italienische Fliesen. Ergänzt wird die Ausstattung durch weiße endbehandelte Wohnungsinnentüren mit vier Kassetten. Die Wände und Decken erhalten einen Malervlies mit hellem Anstrich. Alle Wohnungen verfügen über Terrassen/ Balkone mit Belag aus Bangkiraiholz. Die Schornsteinzüge, die Video-Gegensprechanlage und die strukturierte Daten-verkabelung runden die Ausstattung ab. Jede Wohnung verfügt über einen Abstellraum und einen PKW-Stellplatz. Das Gebäude entspricht einem Energieeffizienzhaus 55 (EnEV 2016). Beheizt wird es über eine energiesparende Gas-Brennwertanlage. Das Heizungssystem schafft durch die Fußbodenheizung in allen Wohnungen eine wohlige Wärme.

Bilder Neubau Wohnungen Kösterbergstrasse Hamburg-Blankenese Bilder Neubau Wohnungen Kösterbergstrasse Hamburg-Blankenese Bilder Neubau Wohnungen Kösterbergstrasse Hamburg-Blankenese

Die Lage: Hamburg-Blankenese

Die Kösterbergstraße steht als Lage für sich. Sie ist charakteristisch für den besonders schönen Stadtteil Blankenese der Freien und Hansestadt Hamburg. Nicht ohne Grund gehört Blankenese zu den gefragten Wohnlagen Hamburgs. Die besondere Hanglage des Ortes zur Elbe, der noch fast dörfliche Charakter, aber auch die gute Innenstadtanbindung sind nur Auszüge seiner charmanten Eigenschaften. In Blankenese lässt es sich stilvoll Wohnen auf angelegten und gepflegten Grundstücken.

Im Kern von Blankenese bieten sich Einkaufsgelegenheiten für den täglichen Bedarf. Von der Kösterbergstraße aus sind alle Schulen, Freizeiteinrichtungen, Restaurants sowie der beliebte Wochenmarkt in wenigen Minuten erreichbar. Auch befinden sich öffentliche Verkehrsmittel in der Nähe. In einem Spaziergang können Sie von der Kösterbergstraße die Elbe gut erreichen und erleben. Durch eine Vielzahl von Grünflächen bietet der Stadtteil Blankenese wunderbare Erholungs- und Ausflugsmöglichkeiten.

Eine schnelle Anbindung an die Hamburger Innenstadt ist per Auto über die Elbchaussee oder die Osdorfer Landstraße (B431) gegeben. Durch den öffentlichen Nahverkehr ist Blankenese per S-Bahn (Linien S1 und S11) und Bus gut zu erreichen. Um Blankenese mit den Orten Cranz und Neuenfelde zu verbinden, verkehrt regelmäßig eine Fähre. Pendlern bietet Blankenese durch die Nähe zur A7 eine Autobahnanbindung.

Bilder Neubau Wohnungen Kösterbergstrasse Hamburg-Blankenese

Rechtlicher Hinweis: Die Informationen zum Bauvorhaben sind ein redaktioneller Beitrag der neubau kompass AG. Er dient ausschließlich Informationszwecken und stellt kein Angebot im rechtlichen Sinne dar. Die angebotenen Inhalte werden von der neubau kompass AG nach § 2 TMG veröffentlicht und kontrolliert. Informationen zu einer etwaigen Provisionspflicht sind beim Anbieter zu erfragen. Alle Angaben, insbesondere zu Preisen, Wohnflächen, Ausstattung und Bezugsfertigkeit sind ohne Gewähr. Irrtum vorbehalten.

Anbieter

Martens & Kühl

Großer Wulfhagen 25, 25436 Moorrege

Martens & Kühl