Dieses Wohnbeispiel ist Teil des Bauvorhabens Isar Living

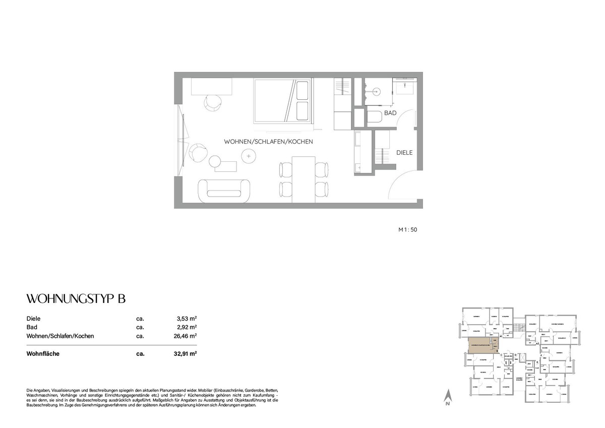
Wohneinheit 352 - Grundrisstyp B

  • Adresse
    Isartalstraße 45a, 80469 München / Isarvorstadt
  • Wohntyp
    Etagenwohnung
  • Preis
    519.000 €
  • Etage
    5. OG
  • Zimmeranzahl
    1
  • Wohnfläche
    32,91 m2
  • ID
    286588

Lage

Auf der Karte anzeigen

Der Finanzierungsrechner für Ihren Wohnkredit

Mit unserem Finanzierungsrechner kannst du schnell und bequem eine Finanzierung für deine Immobilie berechnen.

Finanzierungsbeispiel

Eigenkapital: 103.800 €
Sollzinsbindung: 10 Jahre
Tilgungsrate: 1 %
Monatsrate

1.599 €

Dieses Wohnbeispiel ist Teil des Bauvorhabens
Isar Living

Anbieter kontaktieren
Pflichtfelder *

Wir behandeln deine Daten vertraulich. Mit dem Absenden erklärst du dich mit der Verarbeitung deiner Anfrage gemäß unserer Datenschutzerklärung und AGB für Verbraucher:innen einverstanden.

Anbieter

Walser Immobiliengruppe

Bavariafilmplatz 7, 82031 Grünwald

Walser Immobiliengruppe