Dieses Wohnbeispiel ist Teil des Bauvorhabens Herzog Ludwig - Erdings neue Wohnkultur

HERZOG LUDWIG: XXL-Galeriewohnung mit Süd-Dachterrasse im Herzen Erdings

  • Baubeginn erfolgt
  • Provisionsfrei
  • Adresse
    Haager Straße 11, 85435 Erding
  • Wohntyp
    Dachgeschosswohnung
  • Preis
    1.398.000 €
  • Etage
    4. OG (DG)
  • Zimmeranzahl
    4,5
  • Badezimmer
    1
  • Schlafzimmer
    2
  • Wohnfläche
    184,42 m2
  • Balkon-Terrassen-Fläche
    14,42 m2
  • Baujahr
    2026
  • Tiefgaragen-Stellplatz
    39.900 €
  • Anz. Tiefgaragen-Stellplätze
    1
  • ID
    292630
  • Anbieter Objekt-ID
    Herzog Ludwig | 4.04

Merkmale

  • Abstellraum
  • Balkon
  • Befeuerung: Fernwärme
  • Dusche
  • Fliesenboden
  • Gehobene Ausstattung
  • Gäste-WC
  • Keller
  • Parkettboden
  • Personenaufzug
  • Tiefgaragenstellplatz
  • Vollsaniert
  • Zentralheizung

Lage

Auf der Karte anzeigen

MITTEN IM LEBEN!
Rund um HERZOG LUDWIG finden sich zahlreiche Geschäfte, Cafés, Wirtshäuser und Restaurants inmitten der lebendigen Erdinger Altstadt.
Alle Geschäfte des täglichen Bedarfs sind hier nur einen Steinwurf entfernt.
Die S-Bahn-Haltestation ist ebenfalls nur rund 500 Meter entfernt.
Kurze Wege sorgen für eine optimale Balance zwischen Arbeit, Alltag und Freizeit: Ausgleich nach jedem Gusto und für jedes Alter. Ob Relaxer oder Aktiver, das Angebot in und um Erding ist äußerst facettenreich. Filmreife Unterhaltung bietet Ihnen das örtliche Cineplex. Dazu sorgen verschiedenste Stadt- und Vereinsfeste sowie saisonale Märkte, nicht zuletzt am nur wenige Gehminuten entfernten Schrannenplatz, ganzjährig für ein buntes Programm. Noch nicht genug? Dann ist ein Abend in München dank schneller Erreichbarkeit immer eine hervorragende Option. Mit dem Kronthaler Weiher und dem Stadtpark bietet die Stadt in fußläufiger Nähe grüne Wohlfühloasen. Eine ganz besondere Oase findet man in der Therme Erding, der größten Therme der Welt. Die vielfältige Thermenwelt bringt Sommerfeeling und Badespaß für die ganze Familie - vom atemberaubenden Rutschenerlebnis bis hin zu täglich 90 Aufguss- und Wellnessangeboten. Wer gerne an der frischen Luft aktiv ist, der stößt in Erding auf ein weit verzweigtes Radwegenetz, das ideale Voraussetzungen bietet, die Stadt und den Landkreis mit seiner abwechslungsreichen Landschaft zu entdecken. Zahlreiche Veranstaltungen begeistern jedes Jahr viele Besucher: Sowohl „Sinnflut“, das zehntägige Kultur-Festival, als auch das bekannte 10-tägige Herbstfest Erding, das drittgrößte Volksfest in Oberbayern.
In Erding ist für jeden was dabei!

Ausstattung

LEBENSQUALITÄT INKLUSIVE:
Elegante Ausstattungsdetails und ausgesuchte Materialien prägen ein
stilvolles und zugleich behagliches Wohnambiente.
- bodentiefe Fenster mit Dreifach-Isolierverglasung
- elektrische Alu-Rollläden
- edle Eichendielenböden
- großformatiges Feinsteinzeug
- komfortable Fußbodenheizung mit Einzelraumsteuerung
- kontrollierte Wohnraumlüftung mit Wärmerückgewinnung
- Glasfaseranschluss
- nachhaltiger Fernwärmeanschluss
- Top-Sanitärausstattung mit bodengleichen Duschen
- Privatsphäre auf einer großzügigen Loggia
- moderne Videosprechanlage
- bequemer Lift je Hauseingang
- ebenerdiger Lagerraum
- großzügige Tiefgaragen-Einzelstellplätze, jeder Stellplatz optional mit Ladestation / Wallbox für E-Mobilität
u.v.m.

STEUERVORTEILE DANK SANIERUNGS-AFA!
Neben dem verbesserten Co2-Footprint profitieren Erwerber des
HERZOG LUDWIG von zusätzlichen Steuervorteilen im Rahmen der „Sanierungs-AfA“. Als Maßnahme innerhalb eines Sanierungsgebiets können Eigentümer die AfA für die Sanierungskosten nutzen – und zwar sowohl Selbstnutzer als auch Anleger! Die gesetzliche Grundlage dafür bilden § 7h und §7i bzw. §10f EstG: Eigentümer von Sanierungsgebäuden können in den ersten acht Jahren nach Erwerb bis zu neun Prozent und in den folgenden vier Jahren bis zu sieben Prozent, insgesamt also 100 % der Sanierungskosten absetzen.

Beschreibung

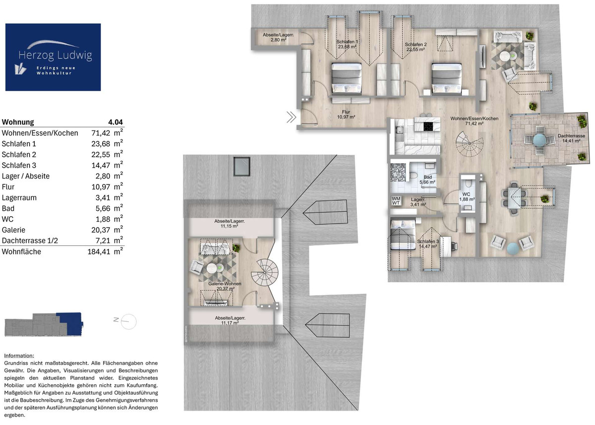
Darauf haben Sie gewartet: Eine stylishe, moderne Dachterrassenwohnung im Herzen von Erding, über den Dächern der Herzogstadt: Um dieses Galerie-Penthouse, groß wie ein Haus, im neuen "HERZOG LUDWIG"-Ensemble wird man den künftigen Eigentümer definitiv beneiden!
Die Dachterrassenwohnung im obersten Stockwerk bietet auf rund 162 Quadratmetern Wohnfläche modernsten Komfort, maximale Flexibilität und Privatsphäre und einen vielseitigen, durchdachten Grundriss.
Die Wohnung umfasst einen mit gut 60 Quadratmetern äußerst großzügigen Wohn- und Essbereich mit vorgelagerter Süd-Dachterrasse und großer Fensterfront, von der aus der Blick über die Dächer der Erdinger Innenstadt schweift, zwei außergewöhnlich großzügige Schlaf-/Kinder- oder Arbeitszimmer, einer davon als Master-Bedroom mit Ankleide, ein weiteres Arbeits- oder Gästezimmer, Bad, separates Gäste-WC, einen praktischen Vorratsraum/Speis inklusive Waschmaschinenanschluss sowie ein großzügiges Entrée.
Über dem Wohnbereich erstreckt sich eine luftige Galerie - über 5 Meter Raumhöhe sorgen hier für ein Wohngefühl der Extraklasse. Die Galerie bietet weitere 23m² Wohnfläche.
Der Lift hält bequem und schwellenfrei direkt vor dem Wohnungseingang.
Wer sich schon immer nach einer absolut zentral und dennoch ruhig gelegenen, äußerst großzügigen und geschmackvoll kernsanierten Wohnung gesehnt hat, der wird hier fündig!

Panoramablick inklusive – in den Dachgeschosswohnungen steht man über den Dingen und genießt neben viel Freiraum auf der privaten Dachterrasse einen herrlichen Ausblick über die Dächer der Erdinger Innenstadt. Hier finden Sie, was Sie suchen: Eine urbane Wohnlage und modernen Wohnkomfort mitten in der ebenso lebenswerten wie weltoffenen Stadt Erding. Im HERZOG LUDWIG fühlt man sich „dahoam“: Ob als Zweit- oder Stadtwohnung, zum Selbstbezug oder zur Vermietung, ob chices Apartment oder geräumiges Leben unterm Dach – hier heißt Sie jede Wohnung mit viel Charme, Leichtigkeit und Wohlfühl-Atmosphäre willkommen.

Energienachweis

Energieausweistyp: Bedarfsausweis
Gültigkeit: 15.03.2032
Endenergiebedarf: 52.1
Energieträger: Fernwärme
Ausstelldatum: 2022-03-16
Energieklasse: B
52.1 kWh/(m²*a)
Energieeffizienzklasse B
  • A+
  • A
  • B
  • C
  • D
  • E
  • F
  • G
  • H
  • 0
  • 25
  • 50
  • 75
  • 100
  • 125
  • 150
  • 175
  • 200
  • 225
  • > 250

Sonstiges

Jetzt Beratungstermin vereinbaren!

Öffnungszeiten unserer Info-Lounge in der Haager Straße 11, 85435 Erding:

Mittwoch 16:00 - 19:00 Uhr
Samstag 10:00 - 13:00 Uhr

Wir freuen uns auf Ihren Besuch!

Dieses Exposé soll in knapper Form die wesentlichen Daten des Objekts vermitteln - zu einer vernünftigen Beurteilung eines Objekts gehören freilich die Besichtigung und das Gespräch mit uns.
Zu beidem stehen wir gerne zur Verfügung. Die in diesem Exposé gemachten Angaben beruhen auf Angaben des Verkäufers. bzw. Dritten. Für etwaige Irrtümer kann keine Haftung übernommen werden.

Der Finanzierungsrechner für Ihren Wohnkredit

Mit unserem Finanzierungsrechner kannst du schnell und bequem eine Finanzierung für deine Immobilie berechnen.

Finanzierungsbeispiel

Eigenkapital: 279.600 €
Sollzinsbindung: 10 Jahre
Tilgungsrate: 1 %
Monatsrate

4.362 €

Dieses Wohnbeispiel ist Teil des Bauvorhabens
Herzog Ludwig - Erdings neue Wohnkultur

Herzog Ludwig - Erdings neue Wohnkultur - Wohnung

HERZOG LUDWIG: Grün & zentral: Wunderbare 2-Zimmer-Terrassenwohnung

Preis

539.900 €

Wohnfläche

71,19 m2

Zimmer

2 Zi.

Herzog Ludwig - Erdings neue Wohnkultur - Wohnung

HERZOG LUDWIG: Grün & zentral: Wunderbare 2-Zimmer-Terrassenwohnung

Preis

549.900 €

Wohnfläche

71,92 m2

Zimmer

2 Zi.

Herzog Ludwig - Erdings neue Wohnkultur - Wohnung

HERZOG LUDWIG: Ideal geschnittene 2-Zimmer-Citywohnung in bester Innenstadtlage

Preis

589.900 €

Wohnfläche

73,56 m2

Zimmer

2 Zi.

Herzog Ludwig - Erdings neue Wohnkultur - Wohnung

HERZOG LUDWIG: Großzügigkeit ist Trumpf: Ideal geschnittene 2-Zimmer-Wohnung mitten in der City

Preis

589.900 €

Wohnfläche

73,17 m2

Zimmer

2,5 Zi.

Herzog Ludwig - Erdings neue Wohnkultur - Wohnung

Großzügige 2,5-Zimmer-Wohnung im Herzen von Erding - Steuervorteile inklusive!

Preis

599.900 €

Wohnfläche

69,3 m2

Zimmer

2,5 Zi.

Herzog Ludwig - Erdings neue Wohnkultur - Wohnung

HERZOG LUDWIG: Großzügige 2,5-Zimmer-Citywohnung in bester Innenstadtlage

Preis

639.900 €

Wohnfläche

78,45 m2

Zimmer

3 Zi.

Herzog Ludwig - Erdings neue Wohnkultur - Wohnung

HERZOG LUDWIG: Perfekt geschnittene 3,5-Zimmer-Stadtwohnung mitten in Erding

Preis

789.900 €

Wohnfläche

93,4 m2

Zimmer

3,5 Zi.

Herzog Ludwig - Erdings neue Wohnkultur - Wohnung

HERZOG LUDWIG: Perfekt geschnittene 3,5-Zimmer-Stadtwohnung mitten in Erding

Preis

789.900 €

Wohnfläche

94,04 m2

Zimmer

3,5 Zi.

Herzog Ludwig - Erdings neue Wohnkultur - Wohnung

Absolut ruhig und dennoch mitten in der City: Großzügige 3-Zimmer-Wohnung

Preis

799.900 €

Wohnfläche

100,9 m2

Zimmer

3 Zi.

Herzog Ludwig - Erdings neue Wohnkultur - Wohnung

Großzügigkeit im Herzen der Stadt: XXL-3-Zimmer-Wohnung im Erdinger Zentrum

Preis

799.900 €

Wohnfläche

94,72 m2

Zimmer

3 Zi.

Exposé/Preisliste anfordern
Pflichtfelder *

Wir behandeln deine Daten vertraulich. Mit dem Absenden erklärst du dich mit der Verarbeitung deiner Anfrage gemäß unserer Datenschutzerklärung und AGB für Verbraucher:innen einverstanden.

Anbieter

Flemmer Immobilien

Bahnhofstr. 39c, 82402 Seeshaupt

Flemmer Immobilien