Dieses Wohnbeispiel ist Teil des Bauvorhabens H04 L|I|V|I|N|G - Hochkönigstraße 4

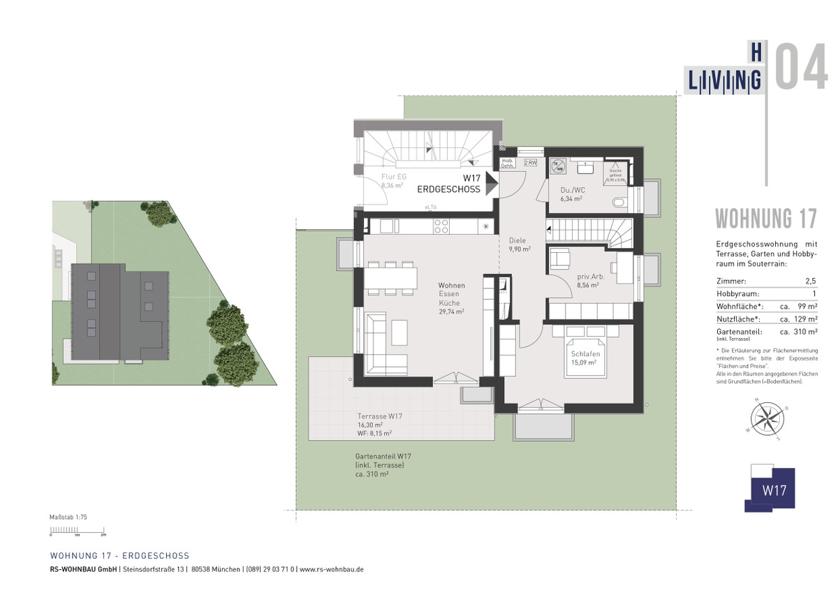
2,5-Zimmer-EG-Wohnung mit Hobbyraum im Souterrain, Terrasse und großem Garten in Trudering

  • Effizienzhaus 40 QNG
  • Energieeffizienzklasse A+
  • Provisionsfrei
  • Adresse
    Hochkönigstraße 4, 81825 München / Trudering
  • Preis
    1.149.000 €
  • Zimmeranzahl
    3,5
  • Badezimmer
    2
  • Wohnfläche
    99 m2
  • Balkon-Terrassen-Fläche
    16,3 m2
  • Gartenfläche
    310 m2
  • Nutzfläche
    129 m2
  • ID
    271623
  • Anbieter Objekt-ID
    22-176

Merkmale

  • Badewanne
  • Balkon
  • Befeuerung: Luftwärmepumpe
  • Fliesenboden
  • Fußbodenheizung
  • Garten bzw. Gartennutzung
  • Gehobene Ausstattung
  • KFW40
  • Parkettboden
  • Personenaufzug
  • Südwestbalkon/-terrasse

Lage

Auf der Karte anzeigen

Trudering besticht neben seiner naturverbundenen, idyllischen Atmosphäre auch durch seine ausgezeichnete Verkehrsanbindung. In ca. 20 Autominuten kann das Münchner Stadtzentrum erreicht werden. Ebenso sind alle Autobahnanschlüsse und wichtigen Ringstraßen gut zu erreichen. Dasselbe gilt für den öffentlichen Nahverkehr, über den der Bezirk mit U-Bahn und S-Bahn sowie mehreren Buslinien gut angebunden ist. Die nächste Bushaltestelle „Himalajastraße“ liegt gerade einmal 4 Gehminuten vom Objekt entfernt. Sämtliche Einkaufsmöglichkeiten stehen ebenfalls für den täglichen Bedarf in der Nähe zur Verfügung.

Auch für die Freizeitgestaltung wird hier einiges geboten: Bekannte Münchner Biergärten und zahlreiche weitere Restaurants laden in der näheren Umgebung zur Geselligkeit ein. Der Truderinger Wald und der Ostpark stehen für erholsame Spaziergänge, aktives Joggen, Erkundungs- wie Fahrradtouren und vielem mehr nach nur wenigen Minuten der Anreise zur Verfügung. Auch Schulen, Kindergärten und vielfältigste Vereine sind in der Umgebung ansässig.

Bei dieser Wohnlage wird eine äußerst seltene, aber ideale Kombination aus naturverbundenem Wohnen im Grünen mit hohem Freizeitwert und gleichzeitig zentraler und stadtnaher Lage erreicht.

Ausstattung

Energiesparende Effizienzhäuser 40 in bewährter RS-Wohnbau-Qualität

Um natürliche Ressourcen zu schonen und dem Projekt einen hohen Grad an Nachhaltigkeit zu verleihen, wird dieses mit modernster Wärmepumpentechnologie ausgestattet. Gleichzeitig wird seinen Bewohnern damit eine hohe Energieeffizienz (Energieeffizienzklasse A+) und in Folge auch ein hohes Maß an Wirtschaftlichkeit zur Verfügung gestellt. Für ein gesundes Wohnklima errichten wir das Projekt in massiver Ziegelbauweise mit darin integrierter Wärmedämmung.

Ganz im Sinne unserer Philosophie: Modern – Komfortabel – Nachhaltig – Wirtschaftlich – Zuverlässig

Objekthighlights:
• energiesparende und wirtschaftliche Effizienzhäuser 40 mit Energieeffizienzklasse A+
• hochwärmedämmende Massiv-Ziegelbauweise
• umweltschonende und modernste Wärmepumpentechnologie
• Fußbodenheizung mit Einzelraumsteuerung in allen Räumen
• Treppenlauf mit ausgewähltem Granitbelag und Edelstahlhandlauf
• hochbeständige und pflegeleichte Kunststofffenster mit hochwertiger Alu-Vorsatzschale, 3-fach Wärmeschutzverglasung und Sicherheitsfenstern im EG
• elektrische Rollläden an allen stehenden Fenstern
• hochwertige Elektroausstattung mit CAT7 Verkabelung
• Videosprechanlage
• elegante Porzellan-Serie und formschöne Armaturen von namhaften Herstellern für die Bäder
• komfortable, bodengleiche Duschen (sofern technisch realisierbar, gemäß Plan)
• elegante Bodenbeläge (z.B. Eichenparkett oder Parkett nach eigener Wahl* in allen Wohn- und Schlafräumen)
• exklusive großformatige Fliesen, frei wählbar*
• großzügige Tiefgarage mit komfortablen Multiparksystemen mit hohem Einstellkomfort und Vorbereitung von Ladeinfrastruktur für Elektro-Mobilität
• Sonderwünsche nach Absprache möglich

* im Rahmen der in der Baubeschreibung festgelegten Richtpreise pro m². Die vollständige Baubeschreibung erhalten Sie gerne auf Anfrage.

Beschreibung

Bis ins Detail sorgfältig geplant, entstehen auf einem sonnigen, großzügigen Grundstück in einem ruhigen und dennoch stadtnahen Wohngebiet drei moderne, hochwertige Wohnhäuser in solider Massivbauweise. Die Gebäude mit insgesamt 19 Wohneinheiten werden nach dem energiesparenden Standard „Effizienzhaus 40“ errichtet und sind dank modernster Haustechnik bestens für die Zukunft gerüstet.

Mit Wohnflächen von ca. 42 m² bis ca. 99 m² bieten die sehr gut geschnittenen 2- bis 3-Zimmer-Wohnungen individuelle Wohnmöglichkeiten für Singles, Paare und kleine Familien. Die durchdachte Raumaufteilung sowie die anspruchsvolle Ausstattung mit hochwertigen Materialien gewährleisten hierbei ein besonderes Wohlfühlambiente und höchsten Wohnkomfort. Eine großzügige Tiefgarage mit komfortablen Multiparksystemen bietet zudem ausreichend Stellplätze für alle Bewohner.

Handwerklich erstklassig ausgeführte Arbeiten garantieren Ihnen eine nachhaltige Wohnqualität und eine hohe Wertbeständigkeit der Immobilie. Diese Ziele erreicht die RS-Wohnbau GmbH traditionell über die Jahrzehnte währenden Beziehungen mit Handwerksbetrieben und Lieferanten aus der Region.

Für Kapitalanleger hervorzuheben: Sie profitieren aktuell bei diesem Projekt nicht nur von der attraktiven Lage und dem modernen Wohnkonzept, sondern auch von zahlreichen finanziellen Vorteilen. Dank des KfW-Förderprogramms „Klimafreundlicher Neubau“ erhalten Sie aktuell besonders zinsgünstige Kredite. Darüber hinaus bieten die neu von der Regierung geschaffenen Steuervorteile bei Immobilien-Investments, wie die degressive Abschreibung (AfA), attraktive Möglichkeiten zur Steueroptimierung. Dies macht den Erwerb einer Neubau-Kapitalanlage noch attraktiver und rentabler.

Sonstiges

Provisionsfrei
Baujahr: 2026

Die RS-Wohnbau GmbH weiß seit 1986, worauf es ankommt und gehört zu den erfolgreichsten Bauträgergesellschaften der Landeshauptstadt. Ein Team von kreativen Architekten, erfahrenen Bauingenieuren und kompetenten Immobilienkaufleuten bietet Ihnen eine sachkundige und vor allem auch eine ausführliche Beratung von Beginn an.

In den letzten Jahren haben wir über 700 Häuser im Stadtgebiet München gebaut und damit mehr als 6.000 Wohnungen errichtet. Gerne zeigen wir Ihnen bereits fertiggestellte Projekte, damit Sie sich selbst einen Eindruck von unserer Qualität und der Bauausführung machen können.

Der Finanzierungsrechner für Ihren Wohnkredit

Mit unserem Finanzierungsrechner kannst du schnell und bequem eine Finanzierung für deine Immobilie berechnen.

Finanzierungsbeispiel

Eigenkapital: 229.800 €
Sollzinsbindung: 10 Jahre
Tilgungsrate: 1 %
Monatsrate

3.585 €

Dieses Wohnbeispiel ist Teil des Bauvorhabens
H04 L|I|V|I|N|G - Hochkönigstraße 4

Exposé/Preisliste anfordern
Pflichtfelder *

Wir behandeln deine Daten vertraulich. Mit dem Absenden erklärst du dich mit der Verarbeitung deiner Anfrage gemäß unserer Datenschutzerklärung und AGB für Verbraucher:innen einverstanden.