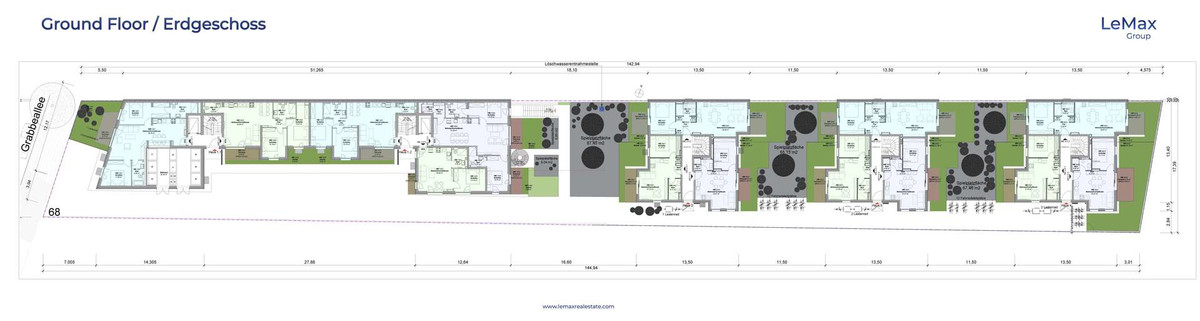
Dieses Wohnbeispiel ist Teil des Bauvorhabens GRABBE 68

Rarität mit 2 Gärten und 2 Terrassen in Ost- und Süd-West-Ausrichtung in ruhiger Lage

  • Effizienzhaus 55
  • Energieeffizienzklasse A
  • Adresse
    Grabbeallee 68, 13156 Berlin / Niederschönhausen
  • Wohntyp
    Erdgeschosswohnung
  • Preis
    408.100 €
  • Zimmeranzahl
    2
  • Badezimmer
    1
  • Schlafzimmer
    1
  • Wohnfläche
    59,58 m2
  • Balkon-Terrassen-Fläche
    6,4 m2
  • Gartenfläche
    22,85 m2
  • Bezugsfertig ab
    Voraussichtlich: Q1 / 2027
  • ID
    286985
  • Anbieter Objekt-ID
    WE-Nr. 4.0.2 // 50

Merkmale

  • Balkon
  • Befeuerung: Elektro
  • Dusche
  • Fliesenboden
  • Garten bzw. Gartennutzung
  • Gehobene Ausstattung
  • Parkettboden

Lage

Auf der Karte anzeigen

Das Bauprojekt in der Grabbeallee 68 befindet sich in begehrten Lage im Berliner Stadtteil Niederschönhausen. Diese Gegend zeichnet sich durch ihre angenehme Mischung aus grüner Umgebung, guter Infrastruktur und urbanem Komfort aus.

Verkehrsanbindung: Die Anbindung an den öffentlichen Nahverkehr ist ausgezeichnet. Die nächsten S-Bahn-Stationen und Bushaltestellen sind in kurzer Entfernung erreichbar, was eine schnelle Verbindung ins Stadtzentrum und zu anderen Stadtteilen Berlins ermöglicht.

Grünflächen und Natur: Niederschönhausen ist bekannt für seine zahlreichen Parks und Grünanlagen, wie den Schlosspark Niederschönhausen, die zu Spaziergängen, Jogging oder Erholung im Freien einladen.

Einkaufsmöglichkeiten: Supermärkte, Bäckereien und Wochenmärkte sind bequem zu Fuß oder mit dem Fahrrad erreichbar, was den Alltag angenehm gestaltet.

Bildung und Kultur: In der Nähe befinden sich Schulen, Kindergärten sowie kulturelle Einrichtungen, die das Viertel lebendig und familienfreundlich machen.

Lebendige Nachbarschaft: Niederschönhausen (Pankow) bietet eine ruhige, aber dennoch lebendige Atmosphäre mit einer guten Mischung aus Einfamilienhäusern, Villen und gepflegten Wohnanlagen. Die Nachbarschaft ist geprägt von einer freundlichen Gemeinschaft und einer angenehmen Lebensqualität.

Diese Lage verbindet die Vorteile eines ruhigen, grünen Wohnumfelds mit der Nähe zu den Annehmlichkeiten des Stadtlebens. Ideal für Familien, Berufstätige und alle, die das entspannte Wohnen in Berlin mit guter Erreichbarkeit schätzen.

Ausstattung

• Großzügiger Wohn-/Koch- und Essbereich mit ca. 29 m²
• Schlafzimmer mit ca. 14 m²
• Stilvolles Bad mit ca. 4 m²
• Terrasse mit ca. 6 m²
• Garten mit 23 m²
• Hochwertige Echtholzböden mit Fußbodenheizung
• Lichte Raumhöhen
• Videosprechanlage
• 2 Fahrradstellplätze
• Außenliegender Sonnenschutz für optimales Raumklima
• Attraktive steuerliche Abschreibungsmöglichkeiten

Beschreibung

Willkommen in dieser modernen und komfortablen 2-Zimmer-Garten-Wohnung, die durch ihre durchdachte Raumaufteilung und hochwertige Ausstattung besticht. Die Wohnung verfügt über eine offene Wohnküche, die zum geselligen Beisammensein einlädt und viel Platz für Familie und Freunde bietet.

Der großzügige Wohnbereich ist lichtdurchflutet und schafft eine angenehme Atmosphäre zum Entspannen. Ein Schlafzimmer bietet ausreichend Raum für Ruhe und Privatsphäre.

Die Wohnung verfügt über ein modernes Badezimmer, welches mit zeitgemäßer Ausstattung versehen ist und für Komfort sorgt.

Eine besondere Attraktion sind die zwei Terrassen mit pflegeleichtem Garten, die zum Verweilen im Freien einladen – perfekt für gemütliche Abende oder ein Frühstück im Sonnenschein.
Diese Wohnung verbindet modernes Wohnen mit praktischem Komfort und ist ideal für alle, die eine stilvolle und funktionale Heimat suchen.

Kontaktieren Sie uns noch heute, um mehr über die verfügbaren Wohnungen zu erfahren und Ihren persönlichen Besichtigungstermin zu vereinbaren. Ihr neues Zuhause wartet auf Sie!

Energienachweis

Energieträger: Strom

Der Finanzierungsrechner für Ihren Wohnkredit

Mit unserem Finanzierungsrechner kannst du schnell und bequem eine Finanzierung für deine Immobilie berechnen.

Finanzierungsbeispiel

Eigenkapital: 81.620 €
Sollzinsbindung: 10 Jahre
Tilgungsrate: 1 %
Monatsrate

1.258 €

Dieses Wohnbeispiel ist Teil des Bauvorhabens
GRABBE 68

GRABBE 68 - Wohnung

Exklusive lichtdurchflutete Wohnung in ruhiger Lage mit Süd-Ost-Terrasse und Bad en Suite

Preis

242.300 €

Wohnfläche

34,61 m2

Zimmer

2 Zi.

GRABBE 68 - Wohnung

Exklusive Süd-West-Ausgerichtete Terrassenwohnung in ruhiger Lage

Preis

244.200 €

Wohnfläche

35,29 m2

Zimmer

2 Zi.

GRABBE 68 - Wohnung

Lichtdurchflutete Wohnung mit Süd-West-Terrasse in ruhiger Lage

Preis

244.200 €

Wohnfläche

35,29 m2

Zimmer

2 Zi.

GRABBE 68 - Wohnung

Exklusive Terrassenwohnung im Garten Haus mit Süd-Westausrichtung!

Preis

244.400 €

Wohnfläche

35,32 m2

Zimmer

2 Zi.

GRABBE 68 - Wohnung

Großzügiger Schnitt - lichtdurchflutet - mit Süd-Ost Balkon in ruhiger Lage

Preis

257.900 €

Wohnfläche

37,54 m2

Zimmer

2 Zi.

GRABBE 68 - Wohnung

Exklusive Terrassenwohnung in Süd-Ost Ausrichtung und Bad en Suite in ruhiger Lage

Preis

262.800 €

Wohnfläche

37,54 m2

Zimmer

2 Zi.

GRABBE 68 - Wohnung

Lichtdurchflutet dank Süd-Ost-Ausrichtung und Süd-West-Terrasse

Preis

264.100 €

Wohnfläche

37,36 m2

Zimmer

2 Zi.

GRABBE 68 - Wohnung

Lichtdurchflutete Wohnung mit Terrasse und Süd-Ost-Ausrichtung in ruhiger Lage

Preis

266.600 €

Wohnfläche

38,52 m2

Zimmer

2 Zi.

GRABBE 68 - Wohnung

Lichtdurchflutete Terrassenwohnung mit Süd-Ost-Ausrichtung in ruhiger Lage

Preis

268.400 €

Wohnfläche

38,51 m2

Zimmer

2 Zi.

GRABBE 68 - Wohnung

Attraktive Terrassenwohnung mit Süd-Ost-Ausrichtung in ruhiger Lage!

Preis

268.400 €

Wohnfläche

38,52 m2

Zimmer

2 Zi.

GRABBE 68 - Wohnung

Exklusive Gartenwohnung in ruhiger Lage mit Süd-West-Ausrichtung großer Terrasse

Preis

283.200 €

Wohnfläche

41,22 m2

Zimmer

2 Zi.

GRABBE 68 - Wohnung

Exklusive Gartenwohnung mit Süd-West-Ausrichtung und üppiger Terrasse

Preis

285.400 €

Wohnfläche

40,95 m2

Zimmer

2 Zi.

GRABBE 68 - Wohnung

Exklusive Gartenwohnung mit Terrasse in Süd-West-Ausrichtung in ruhiger Lage

Preis

286.700 €

Wohnfläche

40,95 m2

Zimmer

2 Zi.

GRABBE 68 - Wohnung

Exklusive Terrassenwohnung mit Süd-West-Ausrichtung in ruhiger Lage

Preis

299.800 €

Wohnfläche

44,09 m2

Zimmer

2 Zi.

GRABBE 68 - Wohnung

Exklusive Gartenwohnung in ruhiger Lage mit Süd,- Ost-Ausrichtung und großer Terrasse

Preis

301.700 €

Wohnfläche

43,6 m2

Zimmer

2 Zi.

GRABBE 68 - Wohnung

Exklusive Wohnung mit Süd-Ost Ausrichtung und Süd-West Terrasse in ruhiger Lage

Preis

304.400 €

Wohnfläche

42,46 m2

Zimmer

2 Zi.

GRABBE 68 - Wohnung

Exklusive Wohnung mit Süd Ausrichtung, Garten und Terrasse mit Ostausrichtung in ruhiger Lage

Preis

304.900 €

Wohnfläche

43,55 m2

Zimmer

2 Zi.

GRABBE 68 - Wohnung

Lichtdurchflutet und in ruhiger Lage mit Süd-Ost-Ausrichtung und Süd-West-Terrsasse

Preis

312.500 €

Wohnfläche

44,51 m2

Zimmer

2 Zi.

GRABBE 68 - Wohnung

Stilvoll und Lichtdurchflutet mit Süd-Ost-Ausrichtung und Süd-West-Terrasse

Preis

313.800 €

Wohnfläche

44,51 m2

Zimmer

2 Zi.

GRABBE 68 - Wohnung

Lichtdurchflutete Gartenwohnung mit Terrasse in Süd-Ost-Ausrichtung in ruhiger Lage

Preis

323.900 €

Wohnfläche

45,18 m2

Zimmer

2 Zi.

GRABBE 68 - Wohnung

Exklusives Penthouse mit 2 Terrassen Ost und Süd-West-Ausrichtung in ruhiger Lage

Preis

348.000 €

Wohnfläche

49,01 m2

Zimmer

2 Zi.

GRABBE 68 - Wohnung

Exklusives Penthouse mit 2 Terrassen in Ost- und Süd-West-Ausrichtung in ruhiger Lage

Preis

348.000 €

Wohnfläche

49,01 m2

Zimmer

2 Zi.

GRABBE 68 - Wohnung

Exklusives Penthouse mit 2 Terrassen Süd-West und Ost-Ausrichtung in ruhiger Lage

Preis

352.900 €

Wohnfläche

49,14 m2

Zimmer

2 Zi.

GRABBE 68 - Wohnung

Traum Penthouse mit 180 Grad Süd-Ost-West Panoramablick und begehbarem Kleiderschrank, ruhige Lage

Preis

394.500 €

Wohnfläche

55,57 m2

Zimmer

2 Zi.

GRABBE 68 - Wohnung

Exklusives Penthouse mit umlaufender Ost-Süd-West-Terrasse, ruhige Lage, begehbarer Kleiderschrank

Preis

394.800 €

Wohnfläche

55,6 m2

Zimmer

2 Zi.

GRABBE 68 - Wohnung

Exklusives Penthouse mit 180 Grad West-Ost-Süd Terrasse+Panorama Blick und begehbarem Kleiderschran

Preis

400.100 €

Wohnfläche

55,57 m2

Zimmer

2 Zi.

GRABBE 68 - Wohnung

Exklusive Wohnung mit 2 Gärten und 2 Terrassen mit Süd-West sowie Ost-Ausrichtung in ruhiger Lage

Preis

403.300 €

Wohnfläche

59,75 m2

Zimmer

2 Zi.

GRABBE 68 - Wohnung

Exklusive Wohnung mit 2 Terrassen und 2 Gärten in Ost- und Süd-West-Ausrichtung in ruhiger Lage

Preis

406.300 €

Wohnfläche

59,85 m2

Zimmer

2 Zi.

GRABBE 68 - Wohnung

Exklusive Terrassenwohnung in ruhiger Lage mit Ost-Ausrichtung

Preis

434.700 €

Wohnfläche

63 m2

Zimmer

2 Zi.

GRABBE 68 - Wohnung

Exklusives Penthouse in ruhiger Lage mit Südausrichtung und Terrasse

Preis

465.800 €

Wohnfläche

61,94 m2

Zimmer

2 Zi.

GRABBE 68 - Wohnung

Exklusives Penthouse in ruhiger Lage mit Süd-Ost-Ausrichtung und sonniger Terrasse!

Preis

468.200 €

Wohnfläche

62,26 m2

Zimmer

2 Zi.

GRABBE 68 - Wohnung

Hochwertige Wohnung mit Terrasse in Ost-Ausrichtung!

Preis

389.000 €

Wohnfläche

55,8 m2

Zimmer

3 Zi.

GRABBE 68 - Wohnung

WG Traum! Exklusive Terrassenwohnung in ruhiger Lage mit West-Ost-Ausrichtung

Preis

389.500 €

Wohnfläche

55,09 m2

Zimmer

3 Zi.

GRABBE 68 - Wohnung

Stilvolle Terrassenwohnung in ruhiger Lage mit Südausrichtung

Preis

479.600 €

Wohnfläche

72,67 m2

Zimmer

3 Zi.

GRABBE 68 - Wohnung

Lichtdurchflutete Terrassenwohnung mit Südausrichtung und Garten

Preis

480.800 €

Wohnfläche

72,85 m2

Zimmer

3 Zi.

GRABBE 68 - Wohnung

Moderner Schnitt, Lichtdurchflutet, Südausrichtung in ruhiger Lage mit Süd-West-Terrasse

Preis

495.500 €

Wohnfläche

72,13 m2

Zimmer

3 Zi.

GRABBE 68 - Wohnung

Großzügiger Schnitt, Lichtdurchflutet mit Süd-Terrasse in ruhiger Lage

Preis

495.600 €

Wohnfläche

72,03 m2

Zimmer

3 Zi.

GRABBE 68 - Wohnung

Stillvolle Wohnung mit Balkon in Südausrichtung in ruhiger Lage

Preis

496.200 €

Wohnfläche

72,22 m2

Zimmer

3 Zi.

GRABBE 68 - Wohnung

Lichtdurchflutete Terrassen-Wohnung mit Südausrichtung in ruhiger Lage

Preis

496.200 €

Wohnfläche

72,22 m2

Zimmer

3 Zi.

GRABBE 68 - Wohnung

Elegant - Großzügig geschnitten - mit Süd-Balkon in ruhiger Lage

Preis

496.200 €

Wohnfläche

72,03 m2

Zimmer

3 Zi.

GRABBE 68 - Wohnung

Exklusive Terrassenwohnung in ruhiger Lage und Südausrichtung

Preis

496.900 €

Wohnfläche

72,23 m2

Zimmer

3 Zi.

GRABBE 68 - Wohnung

Stilvolle Balkonwohnung mit sonniger Südausrichtung in ruhiger Lage

Preis

503.900 €

Wohnfläche

71,53 m2

Zimmer

3 Zi.

GRABBE 68 - Wohnung

Lichtdurchflutete Terrassenwohnung mit Südausrichtung in ruhiger Lage

Preis

505.800 €

Wohnfläche

72,25 m2

Zimmer

3 Zi.

GRABBE 68 - Wohnung

Stilvolle Balkonwohnung mit Westausrichtung, Bad en Suite und begehbarem Kleiderschrank

Preis

505.900 €

Wohnfläche

73,85 m2

Zimmer

3 Zi.

GRABBE 68 - Wohnung

Exklusives Penthouse mit Süd-West-Ausrichtung und üppiger West-Terrasse

Preis

527.200 €

Wohnfläche

70,11 m2

Zimmer

3 Zi.

GRABBE 68 - Wohnung

Hochwertige Drei-Zimmer-Wohnung mit West-Balkon

Preis

538.700 €

Wohnfläche

78,41 m2

Zimmer

3 Zi.

GRABBE 68 - Wohnung

Großzügiger Schnitt, Westausrichtung und 1 Bad en Suite sowie West-Balkon

Preis

542.600 €

Wohnfläche

78,41 m2

Zimmer

3 Zi.

GRABBE 68 - Wohnung

Exklusive Gartenwohnung mit idyllischer Westausrichtung

Preis

545.600 €

Wohnfläche

80,24 m2

Zimmer

3 Zi.

GRABBE 68 - Wohnung

WG Traum mit Terrasse in ruhiger Lage mit Ost-Ausrichtung und Bädern en Suite

Preis

555.300 €

Wohnfläche

81,07 m2

Zimmer

3 Zi.

GRABBE 68 - Wohnung

Exklusive Wohnung mit 2 Bädern en Suite und großzügiger Ost-Terrasse in ruhiger Lage

Preis

559.400 €

Wohnfläche

81,07 m2

Zimmer

3 Zi.

GRABBE 68 - Wohnung

Gehobene Terrassenwohnung in ruhiger Lage mit Süd-Ost-Ausrichtung

Preis

560.700 €

Wohnfläche

81,86 m2

Zimmer

3 Zi.

GRABBE 68 - Wohnung

Hochwertige Garten Wohnung mit zwei Terrassen in Ost-Ausrichtung!

Preis

565.700 €

Wohnfläche

83,8 m2

Zimmer

3 Zi.

GRABBE 68 - Wohnung

WG Traum! Exklusive Penthouse in ruhiger Lage mit üppiger Terrasse in Ost-Ausrichtung

Preis

615.700 €

Wohnfläche

81,87 m2

Zimmer

3 Zi.

GRABBE 68 - Wohnung

Ansprechende Wohnung mit Ost-Terrasse in ruhiger Lage

Preis

389.000 €

Wohnfläche

55,02 m2

Zimmer

3 Zi.

Exposé/Preisliste anfordern
Pflichtfelder *

Wir behandeln deine Daten vertraulich. Mit dem Absenden erklärst du dich mit der Verarbeitung deiner Anfrage gemäß unserer Datenschutzerklärung und AGB für Verbraucher:innen einverstanden.

Anbieter

ImmoNOW Schoenwälder

Kurfürstendamm 194, 10707 Berlin

ImmoNOW Schoenwälder