Dieses Bauvorhaben ist abverkauft.
Projektbeschreibung
Viel Natur für die ganze Familie
Highlights im Überblick
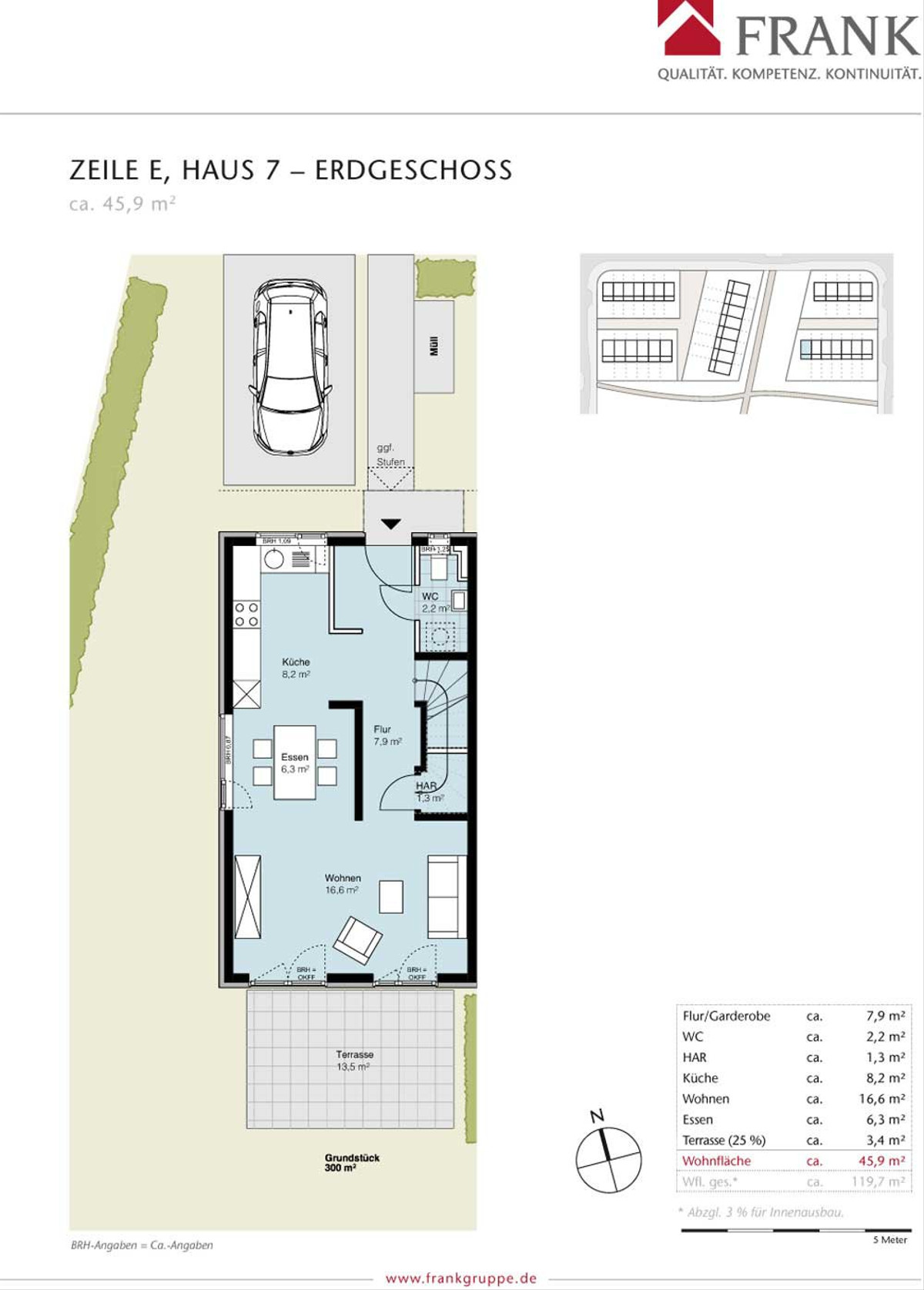
- Etwa 113-157 m²
- Kaufpreise ab 340.000 Euro (provisionsfrei)
- KfW-Effizienzhaus 70 (EnEV 2014)
- Markensanitärausstattung
- Kontrollierte Wohnraumlüftung
- Topografisch individuelle Gartengestaltung
- Kfz-Stellplatz im Kaufpreis enthalten
- Fußbodenheizung
- Holztreppen
- Vollholz-Stäbchenparkett
- Schlüsselfertig inkl. Bodenbeläge und Malerarbeiten
- Teilweise mit Dachterrassen
- Gute Anbindung an den ÖPNV
- Versorgung durch Nahwärme (Grundlast-Blockheizkraftwerk und Spitzenlast-Brennwertkessel)
- Quartierstromnutzung (optional)
- Unabhängig von großen Energieversorgern
- Ausbaureserve 42 bzw. 43 m² optional
Der ökologische Fußabdruck
Jedes Reihenhaus von FRANK im Erlenhof wird gemäß der aktuellen Energieeinsparverordnung (EnEV 2014) im KfW-Energieeffizienzhausstandard 70 gebaut. Das berechtigt Sie zur Beantragung von Fördermitteln der KfW in Form von zinsgünstigen Darlehen und Zuschüssen.
Der Heizungsanlage kommt bei der Vermeidung von CO2-Emissionen eine besondere Bedeutung zu. Alle Häuser sind über ein gemeinschaftliches Nahwärmenetz, das unterirdisch verlegt ist, mit einer gemeinsamen Heizzentrale verbunden. Die Heizzentrale ist platzsparend in einem kleinen Heizhaus im gemeinschaftlichen Außenbereich untergebracht. Die Wärmeerzeugungsanlage in der Heizzentrale besteht aus einem Grundlast-Blockheizkraftwerk (BHKW) und einem Spitzenlast-Brennwertkessel. Diese werden mit Erdgas betrieben und erzeugen sicher und zuverlässig Wärme für Heizung und Warmwasserbereitung. Neben Wärme erzeugt das BHKW auch Strom (Quartiersstrom), der optional in die Reihenhäuser geliefert werden kann. Das Prinzip der sogenannten Kraft-Wärme-Kopplung ist hocheffizient, da Wärme und Strom nahezu verlustfrei in den Häusern zu Verfügung gestellt werden.
Nicht nur verringert eine dezentrale Energieversorgung Ihren ökologischen Fußabdruck und die Abhängigkeit von großen Energiekonzernen, eine Kilowattstunde des Quartierstroms liegt auch unter den Tarifen des örtlichen Grundversorgers.
Die Wärmeerzeugungsanlage und die Anlagentechnik gehören dem gewerblichen Wärmelieferanten (Contractor) FRANK ECOenergy, der die Anlage betreibt. Mit dem Kauf eines Hauses treten Sie in einen Wärmeliefervertrag für einen Zeitraum von 20 Jahren zu günstigen Konditionen ein. Der Contractor ist selbstverständlich für alle Abrechnungen verantwortlich.
Über die Frank-Gruppe
Unser Vertriebspartner Plus Immobilien setzt sich gern mit Ihnen zusammen:
PLUS Immobilien GmbH
Andreas Newiger
Fuhlsbüttler Straße 216
22307 Hamburg
T (0 40) 6 11 88 65-15
Rechtlicher Hinweis: Die Informationen zum Bauvorhaben sind ein redaktioneller Beitrag der neubau kompass AG. Er dient ausschließlich Informationszwecken und stellt kein Angebot im rechtlichen Sinne dar. Die angebotenen Inhalte werden von der neubau kompass AG nach § 2 TMG veröffentlicht und kontrolliert. Informationen zu einer etwaigen Provisionspflicht sind beim Anbieter zu erfragen. Alle Angaben, insbesondere zu Preisen, Wohnflächen, Ausstattung und Bezugsfertigkeit sind ohne Gewähr. Irrtum vorbehalten.
