Dieses Bauvorhaben ist abverkauft.

Grundstücksgesellschaft Manke GmbH & Co KG

Fish³³

Neubau von Reihenhäusern

Projektdetails

  • Im Fischbeker Heidbrook, 21149 Hamburg / Neugraben-Fischbek
  • Reihenhaus, Haus
  • 31
  • Standard
  • 17373

Lage

Auf der Karte anzeigen

Projektbeschreibung

Bilder Neubauprojekt Fish33 Bilder Neubauprojekt Fish33

Fish³³ - Das Projekt

Die Dachterrassenhäuser

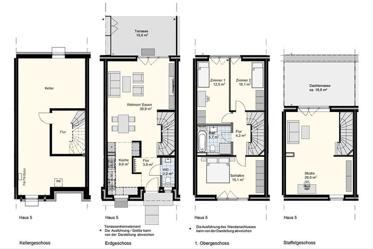
werden auf drei zentral gelegenen Baufeldern, die an der Straße Im Fischbeker Heidbrook liegen, errichtet und bilden durch die architektonische Idee der Vielfalt eine großformatige Einheit. Ein besonderes Detail sind die eingezogenen Eingangsbereiche und die praktischen Terrassentrennelemente, die zusätzlich als Staufläche verwendet werden können. Eine klare, moderne Formensprache mit markanten Gebäudeteilen, hebt den besonderen Charakter dieser erstklassigen Gebäude besonders hervor. Alle Häuser erhalten Dachterrassen, die zusätzlich zu den Gartenterrassen private Rückzugsorte bieten. Hier können Sie herrlich wohnen, die Seele baumeln lassen und auf den Terrassen oder Sonnendachterrassen Ihr Leben genießen.

Die verschieden Grundrissvarianten bieten viel Raum für die Ideenvielfalt der zukünftigen Bewohner. So zeigt sich im Erdgeschoss zum einen die klassische Aufteilung - aber auch eine Variation mit einem großen Flur, der direkt in den Wohn- & Essbereich führt. Die zum Wohnzimmer offene Küche unterstreicht den modernen Lifestyle dieser Wohnkultur.

Die hochqualitativen Stadthäuser wurden in Zusammenarbeit mit dem Architekturbüro Winking-Froh Architekten GmbH geplant und erhalten eine vielseitige, zeitlos elegante Architektur. Hier stehen urbanes Leben und Nachhaltigkeit im Einklang. Neben dem zukunftsorientierten Energiekonzept bieten wir Ihnen eine vielfältige Möglichkeit an Ausstattungsvarianten, die Sie in unserem Manke-Showroom auswählen können.

Bilder Neubauprojekt Fish33

Zuhause sicher!

Das eigene Zuhause soll im Idealfall der sicherste Ort der Welt sein. Daher finden Sie bei uns:

  • Fensterprofile mit einer Außenwanddicke von 3,0 mm, also der höchsten europäischen Qualitätsstufe "Klasse A"
  • die Fensterbeschläge sind nach RC2 enthalten
  • alle Fenstergriffe erhalten Druckknopfverriegelungen
  • alle Terrassenfenster-/Türelemente, Giebel-, Küchen- und WC-Fenster erhalten innen & außen eine vollständige ESG-/VSG-Verglasung
  • KfW-Effizienzhaus-Standard 40
  • Verblendsteinmauerwerk-Fassade
  • die Häuser werden „Stein auf Stein“ errichtet
  • zwei Vollgeschosse, Staffelgeschosse mit Dachterrassen
  • 5-Zimmer
  • 3-fach-Verglasung
  • separater Stellplatz pro Haus
  • teilweise mit Vollkeller
  • Fernwärme
  • Fußbodenheizung in allen Wohngeschossen
  • Zertifikat mit dem DEKRA Siegel für Immobilienqualität
  • Auswahl aus verschiedenen Sanitärprogrammen und Fliesendesigns
  • Bushaltestelle der Line 240 liegt vor den Häusern
Bilder Neubauprojekt Fish33

Fish³³ - Die Umgebung

Fischbeker Heidbrook ist im Aufwind.

Ein Stadtteil blüht auf - auch unter jüngeren Menschen ist Neugraben-Fischbek im Süd-Westen Hamburgs sehr beliebt. Besonders die Lage und die Freizeitmöglichkeiten werden als Pluspunkte für diese neue Trendlage gewertet. Das Naturschutzgebiet Fischbeker Heide, mit einer 773 Hektar großen Fläche, grenzt mit atemberaubender Flora und Fauna an diesen naturverbundenen Stadtteil. Bei Wanderungen durch das weite Gebiet sind Berge und Täler wie im Mittelgebirge anzutreffen - und das nur 36 Kilometer vom Hamburger Hauptbahnhof entfernt. Die Innenstadt ist bestens über den S-Bahn- Anschluss und das sehr gut ausgebaute Straßennetz zu erreichen. Seinen Namen hat dieser idyllische Ort von einem kleinen Bach mit reichem Fischbestand - dem Fischbek. Daher stammt auch der Projektname Fish33.

Straßenübergreifend wurde ein reizvolles Umfeld zum Wohnen, Arbeiten und Erleben konzipiert. So entstand ein urbaner Mix, der lebendige Vielfalt mit viel Charme und Flair bietet. In diesem grünen Stadtteil darf natürlich eine Nahversorgung der besonderen Art nicht fehlen, so ist hier ein REWE Green Building entstanden, das sich durch seine energieeffiziente Technologie und regenerative Energieproduktion auszeichnet. Kundenservice wird hier groß geschrieben. Dies beginnt bei großzügigen Öffnungszeiten und endet bei vielen extrabreiten Stellplätzen. Weitere kleinteilige Gewerbeeinheiten runden das Angebot ab, so bietet sich den zukünftigen Bewohnern eine Vielfalt an Einkaufsmöglichkeiten. Zudem werden für die Kleinsten in diesem schönen Baugebiet zwei Kitas mit insgesamt 180 Plätzen angelegt.

Rechtlicher Hinweis: Die Informationen zum Bauvorhaben sind ein redaktioneller Beitrag der neubau kompass AG. Er dient ausschließlich Informationszwecken und stellt kein Angebot im rechtlichen Sinne dar. Die angebotenen Inhalte werden von der neubau kompass AG nach § 2 TMG veröffentlicht und kontrolliert. Informationen zu einer etwaigen Provisionspflicht sind beim Anbieter zu erfragen. Alle Angaben, insbesondere zu Preisen, Wohnflächen, Ausstattung und Bezugsfertigkeit sind ohne Gewähr. Irrtum vorbehalten.

Anbieter

Grundstücksgesellschaft Manke GmbH & Co KG

Bahnhofstraße 4, 24558 Henstedt-Ulzburg

Grundstücksgesellschaft Manke GmbH & Co KG