Dieses Bauvorhaben ist abverkauft.
Projektdetails
-
AdresseFinkenweg 6, 70771 Leinfelden-Echterdingen
-
WohntypEigentumswohnung, Maisonettewohnung
-
Einheiten6
-
KategorieGehoben
-
Projekt-ID24941
Merkmale
- Aufzug
- Balkon
- Elektrische Rollläden
- Fenster 3-fach verglast
- Fußbodenheizung
- Kellerraum
- Luft-Wasser-Wärmepumpe
- Offene Küche
- PKW-Stellplätze
- Solaranlage
- Tiefgarage
Lage
Weitere Infos
Kaufpreis zzgl. Stellplatz
- 1 Freiplatz à 14.000 €
- 1 Tiefgaragenstellplatz à 22.000 €
- 1 Tiefgaragenstellplatz inkl. Fahrradabstellraum à 24.000 €
Provision 1,79 % des Kaufpreises inkl. der aktuell gültigen MwSt. von derzeit 19%.
Projektbeschreibung
NEUBAU l KfW55 l LEINFELDEN
Direkt am westlichen Ortsrand von Leinfelden, im Finkenweg, entsteht ein Mehrfamilienhaus mit insgesamt 6 Eigentumswohnungen: zwei Maisonettewohnungen im Dachgeschoss, zwei Wohnungen im Obergeschoss sowie zwei Erdgeschosswohnungen mit eigenem Gartenanteil (Sondernutzungsrecht). Davon sind drei Einheiten bereits verkauft. Das Objekt ist bereits fertiggestellt und die Wohnungen sind sofort bezugsbereit.
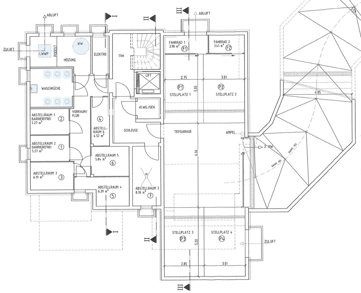
Abgerundet wird dieses Objekt mit dem zugehörigen großen Kellerraum mit viel Abstellfläche, einer Waschküche (komfortabel über den Fahrstuhl erreichbar) sowie mit einem überdurchschnittlich großen Tiefgaragen- oder Außenstellplatz, der zusätzlich erworben werden kann.
Virtuelle 360°-Rundgänge
Ausstattung
Auf einen Blick
- Schlüsselfertiger Neubau
- Fertiggestellter Neubau – ab sofort bezugsbereit
- Zentrale Lage, fußläufig zur Nahversorgung
- Nähe zum Naturpark Siebenmühlental
- Moderne & hochwertige Ausstattung
- Balkone mit Süd-Ausrichtung
- Energieeffiziente Bauweise nach KfW 55
- Aufzug in alle Geschosse
- Großzügige Zimmeraufteilung, offener Küchenbereich
- Fahrradabstellfläche im Zugangsbereich der Immobilie
- Kinderwagenraum im Untergeschoss
- Gemeinschaftliche Waschküche
- Tiefgaragen- oder Außenstellplatz zusätzlich erwerbbar
- Kellerraum, TG-Stellplatz und Waschküche barrierefrei über Aufzug erreichbar
- Kunststofffenster, 3-fach-Wärmeschutzverglasung in den Wohngeschossen,
- Elektrisch betriebene Kunststoffrollläden an allen Wohnungsfenstern
- Wohnungseingangstür aus Holz mit Stahlzarge, Türspion und Mehrfachverriegelung, Schalldämmung nach DIN, Zylinderschloss mit Schließanlage
- Fußbodenheizung mit Einzelraumthermostaten in den Wohnräumen
- Viessmann Luft-Wasser-Wärmepumpe Vitocal 350-A 18,5 l
- Solarthermieanlage Viessmann Vitosol 200 / Flachkollektoren
Erstmalige Anschlussgebühren und Beiträge für Wasser, Strom, Abwasser sind im Kaufpreis enthalten. Die komplette Durchführung vom Kaufvertrag bis hin zur schlüsselfertigen Übergabe erfolgt durch die RWM - Full Service Makler GmbH.
Download Energieausweis (PDF, 161 KB)
Lage
Das Neubauprojekt befindet sich in Leinfelden-Echterdingen auf der Filderebene und grenzt im Norden an das Stadtgebiet Stuttgart an. Im Westen und Süden schließt sich das Waldgebiet Schönbuch sowie das Siebenmühlental an. Das Gebiet rund um die Wohnung ist geprägt von kleinen Mehrfamilien- und Einfamilienhäusern. Zahlreiche Grün- bzw. Landwirtschaftsflächen laden zum Wohlfühlen ein. Die umliegende Natur bietet viele Möglichkeiten zur Freizeitgestaltung von Spaziergängen bis hin zu verschiedenen Outdoor- und Sportaktivitäten.
Nur 5 Gehminuten entfernt befindet sich ein EDEKA sowie mehrere Einkaufsmöglichkeiten des täglichen Bedarfs - von Bäckereien, Restaurants bis hin zu einem vielfältig buntem Imbiss-Angebot (z. B. türkische und griechische Spezialitäten). Die Nahversorgung wird abgerundet durch verschiedene Arztpraxen, Apotheken, Banken, Frisör- und Beautysalons sowie viele weitere Geschäfte.
Des Weiteren sind fußläufig mehrere große Arbeitgeber ansässig, wie z. B. Daimler Trucks AG, Robert-Bosch-Power-Tools GmbH, Roto Frank, Capgemini und T-Systems International. Mit dem Fahrrad erreichen Sie in wenigen Minuten auch die Messe Stuttgart.
Das äußerst familienfreundliche Gebiet besitzt neben einer sehr guten Infrastruktur - ebenfalls in fußläufiger Nähe - diverse Schulen, z. B. die Ludwig-Uhland-Schule und das Immanuel-Kant- Gymnasium sowie auch einen Kindergarten. In wenigen Gehminuten erreichen Sie die Bushaltestelle „Leinfelden Meisenweg“ (Linie 818). Ebenfalls ganz in der Nähe ist die U-Bahn-Haltestelle „Leinfelden Frank” (Linie U5). In ca. 13 Minuten erreichen Sie zu Fuß die S-Bahn-Haltestelle „Leinfelden“ mit den Linien S2 und S3. Mit dem Auto erreichen Sie die Autobahn in ca. 2 Minuten, wo Sie auf die A8 mit Fahrtrichtung Stuttgart bzw. München gelangen, oder auf die B27 sowie direkt zum Flughafen Stuttgart kommen.
Die Wohnungen befinden sich in einer verkehrsberuhigten Straße. Der großzügige Tiefgargenstellplatz bietet die Möglichkeit, das Auto bequem abzustellen und mit dem Aufzug barrierefrei bis zur Wohnungstür zu gelangen.
Rechtlicher Hinweis: Die Informationen zum Bauvorhaben sind ein redaktioneller Beitrag der neubau kompass AG. Er dient ausschließlich Informationszwecken und stellt kein Angebot im rechtlichen Sinne dar. Die angebotenen Inhalte werden von der neubau kompass AG nach § 2 TMG veröffentlicht und kontrolliert. Informationen zu einer etwaigen Provisionspflicht sind beim Anbieter zu erfragen. Alle Angaben, insbesondere zu Preisen, Wohnflächen, Ausstattung und Bezugsfertigkeit sind ohne Gewähr. Irrtum vorbehalten.


Virtueller Rundgang Whg. 6