Dieses Wohnbeispiel ist Teil des Bauvorhabens Elbe Townhouses

Haus A2

  • Effizienzhaus 40 EE
  • Provisionsfrei
  • Adresse
    Bramweg 10, 22589 Hamburg / Sülldorf
  • Wohntyp
    Doppelhaushälfte
  • Preis
    1.450.000 €
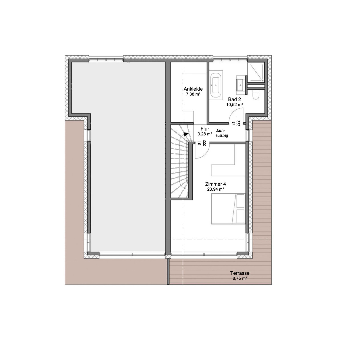
  • Etage
    3. OG
  • Zimmeranzahl
    6
  • Wohnfläche
    181,71 m2
  • Gesamtfläche
    244,49 m2
  • Grundstücksfläche
    184,48 m2
  • ID
    288174

Lage

Auf der Karte anzeigen

Der Finanzierungsrechner für Ihren Wohnkredit

Mit unserem Finanzierungsrechner kannst du schnell und bequem eine Finanzierung für deine Immobilie berechnen.

Finanzierungsbeispiel

Eigenkapital: 290.000 €
Sollzinsbindung: 10 Jahre
Tilgungsrate: 1 %
Monatsrate

4.524 €

Dieses Wohnbeispiel ist Teil des Bauvorhabens
Elbe Townhouses

Exposé/Preisliste anfordern
Pflichtfelder *

Wir behandeln deine Daten vertraulich. Mit dem Absenden erklärst du dich mit der Verarbeitung deiner Anfrage gemäß unserer Datenschutzerklärung und AGB für Verbraucher:innen einverstanden.

Anbieter

Elbstone Real Estate GmbH

Kühnehöfe 20, 22761 Hamburg

Elbstone Real Estate GmbH