RIWE Projekt GmbH

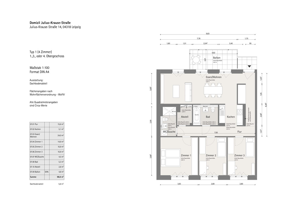
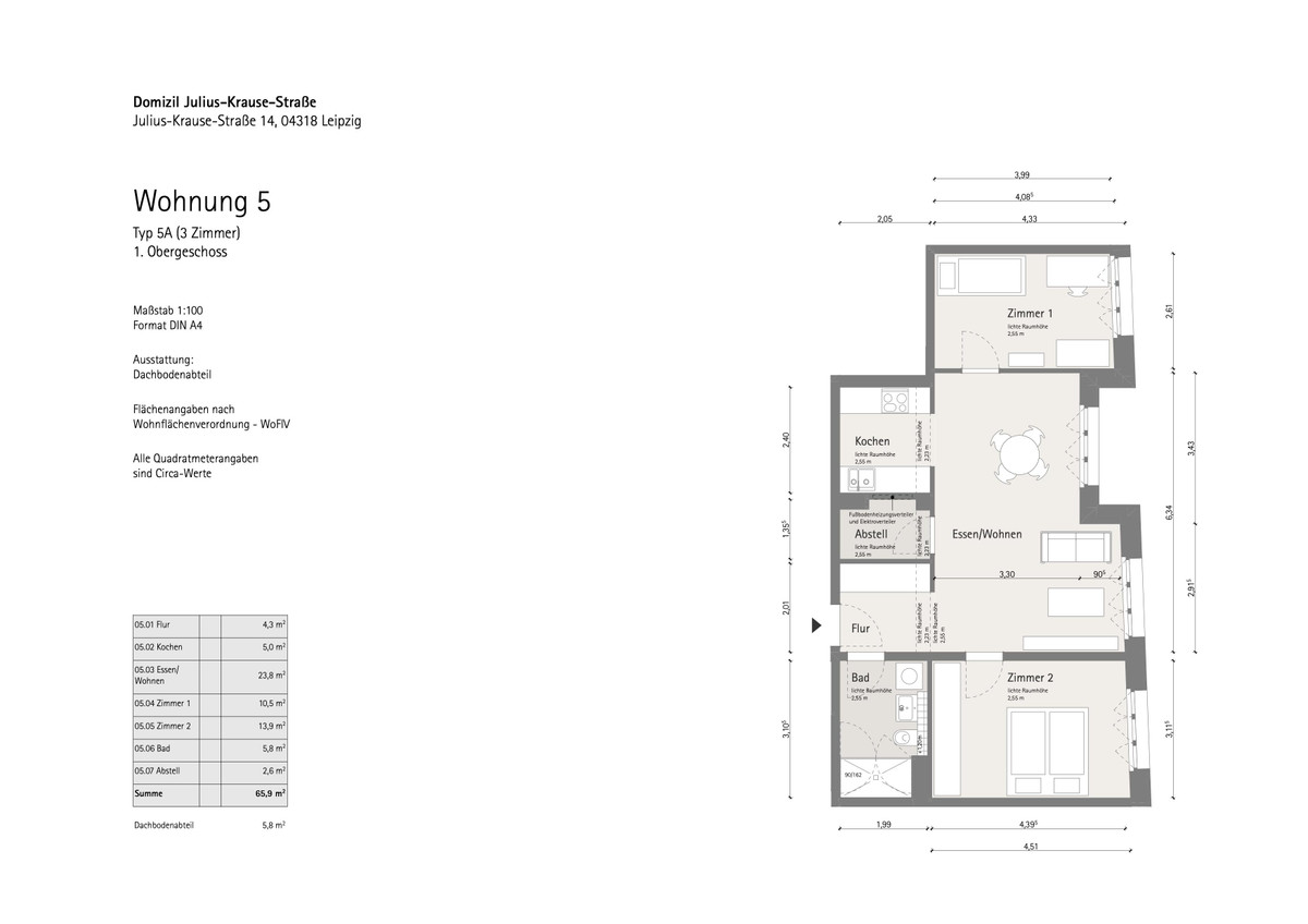
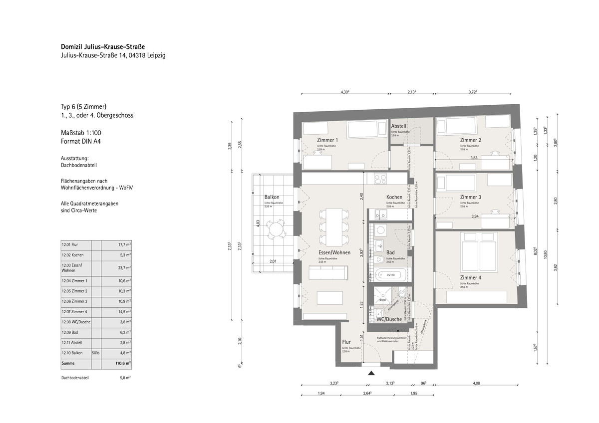
Domizil Julius-Krause-Straße

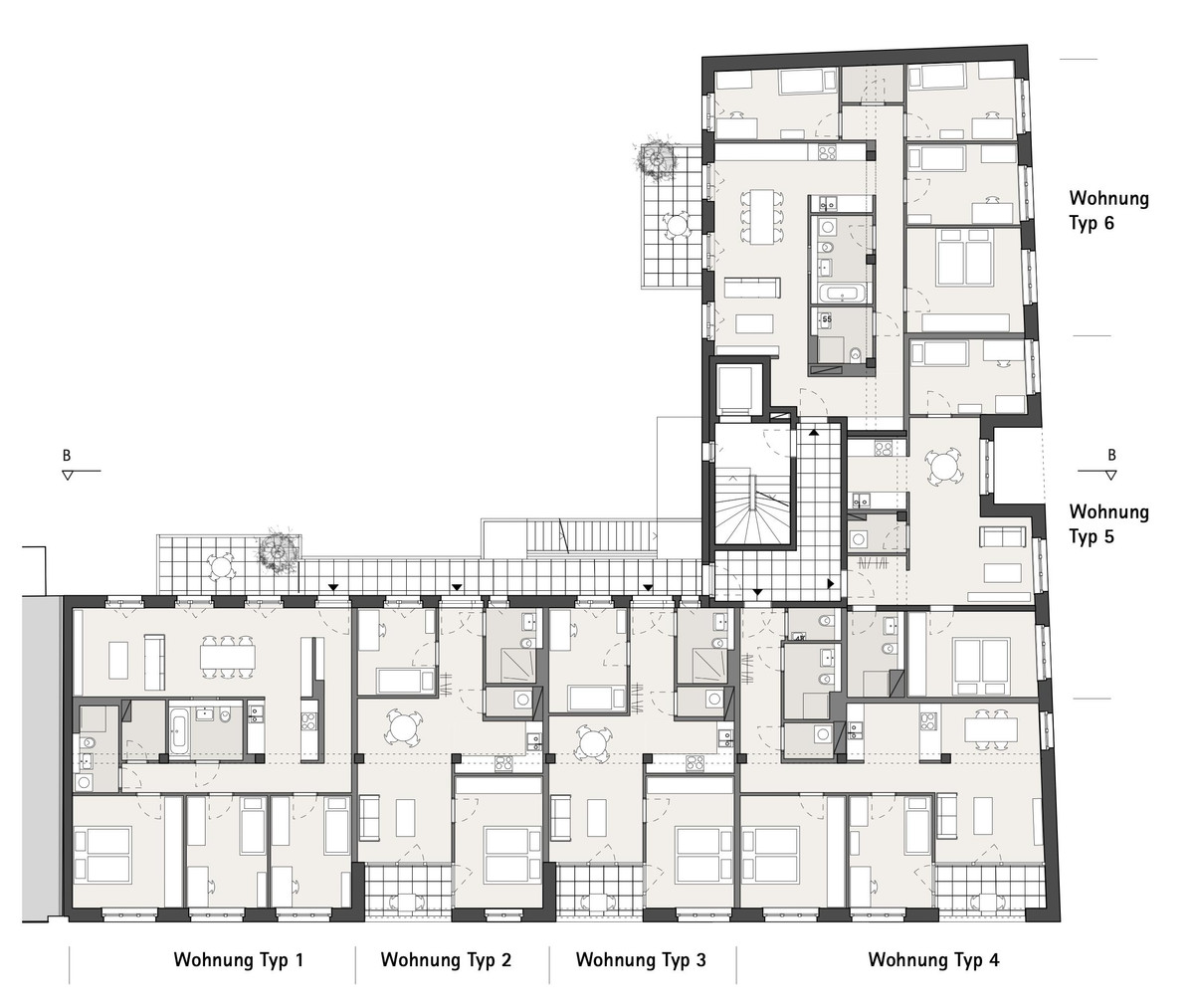
Neubau von 24 Eigentumswohnungen

  • Effizienzhaus 40 QNG
  • Energieeffizienzklasse A+
  • Provisionsfrei

Projektdetails

  • Julius-Krause-Straße 14, 04318 Leipzig / Sellerhausen-Stünz
  • Eigentumswohnung
  • 298.500 € - 633.880 €
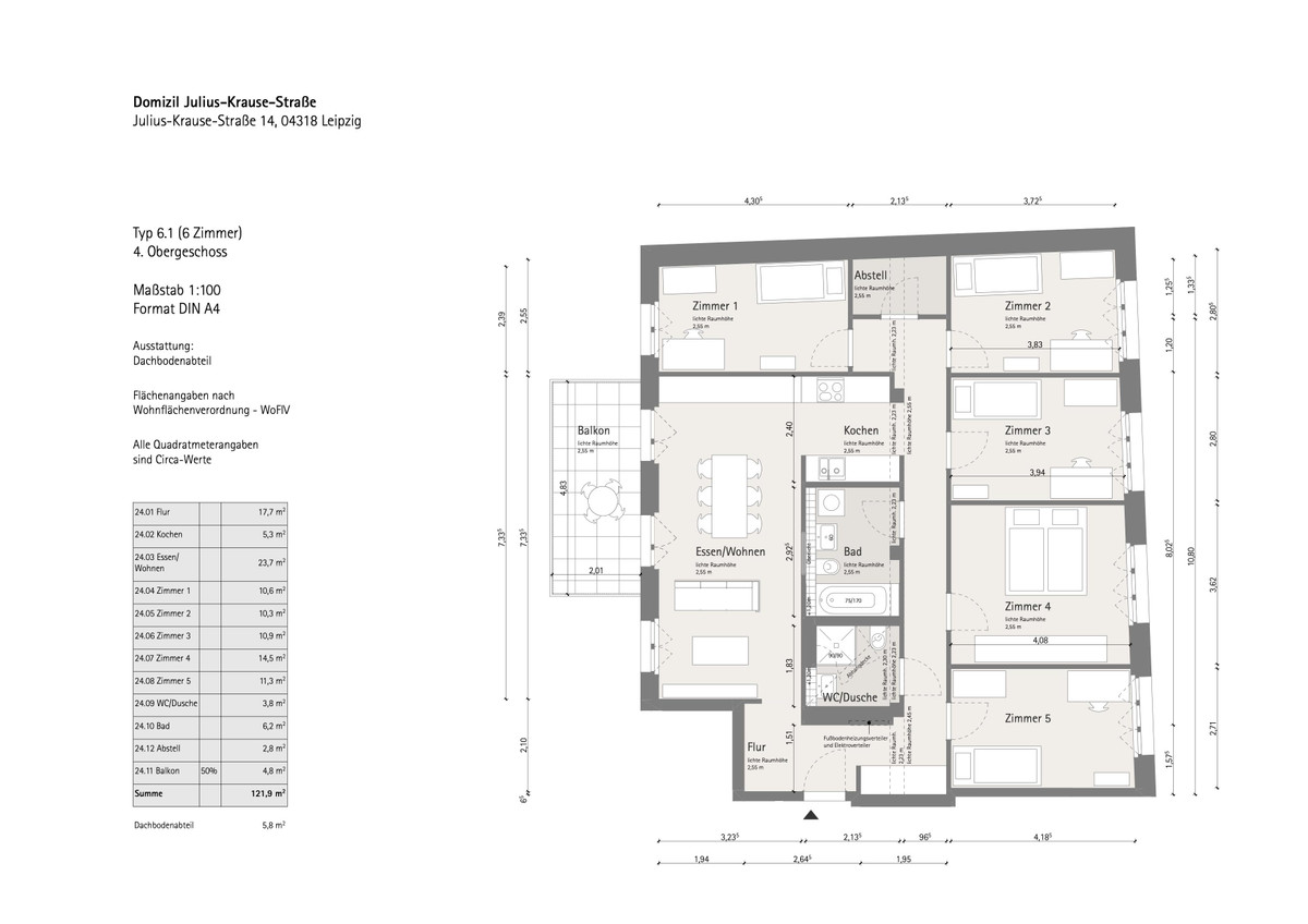
  • 3 - 6 Zimmer
  • 60,7 - 121,9 m2
  • 2027
  • 24
  • Gehoben
  • 27403

Merkmale

  • Aufzug
  • Balkon
  • Barrierearm
  • Bodengleiche Dusche
  • Dachterrasse
  • Fenster 3-fach verglast
  • Fußbodenheizung
  • Garten
  • Gäste-WC
  • Loggia
  • Parkettboden
  • Photovoltaikanlage
  • Sanitärausstattung von Markenherstellern
  • Vorbereitung für E-Ladestation
  • Wärmepumpe

Lage

Auf der Karte anzeigen

Wohnbeispiele

Exposé/Preisliste anfordern
Pflichtfelder *

Anzahl der Zimmer

Wir behandeln deine Daten vertraulich. Mit dem Absenden erklärst du dich mit der Verarbeitung deiner Anfrage gemäß unserer Datenschutzerklärung und AGB für Verbraucher:innen einverstanden.

Projektbeschreibung

Bild Neubau Eigentumswohnungen Domizil Julius-Krause-Straße

Domizil Julius-Krause-Straße - KfW 40

Neues Wohnen in Leipzig-Stünz

Wie Wohnen? Das neue Projekt Domizil Julius-Krause-Straße in Leipzig-Stünz beantwortet diese Frage vielschichtig. Wir versuchen dabei auf die individuellen Bedürfnisse von Bewohnern in unterschiedlichsten Lebenslagen einzugehen. Das Haus und die Wohnungen sollen der Ruhepol und der Lebensraum in einer lebenswerten Umgebung sein und auf diese ausstrahlen.

Ein nachhaltiges Projekt

Wer baut, übernimmt Verantwortung für die Zukunft. Neben dem Anspruch, ein gestalterisch möglichst zeitloses Gebäude zu schaffen, möchten wir auch konstruktiv nachhaltig bauen. So werden wir die tragende Konstruktion der Wohngeschosse aus Holz ausführen. Dieses wird in den Wohnungen an den Decken sichtbar sein. Die nachhaltige Fassadenkonstruktion besteht aus vorgehängten Faserzementplatten.

Die Wärmeversorgung erfolgt mit einer Wärmepumpe. Der hierfür benötigte Strom kommt teilweise aus einer etwa 160 qm großen Solarstromanlage auf dem Dach. Zusammen mit der Dreifach-Verglasung und der Dämmung der opaken Bauteile werden die geltenden Standards zum Klimaschutz und der Nachhaltigkeit übertroffen. Es wird der KfW-Standard EH 40 mit QNG erreicht. Damit kommen für Sie bis zu drei KfW- Förderprogramme (124, 297 bzw. 298 und 300) in Frage. Für Kapitalanleger gilt die degressive 5%-Abschreibung sowie die Sonderabschreibung für QNG.

Bild Neubau Eigentumswohnungen Domizil Julius-Krause-Straße

Eine lebendige Gemeinschaft

Die Wohnungsgrößen haben wir so angelegt, dass eine dynamische soziale Gemeinschaft entstehen kann. So finden Familien ebenso ein Zuhause wie Bewohner, die auf der Suche nach einer praktischen Wohnung für den Ruhestand sind. Treffpunkte für die Gemeinschaft sind der Garten und die Dachterrasse.

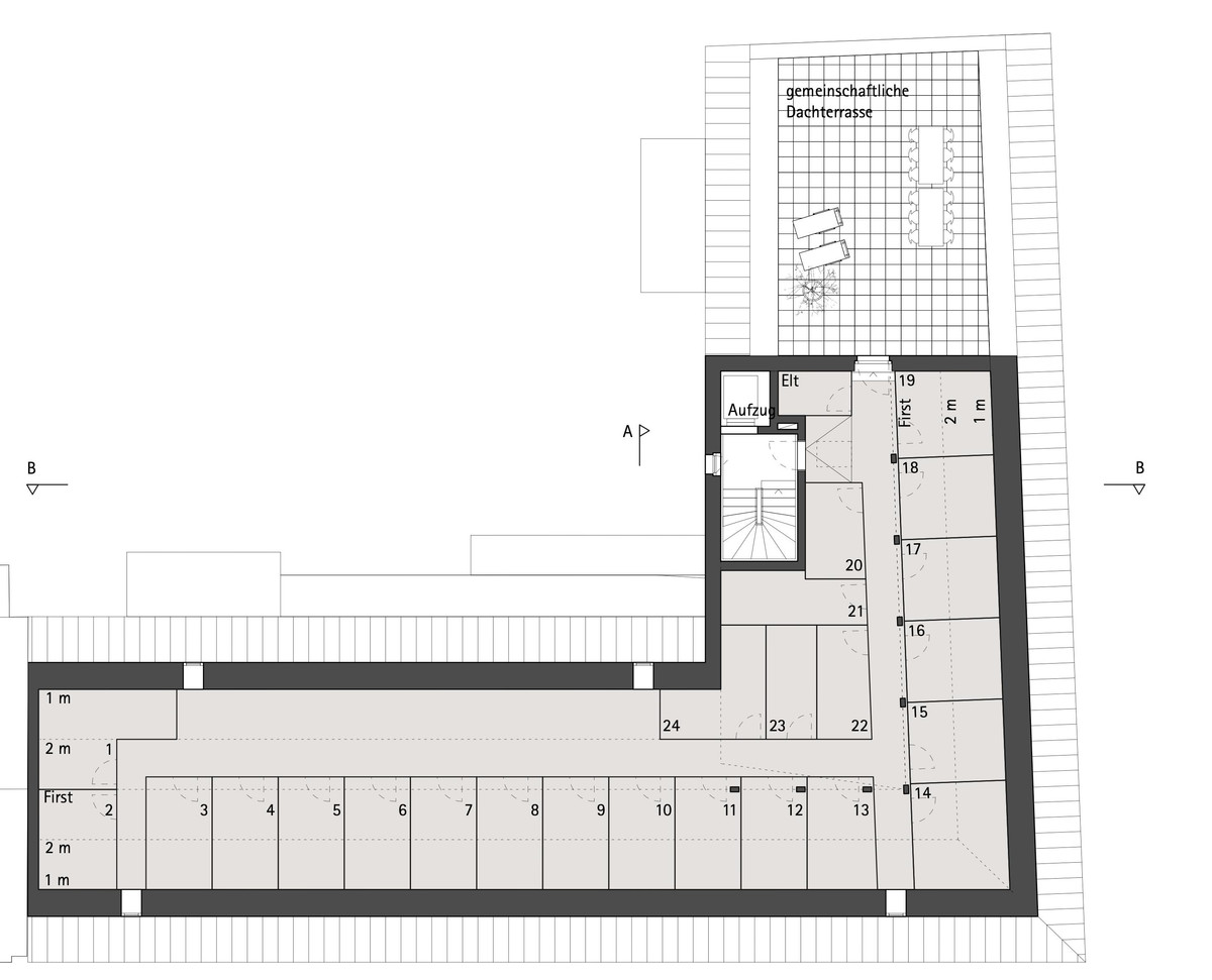
Ein zeitgenössisches Haus

Das Gebäude verfügt über 4 Wohnetagen, sowie über einen Dachboden und ein Erdgeschoss. Über den Aufzug können alle Stockwerke erreicht werden. Die Fassaden sind Ausdruck einer modernen Haltung, ohne modisch zu sein. Wichtig sind uns gute Proportionen und Nutzbarkeit. Die straßenseitige Fassade fügt sich mit den homogenen Fensterformaten und eingerückten Loggien in die gründerzeitliche Nachbarbebauung ein. Die stärker aufgelockerte hofseitige Fassade interagiert über den Laubengang und die Balkone mit dem Freiraum. Zur Straße hin und teilweise zum Hof hin werden die Fenster mit Senkrechtmarkisen mit Ausstellfunktion ausgestattet.

Bild Neubau Eigentumswohnungen Domizil Julius-Krause-Straße

Ausstattung im Überblick

  • barrierearm altersgerecht
  • familienfreundliche Grundrisse
  • Fußbodenheizung
  • Eichenparkett
  • bodengleiche Dusche
  • 3-fach Verglasung
  • Balkon oder Loggia
  • Elektrische Außenverschattung
  • Solaranlage auf dem Dach
  • Begrünte Hofanlage
  • Überdachte Fahrradstellplätze
  • 16 PKW-Stellplätze
  • Vorbereitung für E-Ladestation
  • gemeinschaftliche Dachterrasse
  • Abstellräume unter dem Dach
  • Wärmepumpe
  • Holzdecken in den Wohnungen
  • Holzkonstruktion
  • Lastenrad-Stellplatz
  • Photovoltaikanlage mit Speicher
Bild Neubau Eigentumswohnungen Domizil Julius-Krause-Straße

Lage und Lagebeschreibung

Stünz ist ein dynamischer Stadtteil im Leipziger Osten mit einer guten Anbindung an die östlichen Leipziger Grünräume. Hervorzuheben ist der Volkshain Stünz. Über diesen besteht in Richtung Stadtmitte eine Anbindung an den neu entstehenden Parkbogen Ost. Nach Osten wird entlang der Östlichen Rietzschke der Zweinaundorfer Gutspark erreicht. In die den Bauplatz umgebende Bildungs– und Betreuungsinfrastruktur wird laufend investiert. So entstand beispielsweise die Quartiersschule und das Bürgerzentrum Ihmelsstraße.

In der Nähe befindet sich ausserdem die integrative Kindertagesstätte Kinderinsel Emmaus. Über die südlich angrenzenden Kleingartenanlagen wird das Sommerbad Südost auf kurzem Weg erreicht. Der Wandel von Stünz vom sorbischen Runddorf zu einem Vorort der aufstrebenden Stadt Leipzig lässt sich an vielen räumlichen Situationen, wie zum Beispiel dem alten Dorfkern am Volkshain, ablesen.

Das Dorf und der Park

Wir freuen uns darüber, unser Projekt in der ruhigen Julius-Krause-Straße mit der gegenüberliegenden niedrigen Einfamilienhaus-Bebauung am Rand der gründerzeitlichen Siedlungsstruktur realisieren zu können. Das Projekt profitiert von seiner Lage am Übergang von Geschosswohnungsbebauung zu privaten Einfamilienhäusern. Wir können so für die Wohnungen gute Belichtung und Ausblicke bieten. Die Umgebung und das Gebäude stehen in positiver Wechselwirkung. Der Dorfkern Stünz und der Volkshain sind nur wenige Minuten zu Fuß entfernt.

Bereits 1898 wurde der Park feierlich eröffnet. Vorausschauend wurde er für die Naherholung der Bürger der wachsenden Stadt Leipzig angelegt. So stammen der Teich und der Baumbestand überwiegend aus den Gründungsjahren des Parks.

Bild Neubau Eigentumswohnungen Domizil Julius-Krause-Straße

Rechtlicher Hinweis: Die Informationen zum Bauvorhaben sind ein redaktioneller Beitrag der neubau kompass AG. Er dient ausschließlich Informationszwecken und stellt kein Angebot im rechtlichen Sinne dar. Die angebotenen Inhalte werden von der neubau kompass AG nach § 2 TMG veröffentlicht und kontrolliert. Informationen zu einer etwaigen Provisionspflicht sind beim Anbieter zu erfragen. Alle Angaben, insbesondere zu Preisen, Wohnflächen, Ausstattung und Bezugsfertigkeit sind ohne Gewähr. Irrtum vorbehalten.

Anbieter

RIWE Projekt GmbH

Nordplatz 9, 04105 Leipzig

RIWE Projekt GmbH