Dieses Wohnbeispiel ist Teil des Bauvorhabens BUWOG ALVA

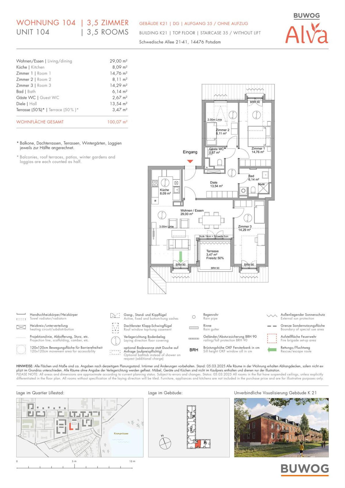
Großzügige 3,5 Zimmer-Dachgeschoss-Wohnung mit Gäste-WC und schöner Terrasse

  • Adresse
    Schwedische Allee 21 – 41, 14476 Potsdam
  • Wohntyp
    Etagenwohnung
  • Preis
    820.000 €
  • Etage
    2. OG
  • Zimmeranzahl
    3,5
  • Wohnfläche
    100,07 m2
  • Gesamtfläche
    100,07 m2
  • ID
    282369
  • Anbieter Objekt-ID
    53511_WE 104

Merkmale

  • Dusche
  • Gäste-WC

Lage

Auf der Karte anzeigen

KRAMPNITZ: POTSDAMS NEUER NORDEN
Wo früher Pferde trabten, entsteht jetzt das Stadtquartier von morgen. Das Stadtquartier Krampnitz wird für eine breite Vielfalt an Einwohnenden geplant und gebaut.
Mit Straßen, Wegen, Treffpunkten, Grünflächen und vielen Möglichkeiten, Ihr Leben, die Natur, die Großstadt und das nachbarschaftliche Miteinander ganz nach
ihrer Façon zu genießen.

Ausstattung

Alle Wohnungen werden mit Echtholzböden ausgestattet, unter denen Fußbodenheizungen verlaufen. Denn die Kombination von Holz und Wärme ist einfach unübertroffen behaglich.
Auf den Böden der Bäder, Gäste-Bäder und -WCs sowie der Hauswirtschaftsräume wird Feinsteinzeug von Villeroy & Boch für eine samtig-elegante Optik und Haptik sorgen.
Ebenso an den Wänden der Bäder und WCs. Auch die Badkeramik wird aus dem Hause Villeroy & Boch kommen. Auf ähnlich namhafte Hersteller setzen wir bei den Armaturen und der
weiteren Bäderausstattung.

- ECHTHOLZBÖDEN
- FUSSBODENHEIZUNG
- BALKONE, TERRASSEN
- FEINSTEINZEUG VILLEROY & BOCH

Beschreibung

BUWOG ALVA ist der erste Bauabschnitt des Quartiers Lillestad der BUWOG.
Der schwedische Name Alva bedeutet „Fee“. Wie passend, dass BUWOG ALVA den stillen Wunsch von drei denkmalgeschützten Bestandsbauten wahr macht: wieder instandgesetzt und mit neuem Leben erfüllt zu werden. Roter Klinker, darüber der weite blaue Himmel und gleich zwei Seen in der Nachbarschaft – so leben Sie in BUWOG ALVA. Die modernen Wohnungen befinden sich in historischen Gebäuden, die nur zwei Stockwerke hoch sind. Und auch dadurch zum freundlich-anheimelnden skandinavischen Feeling beitragen.

Sonstiges

Wir freuen uns auf Ihre Anfrage. Sie erhalten anschließend eine Bestätigungsmail an die von Ihnen genannte Mailadresse, bitte prüfen Sie Ihr Postfach, ggf. auch Ihren Spam-Ordner.
Erst nach Bestätigen über den Link in der Bestätigungsmail können wir Ihre Anfrage bearbeiten.

Beratungstermine vor Ort nach Vereinbarung. Jetzt anfragen und Ihren Wunschtermin finden.

Projektgesellschaft:
WIK Wohnen in Krampnitz GmbH

Der Finanzierungsrechner für Ihren Wohnkredit

Mit unserem Finanzierungsrechner kannst du schnell und bequem eine Finanzierung für deine Immobilie berechnen.

Finanzierungsbeispiel

Eigenkapital: 164.000 €
Sollzinsbindung: 10 Jahre
Tilgungsrate: 1 %
Monatsrate

2.558 €

Dieses Wohnbeispiel ist Teil des Bauvorhabens
BUWOG ALVA

BUWOG ALVA - Wohnung

Gemütliche 2 Zimmer-Wohnung mit Balkon / barrierefrei

Preis

435.000 €

Wohnfläche

53,12 m2

Zimmer

2 Zi.

BUWOG ALVA - Wohnung

2 Zimmer-Dachgeschoss-Wohnung mit ca. 53m² und Terrasse

Preis

438.000 €

Wohnfläche

53,7 m2

Zimmer

2 Zi.

BUWOG ALVA - Wohnung

Kompakte barrierefreie 2 Zimmer-Wohnung mit ca. 53m² und Balkon

Preis

438.000 €

Wohnfläche

53,57 m2

Zimmer

2 Zi.

BUWOG ALVA - Wohnung

Kompakte 2 Zimmer-Dachgeschoss-Wohnung mit Terrasse

Preis

438.500 €

Wohnfläche

53,7 m2

Zimmer

2 Zi.

BUWOG ALVA - Wohnung

2 Zimmer-Dachgeschoss-Wohnung mit ca. 56m² und Terrasse

Preis

461.000 €

Wohnfläche

56,27 m2

Zimmer

2 Zi.

BUWOG ALVA - Wohnung

Kompakte 2 Zimmer-Wohnung mit privatem Garten

Preis

469.000 €

Wohnfläche

57,13 m2

Zimmer

2 Zi.

BUWOG ALVA - Wohnung

Kompakte 2 Zimmer-Wohnung mit Terrasse und eigenem Garten

Preis

470.000 €

Wohnfläche

57,22 m2

Zimmer

2 Zi.

BUWOG ALVA - Wohnung

Für Singles oder Paare! 2 Zimmer-Wohnung mit ca. 57m², Terrasse und eigenem Garten

Preis

473.000 €

Wohnfläche

57,66 m2

Zimmer

2 Zi.

BUWOG ALVA - Wohnung

Wohlfühlen auf ca. 57m² plus eigenem Garten und schöner Terrasse

Preis

473.000 €

Wohnfläche

57,67 m2

Zimmer

2 Zi.

BUWOG ALVA - Wohnung

Für frisch verliebte oder glückliche Singles! Kompakte 2 Zimmer-Wohnung mit Balkon

Preis

485.000 €

Wohnfläche

58,87 m2

Zimmer

2 Zi.

BUWOG ALVA - Wohnung

Kompakte 2 Zimmer-Wohnung mit ca. 59m², Hauswirtschaftsraum und Balkon

Preis

487.000 €

Wohnfläche

59,05 m2

Zimmer

2 Zi.

BUWOG ALVA - Wohnung

2 Zimmer-Wohnung mit ca. 59m², Hauswirtschaftsraum und Balkon

Preis

487.000 €

Wohnfläche

59,32 m2

Zimmer

2 Zi.

BUWOG ALVA - Wohnung

Schöne 2 Zimmer-Wohnung mit ca. 59m², Hauswirtschaftsraum und Balkon

Preis

488.000 €

Wohnfläche

59,48 m2

Zimmer

2 Zi.

BUWOG ALVA - Wohnung

2 Zimmer-Dachgeschoss-Wohnung mit Terrasse

Preis

537.000 €

Wohnfläche

65,46 m2

Zimmer

2 Zi.

BUWOG ALVA - Wohnung

2 Zimmer-Dachgeschoss-Wohnung mit ca. 65m² und Terrasse

Preis

537.000 €

Wohnfläche

65,46 m2

Zimmer

2 Zi.

BUWOG ALVA - Wohnung

Barrierefreie 2 Zimmer-Wohnung mit ca. 68m² und schönem Balkon

Preis

559.000 €

Wohnfläche

68,19 m2

Zimmer

2 Zi.

BUWOG ALVA - Wohnung

Barrierefreie 2 Zimmer-Wohnung mit ca. 68m² und schönem Balkon

Preis

560.000 €

Wohnfläche

68,42 m2

Zimmer

2 Zi.

BUWOG ALVA - Wohnung

Barrierefreie 2 Zimmer-Wohnung mit ca. 71m² und schönem Balkon

Preis

585.000 €

Wohnfläche

71,48 m2

Zimmer

2 Zi.

BUWOG ALVA - Wohnung

Geräumige 2 Zimmer-Wohnung mit Hauswirtschaftsraum und Balkon

Preis

633.000 €

Wohnfläche

77,33 m2

Zimmer

2 Zi.

BUWOG ALVA - Wohnung

2 Zimmer-Wohnung mit Terrasse und privatem Garten

Preis

660.000 €

Wohnfläche

80,44 m2

Zimmer

2 Zi.

BUWOG ALVA - Wohnung

Kompakte 2 Zimmer-Wohnung mit Hauswirtschaftsraum, Terrasse und privatem Garten

Preis

664.000 €

Wohnfläche

80,36 m2

Zimmer

2 Zi.

BUWOG ALVA - Wohnung

Tolle 3 Zimmer-Dachgeschoss-Wohnung mit ca. 73m², Gäste-WC und Terrasse

Preis

603.000 €

Wohnfläche

73,7 m2

Zimmer

3 Zi.

BUWOG ALVA - Wohnung

Tolle 3 Zimmer-Dachgeschoss-Wohnung mit ca. 73m², Gäste-WC und Terrasse

Preis

604.000 €

Wohnfläche

73,75 m2

Zimmer

3 Zi.

BUWOG ALVA - Wohnung

3 Zimmer-Dachgeschoss-Wohnung mit ca. 74m² und Loggia

Preis

614.000 €

Wohnfläche

74,64 m2

Zimmer

3 Zi.

BUWOG ALVA - Wohnung

3 Zimmer-Dachgeschoss-Wohnung mit ca. 74m² und gemütlicher Loggia

Preis

614.000 €

Wohnfläche

74,9 m2

Zimmer

3 Zi.

BUWOG ALVA - Wohnung

3 Zimmer-Dachgeschoss-Wohnung mit ca. 75m² und Terrasse

Preis

622.000 €

Wohnfläche

75,92 m2

Zimmer

3 Zi.

BUWOG ALVA - Wohnung

3 Zimmer-Dachgeschoss-Wohnung mit gemütlicher Terrasse

Preis

622.000 €

Wohnfläche

75,88 m2

Zimmer

3 Zi.

BUWOG ALVA - Wohnung

3 Zimmer-Dachgeschoss-Wohnung mit ca. 76m² und gemütlicher Terrasse

Preis

629.000 €

Wohnfläche

76,69 m2

Zimmer

3 Zi.

BUWOG ALVA - Wohnung

3 Zimmer-Dachgeschoss-Wohnung mit ca. 76m² und gemütlicher Terrasse

Preis

630.000 €

Wohnfläche

76,86 m2

Zimmer

3 Zi.

BUWOG ALVA - Wohnung

Gemütliche 3 Zimmer-Dachgeschoss-Wohnung mit Terrasse

Preis

646.000 €

Wohnfläche

78,98 m2

Zimmer

3 Zi.

BUWOG ALVA - Wohnung

Barrierefreie 3 Zimmer-Wohnung mit Balkon

Preis

646.000 €

Wohnfläche

79,02 m2

Zimmer

3 Zi.

BUWOG ALVA - Wohnung

3 Zimmer-Wohnung mit ca. 79m² und Balkon / barrierefrei

Preis

652.000 €

Wohnfläche

79,73 m2

Zimmer

3 Zi.

BUWOG ALVA - Wohnung

Barrierefreie 3 Zimmer-Wohnung mit ca. 83m², Hauswirtschaftsraum und schönem Balkon

Preis

686.000 €

Wohnfläche

83,68 m2

Zimmer

3 Zi.

BUWOG ALVA - Wohnung

Praktische 3 Zimmer-Wohnung mit tollem Balkon / barrierefrei

Preis

688.000 €

Wohnfläche

84,02 m2

Zimmer

3 Zi.

BUWOG ALVA - Wohnung

Schöne 3 Zimmer-Dachgeschoss-Wohnung mit Terrasse

Preis

689.000 €

Wohnfläche

83,97 m2

Zimmer

3 Zi.

BUWOG ALVA - Wohnung

3 Zimmer-Dachgeschoss-Wohnung mit ca. 84m² und gemütlicher Terrasse

Preis

690.000 €

Wohnfläche

84,11 m2

Zimmer

3 Zi.

BUWOG ALVA - Wohnung

Barrierefreie 3 Zimmer-Wohnung mit ca. 84m² und tollem Balkon

Preis

690.000 €

Wohnfläche

84,18 m2

Zimmer

3 Zi.

BUWOG ALVA - Wohnung

Barrierefreie 3 Zimmer-Wohnung mit ca. 84m² und Balkon

Preis

693.000 €

Wohnfläche

84,65 m2

Zimmer

3 Zi.

BUWOG ALVA - Wohnung

Familienglück auf ca. 85m²! 3 Zimmer-Wohnung mit Gäste-WC und Balkon

Preis

699.000 €

Wohnfläche

85,84 m2

Zimmer

3 Zi.

BUWOG ALVA - Wohnung

3 Zimmer-Wohnung mit ca. 85m², Gäste-WC und Balkon

Preis

699.000 €

Wohnfläche

85,76 m2

Zimmer

3 Zi.

BUWOG ALVA - Wohnung

3 Zimmer-Wohnung mit Gäste-WC und Balkon

Preis

706.000 €

Wohnfläche

86,27 m2

Zimmer

3 Zi.

BUWOG ALVA - Wohnung

Für die kleine Familie! 3 Zimmer-Wohnung mit Gäste-WC und Balkon

Preis

708.000 €

Wohnfläche

86,29 m2

Zimmer

3 Zi.

BUWOG ALVA - Wohnung

Barrierefreie 3 Zimmer-Wohnung mit Balkon

Preis

714.000 €

Wohnfläche

87,16 m2

Zimmer

3 Zi.

BUWOG ALVA - Wohnung

Gemütliche 3 Zimmer-Dachgeschoss-Wohnung mit ca. 87m² und Terrasse

Preis

714.000 €

Wohnfläche

87,08 m2

Zimmer

3 Zi.

BUWOG ALVA - Wohnung

Barrierefreie 3 Zimmer-Wohnung mit Hauswirtschaftsraum und Balkon

Preis

715.000 €

Wohnfläche

87,25 m2

Zimmer

3 Zi.

BUWOG ALVA - Wohnung

3 Zimmer-Wohnung für die kleine Familie mit ca. 89m² und Balkon

Preis

732.000 €

Wohnfläche

89,35 m2

Zimmer

3 Zi.

BUWOG ALVA - Wohnung

Attraktive 3 Zimmer-Wohnung mit Balkon

Preis

733.000 €

Wohnfläche

89,48 m2

Zimmer

3 Zi.

BUWOG ALVA - Wohnung

Familienplanung? Schöne 3 Zimmer-Wohnung mit ca. 89m² und Balkon

Preis

736.000 €

Wohnfläche

89,83 m2

Zimmer

3 Zi.

BUWOG ALVA - Wohnung

Schöne 3 Zimmer-Wohnung mit Balkon / barrierefrei

Preis

738.000 €

Wohnfläche

89,5 m2

Zimmer

3 Zi.

BUWOG ALVA - Wohnung

Für die kleine Familie! Barrierefreie 3 Zimmer-Wohnung mit Hauswirtschaftsraum und Balkon

Preis

740.000 €

Wohnfläche

92,15 m2

Zimmer

3 Zi.

BUWOG ALVA - Wohnung

Berrierefreie 3 Zimmer-Wohnung mit Hauswirtschaftsraum, Terrasse und eigenem Garten

Preis

745.000 €

Wohnfläche

90,97 m2

Zimmer

3 Zi.

BUWOG ALVA - Wohnung

Barrierefreie 3 Zimmer-Wohnung mit ca. 91m², Hauswirtschaftsraum, Terrasse und Garten

Preis

746.000 €

Wohnfläche

91,21 m2

Zimmer

3 Zi.

BUWOG ALVA - Wohnung

3 Zimmer-Wohnung mit durchdachtem und barrierefreiem Wohnkomfort samt Balkon

Preis

752.000 €

Wohnfläche

91,81 m2

Zimmer

3 Zi.

BUWOG ALVA - Wohnung

Barrierefrei 3 Zimmer-Wohnung mit ca. 92m² und gemütlichem Garten

Preis

756.000 €

Wohnfläche

92,69 m2

Zimmer

3 Zi.

BUWOG ALVA - Wohnung

3 Zimmer-Wohnung mit Hauswirtschaftsraum, Terrasse und Garten

Preis

761.000 €

Wohnfläche

92,84 m2

Zimmer

3 Zi.

BUWOG ALVA - Wohnung

Schöne 3 Zimmer-Wohnung mit ca. 93m² und eigenem Garten

Preis

765.000 €

Wohnfläche

93,35 m2

Zimmer

3 Zi.

BUWOG ALVA - Wohnung

Idyllische 3 Zimmer-Wohnung mit privatem Garten

Preis

767.000 €

Wohnfläche

93,43 m2

Zimmer

3 Zi.

BUWOG ALVA - Wohnung

Drinnen und draußen! Geräumige 3 Zimmer-Wohnung mit Terrasse und privatem Garten

Preis

768.000 €

Wohnfläche

93,56 m2

Zimmer

3 Zi.

BUWOG ALVA - Wohnung

3 Zimmer-Wohnung mit ca. 93m², Terrasse und Garten

Preis

769.000 €

Wohnfläche

93,81 m2

Zimmer

3 Zi.

BUWOG ALVA - Wohnung

Einziehen und Wohlfühlen! Tolle und barrierefreie 3 Zimmer-Wohnung mit ca. 94m² und schönem Balko

Preis

776.000 €

Wohnfläche

94,71 m2

Zimmer

3,5 Zi.

BUWOG ALVA - Wohnung

Barrierefreie 3,5 Zimmer-Wohnung mit ca. 94m², Hauswirtschaftsraum und Balkon

Preis

777.000 €

Wohnfläche

94,91 m2

Zimmer

3,5 Zi.

BUWOG ALVA - Wohnung

Tolle 3 Zimmer-Dachgeschoss-Wohnung mit ca. 95m², Gäste-Bad, Hauswirtschaftsraum und Loggia

Preis

783.000 €

Wohnfläche

95,24 m2

Zimmer

3 Zi.

BUWOG ALVA - Wohnung

3 Zimmer-Wohnung mit ca. 95m² und Terrasse

Preis

786.000 €

Wohnfläche

95,87 m2

Zimmer

3 Zi.

BUWOG ALVA - Wohnung

Geräumige 3 Zimmer-Dachgeschoss-Wohnung mit ca. 95m², Gäste-Bad, Hauswirtschaftsraum und Loggia

Preis

788.000 €

Wohnfläche

95,4 m2

Zimmer

3 Zi.

BUWOG ALVA - Wohnung

3 Zimmer-Wohnung mit ca. 96m², Hauswirtschaftsraum, Terrasse und eigenem Garten

Preis

789.000 €

Wohnfläche

96,16 m2

Zimmer

3 Zi.

BUWOG ALVA - Wohnung

Großzügige 3,5 Zimmer-Dachgeschoss-Wohnung mit ca. 100m², Gäste-WC und schöner Terrasse

Preis

821.500 €

Wohnfläche

100,27 m2

Zimmer

3,5 Zi.

BUWOG ALVA - Wohnung

Barrierefreie 4 Zimmer-Wohnung mit Gäste-Bad, Abstellraum und Balkon

Preis

831.000 €

Wohnfläche

101,44 m2

Zimmer

4 Zi.

BUWOG ALVA - Wohnung

4 Zimmer-Wohnung mit ca. 101m², Gäste-Bad, Hauswirtschaftsraum und Balkon

Preis

834.000 €

Wohnfläche

101,88 m2

Zimmer

4 Zi.

BUWOG ALVA - Wohnung

Für die Familie! 4 Zimmer-Wohnung mit ca. 101m²

Preis

834.000 €

Wohnfläche

101,77 m2

Zimmer

4 Zi.

BUWOG ALVA - Wohnung

Attraktive 4 Zimmer-Wohnung mit ca. 101m², Hauswirtschaftsraum, Gäste-Bad und Balkon

Preis

835.000 €

Wohnfläche

101,99 m2

Zimmer

4 Zi.

BUWOG ALVA - Wohnung

Barrierefreie 4 Zimmer-Wohnung mit Abstellraum, Gäste-Bad und Balkon

Preis

836.000 €

Wohnfläche

102,23 m2

Zimmer

4 Zi.

BUWOG ALVA - Wohnung

Barrierefreie 4 Zimmer-Wohnung mit Abstellraum, Gäste-Bad und Balkon

Preis

840.000 €

Wohnfläche

102,52 m2

Zimmer

4 Zi.

BUWOG ALVA - Wohnung

4 Zimmer-Dachgeschoss-Wohnung mit ca. 103m², Gäste-Bad und Terrasse

Preis

850.000 €

Wohnfläche

103,87 m2

Zimmer

4 Zi.

BUWOG ALVA - Wohnung

Barrierefreie 4 Zimmer-Wohnung mit Abstellraum und Balkon

Preis

853.000 €

Wohnfläche

104 m2

Zimmer

4 Zi.

BUWOG ALVA - Wohnung

4 Zimmer-Dachgeschoss-Wohnung mit Gäste-Bad, Hauswirtschaftsraum und Terrasse

Preis

865.000 €

Wohnfläche

105,83 m2

Zimmer

4 Zi.

BUWOG ALVA - Wohnung

4 Zimmer-Wohnung mit ca. 105m², Hauswirtschaftsraum, Gäste-Bad, Terrasse und privatem Garten

Preis

866.000 €

Wohnfläche

105,61 m2

Zimmer

4 Zi.

BUWOG ALVA - Wohnung

Schöne und barrierefreie 4 Zimmer-Wohnung mit ca. 113m², Gäste-WC, Hauswirtschaftsraum und Balkon

Preis

934.000 €

Wohnfläche

113,96 m2

Zimmer

4 Zi.

BUWOG ALVA - Wohnung

4 Zimmer-Wohnung mit ca. 114m², Hauswirtschaftsraum, Gäste-WC und Balkon / barrierefrei

Preis

937.000 €

Wohnfläche

114,29 m2

Zimmer

4 Zi.

BUWOG ALVA - Wohnung

Barrierefreie 4 Zimmer-Wohnung mit Abstellraum, Gäste-Bad und Balkon

Preis

948.500 €

Wohnfläche

115,75 m2

Zimmer

4 Zi.

BUWOG ALVA - Wohnung

Wohlfühlen auf ca. 117m²! 4 Zimmer-Wohnung mit Gäste-Bad, Hauswirtschaftsraum und Balkon

Preis

968.000 €

Wohnfläche

117,97 m2

Zimmer

4 Zi.

BUWOG ALVA - Wohnung

Großzügige 4 Zimmer-Wohnung mit Gäste-Bad, Hauswirtschaftsraum und eigenem Garten

Preis

968.000 €

Wohnfläche

117,96 m2

Zimmer

4 Zi.

BUWOG ALVA - Wohnung

Großzügige 4 Zimmer-Wohnung mit Hauswirtschaftsraum und Gäste-Bad

Preis

970.000 €

Wohnfläche

118,47 m2

Zimmer

4 Zi.

BUWOG ALVA - Wohnung

Schöne 4 Zimmer-Wohnung mit ca. 118m², Hauswirtschaftsraum, Gäste-Bad, Terrasse und privatem Gart

Preis

972.000 €

Wohnfläche

118,4 m2

Zimmer

4 Zi.

BUWOG ALVA - Wohnung

Traumhaft barrierefrei! Großzügige 4 Zimmer-Wohnung mit Gäste-Bad und Balkon

Preis

989.000 €

Wohnfläche

120,08 m2

Zimmer

4 Zi.

BUWOG ALVA - Wohnung

Großzügige 4 Zimmer-Dachgeschoss-Wohnung mit Gäste-WC und Terrasse

Preis

1.016.000 €

Wohnfläche

125,84 m2

Zimmer

4 Zi.

BUWOG ALVA - Wohnung

Familien aufgepasst! 4 Zimmer-Wohnung mit Hauswirtschaftsraum, Terrasse und schönem Garten

Preis

1.016.000 €

Wohnfläche

123,9 m2

Zimmer

4 Zi.

BUWOG ALVA - Wohnung

Geräumige 4 Zimmer-Dachgeschoss-Wohnung mit Hauswirtschaftsraum, Gäste-Bad und herrlicher Terrasse

Preis

1.030.000 €

Wohnfläche

125,41 m2

Zimmer

4 Zi.

Exposé/Preisliste anfordern
Pflichtfelder *

Wir behandeln deine Daten vertraulich. Mit dem Absenden erklärst du dich mit der Verarbeitung deiner Anfrage gemäß unserer Datenschutzerklärung und AGB für Verbraucher:innen einverstanden.

Anbieter

WIK Wohnen in Krampnitz GmbH

Rankestraße 21, 10789 Berlin