Dieses Bauvorhaben ist abverkauft.

Haus & Capital

Brosepark 40

Neubau von 14 Eigentumswohnungen und 2 Doppelhaushälften

Projektdetails

  • Dietzgenstraße 40, 13156 Berlin / Pankow
  • Eigentumswohnung, Doppelhaushälfte
  • 16
  • Gehoben
  • 7997

Lage

Auf der Karte anzeigen

Projektbeschreibung

Anschrift Infobüro:

Dietzgenstraße 38
13156 Berlin-Pankow
Tel.: 030 - 3151 74112

Brosepark 40
Baubeginn erfolgt!

Brosepark 40

Willkommen im Leben

Bilder zum Neubau Brosepark 40

Sie suchen eine Eigentumswohnung inmitten eines grünen Idylls und nur einen Katzensprung vom bunten Treiben Berlins entfernt?

Das grüne Herz Pankow mit perfekt erschlossener Infrastruktur ist der ideale Ort, um eine Eigentumswohnung zu kaufen. Besser kann eine Immobilie nicht gelegen sein. Im kommenden Jahr entstehen hier 2 Häuser mit 16 Wohneinheiten. Vom 1-Zimmer Apartment bis hin zum Haus mit eigenem Garten ist hier alles dabei. Schauen Sie sich auf unserer Webseite um und genießen Sie die verschiedenen Eindrücke.

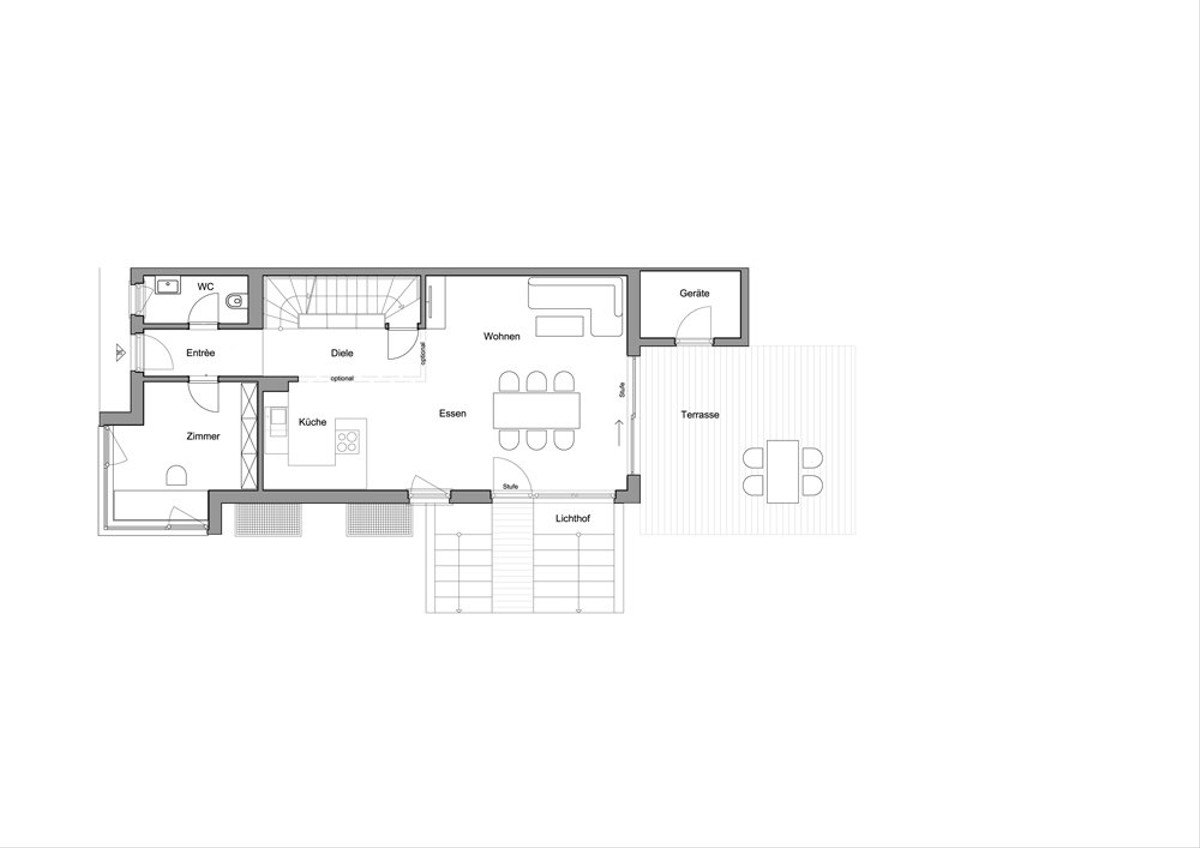
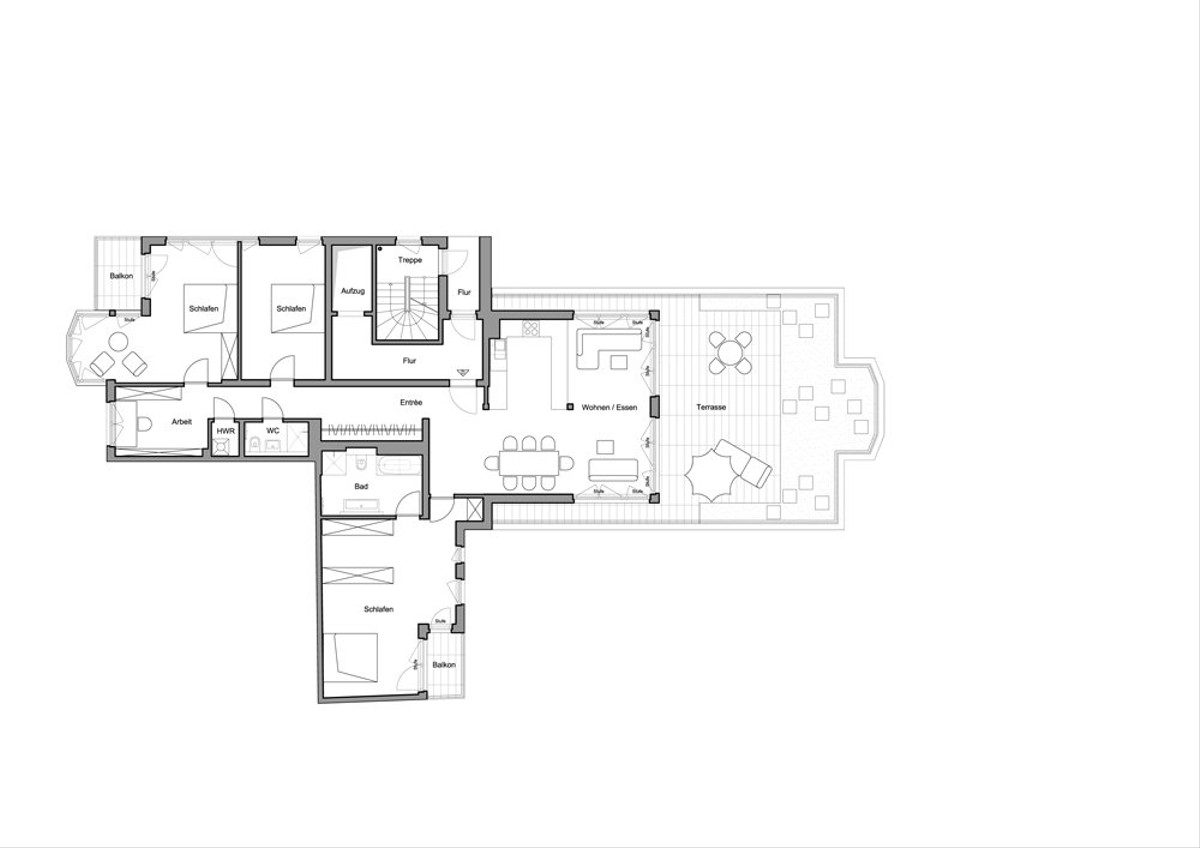
Einer von vielen Vorteilen gegenüber dem Mieten - unsere Wohnungen sind flexibel im Grundriss und in der Ausstattung, d.h. Sie bestimmen, wie Ihre neue Wohnung aussehen soll.

Die Ausstattung

Das Wohlfühlwohngefühl
Ihre Wünsche sind unsere Motivation! Alle Wohnungen können ganz nach Ihren individuellen Wünschen ausgestattet werden - damit Sie Ihr neues Zuhause flexibel und nach Ihren Vorstellungen gestalten können. Ob offener oder geschlossener Wohn-/Essbereich, ein großes oder zwei kleine Kinderzimmer - Sie entscheiden. Jede Wohnung hat mindestens einen Balkon oder eine Terrasse mit viel Platz für Familie und Freunde.

Materialien
Damit das Wohlfühlwohngefühl anhält, verwenden wir ausschließlich erstklassige Materialien. Hochwertiges Echtholz-Parkett wird als Bodenbelag verlegt. Im Zusammenspiel mit den großen Fenstern entstehen moderne, lichtdurchflutete Räume und ein behagliches Wohnklima. Alle Wohnungen sind durchgehend barrierefrei und ermöglichen bis ins hohe Alter ein selbstständiges Leben in den eigenen vier Wänden. Die Behaglichkeit wird durch eine Fußbodenheizung in jedem Raum vollendet. Besonders in der kalten Jahreszeit führt die gleichmäßige Wärme zu einem Wohlfühlwohngefühl und geringeren Heizkosten, ohne störende Heizkörper. Selbstverständlich können Sie die Wärme in jedem Raum separat regulieren.

Parkplätze
Die Tiefgarage verbindet unterirdisch beide Baukörper und hat einen Zugang zum Vorderhaus, in die Grünlage und zum Gartenhaus. Auf Wunsch findet hier Ihr Auto einen sicheren Platz. Über die Treppe oder den Aufzug erreichen Sie Ihre Wohnung im Vorderhaus. Für die Fahrradfreunde befindet sich im Kellergeschoss ein Fahrradraum. Zusätzliche Fahrradstellplätze stehen im Außenbereich zur Verfügung.

Außenbereich
Wir wollen das Wohlfühl-Wohngefühl auch außerhalb Ihrer vier Wände erhalten. Deshalb wird das Haus von einem gemeinschaftlich nutzbaren grünen Außenbereich umschlossen, auf dem auch ein Spielplatz angelegt wird.

Highlights im Überblick

  • Optimale Grundrissgestaltung
  • Zeitloses Design der Sanitär-Keramik
  • Moderne Fliesen-Auswahl
  • Helle, freundliche Wandfarben
  • Hochwertiges Echtholz-Parkett
  • Fußbodenheizung - getrennt für jeden Raum regelbar
  • Durchdachte Elektroinstallationen
  • Zeitgemäße Schalter- und Steckdosenprogramme
  • Terminal mit Video-Wechsel-Sprech-Anlage zur Hauseingangstür
  • Liftanlage im Vorderhaus bis in den Keller
  • Barrierefreier Zugang
  • Energieeffizienzhaus (KfW 70)
  • Blockheizkraftwerk
  • Solaranlage für die Warmwasseraufbereitung
  • Wohnungen im Erdgeschoss auf Wunsch behindertengerecht
  • Fahrradstellplätze im Keller des Vorderhauses und im Außenbereich
  • Gartenanlage mit Spielplatz zwischen den Gebäuden

Die Lage

Pankow: Wohnen im Grünen und in der Stadt

Natur und Idyll in Berlin
Der Brosepark ist benannt nach dem Pankower Bankier Christian Wilhelm Brose, der das Grundstück 1818 erwarb und diesen Park anlegen lies. 1920 wurde das Parkgrundstück durch die Gemeinde Niederschönhausen erworben, welches bis dahin im Besitz der Familie Brose war. Im zweiten Weltkrieg wurde auch der Brosepark stark beschädigt, weshalb er in den Jahren 1985-1987 umfassend rekonstruiert wurde. Die Nähe zum Pankower Schlosspark und Schloss Schönhausen machten den Brosepark schnell zu einem beliebten Erholungsort mitten in Berlin. Vor allem der wertvolle alte Baumbestand macht die Schönheit des Broseparks aus. Ihre Seltenheit führte dazu, dass zwei Eiben, eine Flatterulme, ein Bergahorn, eine Hainbuche und eine Platane zu Naturdenkmälern erklärt wurden. Das träumerische Bild wird durch die verschiedenen Blumen abgerundet, welche im gesamten Park blühen, dazu gehören unter anderem Veilchen, Narzissen und Milchsterne. Eingebettet in diese Wohlfühl-Kulisse befindet sich auch ein schöner Spielplatz, wodurch der Brosepark auch ein ideales Ausflugsziel für Familien darstellt.

Wohnen und Leben in Pankow
Verlässt man den Park, bietet die Dietzgenstraße viele Möglichkeiten für einen Einkaufsbummel. Die Infrastruktur lässt keine Wünsche offen. Diese familienfreundliche Infrastruktur äußert sich in Kindergärten, Schulen, Ärzte, Sporteinrichtungen und Anbindungen an das öffentliche Nahverkehrsnetz, welche sich in unmittelbarer Nähe zum Objekt befinden. In nur 5 Minuten erreicht man mit dem Auto das Rathaus-Center Pankow mit insgesamt 80 Geschäften und einem Parkhaus, welches den Kunden kostenlos zur Verfügung steht. Der gepflegte Brosepark ist ein Kleinod unter den zahlreichen Parks in Pankow. In Kürze entsteht hier ein Mehrfamilienhaus mit 14 Wohnungen, einer kleinen Gewerbefläche und 2 Doppelhaushälften, die es ermöglichen werden, inmitten dieser Idylle zu wohnen und zu leben. Dabei ist es das erklärte Ziel, die 2 Häuser bestmöglich in die Landschaft einzufügen. Genießen Sie dank großer bodentiefer Fenster einen umwerfenden Ausblick, währendSie in Ihrer neuen Küche das Essen zubereiten, das Sie anschließend auf Ihrem Balkon bzw. Ihrer Terrasse zu sich nehmen.

Pankow wächst und gedeiht
Pankow und Niederschönhausen erblühte durch die gleichzeitige Nähe zur Natur und dem Zentrum von Berlin vor allem durch den wirtschaftlichen Aufschwung Anfang des 19. Jahrhunderts als beliebte Gegend für Sommerresidenzen. Die vielen villenähnlichen Immobilien wurden größtenteils restauriert und bestimmen auch heute noch das Bild von Niederschönhausen und Pankow. An der Beliebtheit dieses Ortsteils hat sich bis heute nichts geändert. Die Nähe zum Prenzlauer Berg, Weißensee und anderer schöner Parkanlagen wie den Bürgerpark, die Schönholzer Heide, den Schlosspark und den Botanischen Volkspark machen Niederschönhausen zu einer der gefragtesten Wohngegenden Berlins.

Bilder zum Neubau Brosepark 40

Parkeingang mit Brosehaus

Sonstiges

Verkauf direkt vom Eigentümer - provisionsfrei! Für Anfragen oder zur Vereinbarung eines persönlichen Termins wenden Sie sich gern an einen unserer Mitarbeiter unter: 030 - 31 51 741-12.

EnEV

Angaben gemäß EnEV (Vorderhaus):

Energieausweistyp: vorläufiger Bedarfsausweis
Primärenergiebedarf: 48kWh/(m²*a)
Endenergiebedarf: 64kWh/(m²*a)
Wesentlicher Energieträger: KWK + Solar für WW
Baujahr: 2015

Angaben gemäß EnEV (Doppelhaus):

Energieausweistyp: vorläufiger Bedarfsausweis
Primärenergiebedarf: 56kWh/(m²*a)
Endenergiebedarf: 74kWh/(m²*a)
Wesentlicher Energieträger: Nahwärme von KWK + Solar für WW
Baujahr: 2015

Rechtlicher Hinweis: Die Informationen zum Bauvorhaben sind ein redaktioneller Beitrag der neubau kompass AG. Er dient ausschließlich Informationszwecken und stellt kein Angebot im rechtlichen Sinne dar. Die angebotenen Inhalte werden von der neubau kompass AG nach § 2 TMG veröffentlicht und kontrolliert. Informationen zu einer etwaigen Provisionspflicht sind beim Anbieter zu erfragen. Alle Angaben, insbesondere zu Preisen, Wohnflächen, Ausstattung und Bezugsfertigkeit sind ohne Gewähr. Irrtum vorbehalten.

Anbieter

Haus & Capital

Französische Straße 47, 10117 Berlin

Haus & Capital