Dieses Bauvorhaben ist abverkauft.

DEMOS Wohnbau

ALEXISQUARTIER – Wohnen am Truderinger Wald

Neubau von 78 Eigentumswohnungen

Projektdetails

  • Alexisweg, 81827 München / Perlach
  • Eigentumswohnung
  • 78
  • Gehoben
  • 17803

Merkmale

  • Aufzug
  • Balkon
  • Dachterrasse
  • Echtholz-Parkett
  • Fußbodenheizung
  • Großformatige Fliesen
  • Handtuchheizkörper
  • Ladestation für Elektrofahrzeuge
  • Loggia
  • PKW-Stellplätze
  • Sanitärausstattung von Markenherstellern
  • Terrasse
  • Tiefgarage
  • Video-Gegensprechanlage

Lage

Auf der Karte anzeigen

Weitere Infos

Vorläufige Angaben gemäß § 16 a Energieeinsparverordnung:

  • Art des Energieausweises: Energiebedarfsausweis - Entwurf
    (Hinweis: alle folgenden Angaben gemäß genanntem Energiebedarfsausweis - Entwurf)
  • Endenergiebedarf: 44,6 kWh / (m²*a)
  • wesentlicher Energieträger für Heizung und Warmwasser: Fernwärme SWM
  • Baujahr: 2019 / 2020 (Neubau, Erstbezug)
  • Energieeffizienzklasse: A

Projektbeschreibung

Bild Neubauprojekt ALEXISQUARTIER – Wohnen am Truderinger Wald

Stadtwohnen plus Erholungswert

Im Südosten Münchens entsteht Neues! In Nachbarschaft zum Truderinger Wald und zur Gartenstadt Trudering entwickelt die DEMOS mit dem Alexisquartier ein komplettes Wohnviertel, das heutigen Ansprüchen mehr als nur gerecht wird. Denn es ist nicht nur die zeitgemäß-moderne Architektur, die hier ein attraktives Wohnen ermöglicht. Sondern auch der perfekte Mix aus Alltag und hohem Freizeitwert.

In mehreren Bauabschnitten wird ein neues Stadtquartier mit Eigentumswohnungen, Reihenhäusern sowie einer eigenen Infrastruktur mit Quartierspromenade, Einkaufsmöglichkeiten und Kinderbetreuungseinrichtungen entstehen.

Der Standort ist dafür wie geschaffen: Einerseits die Nähe zur Natur, andererseits der schnelle und unkomplizierte Weg in unsere Bayernmetropole. Und wer sich saftige Wiesen und majestätische Alpen nicht nur auf Postkarten ansehen möchte, ist von hier aus in kürzester Zeit dort, wo andere Urlaub machen.

Bild Neubauprojekt ALEXISQUARTIER – Wohnen am Truderinger Wald

Alles so nahe liegend

Großstädter sein und trotzdem wissen, wie sich die Natur anfühlt. Diesen Spagat schaffen nicht viele Orte. Das Alexisquartier erfüllt genau diese beiden Sehnsüchte. Direkt in der Nähe des Quartiers liegen gleich zwei Oasen der Ruhe und Erholung: der Truderinger Wald und der Ostpark. Und nur eine kurze Autofahrt später ist man am Tegernsee, am Starnberger See oder im üppig grünen Tölzer Land mit dem imposanten Blick auf die Alpen.

Für Kunst und Kultur, zum Shoppen oder einfach mal für eine Nacht im Großstadtdschungel ist aber auch gesorgt! Ob mit den öffentlichen Verkehrsmitteln, dem Auto oder auch sportlich mit dem Radl ist das Herz von München ideal zu erreichen. Sie sehen – rundherum eine Lage also, die nicht nur verspricht, sondern auch hält, was man sich wünscht.

Bild Neubauprojekt ALEXISQUARTIER – Wohnen am Truderinger Wald

Ihre Zukunft startet hier

Heute noch Single, morgen Familienmensch und übermorgen den Ruhestand genießen?

Im Alexisquartier ist jeder Lebensabschnitt im wahrsten Sinne des Wortes lebenswert. Weil einfach alle Angebote vorhanden sind! Von der nahen Natur bis hin zum pulsierenden Großstadtleben. Von den hervorragenden Einkaufsmöglichkeiten bis hin zu Kindertagesstätten, Schulen, Ärzten und vielem mehr.

Kurz gesagt: Das Alexisquartier ist die perfekte Kulisse für ein eigenes, neues Zuhause mit besten Zukunftsaussichten.

Grün eingefasst, ruhig gelegen

„ALEXISQUARTIER – Wohnen am Truderinger Wald“ liegt angrenzend zum großzügigen Quartierspark und zur Quartierspromenade mit Einkaufsmöglichkeiten. Bunte Gärten, Bäume, lebendige Freiflächen … im „ALEXISQUARTIER – Wohnen am Truderinger Wald“ wurde nicht nur auf die Werte im Inneren geachtet, sondern auch auf das Außen: auf den Weg zu Ihrer neuen Eigentumswohnung.

Schließlich sollen Sie sich draußen so wohlfühlen wie in Ihren eigenen vier Wänden. Und das werden Sie. Dafür sorgen ausgefallene Details, viel Licht und ausgesucht schöne Materialien.

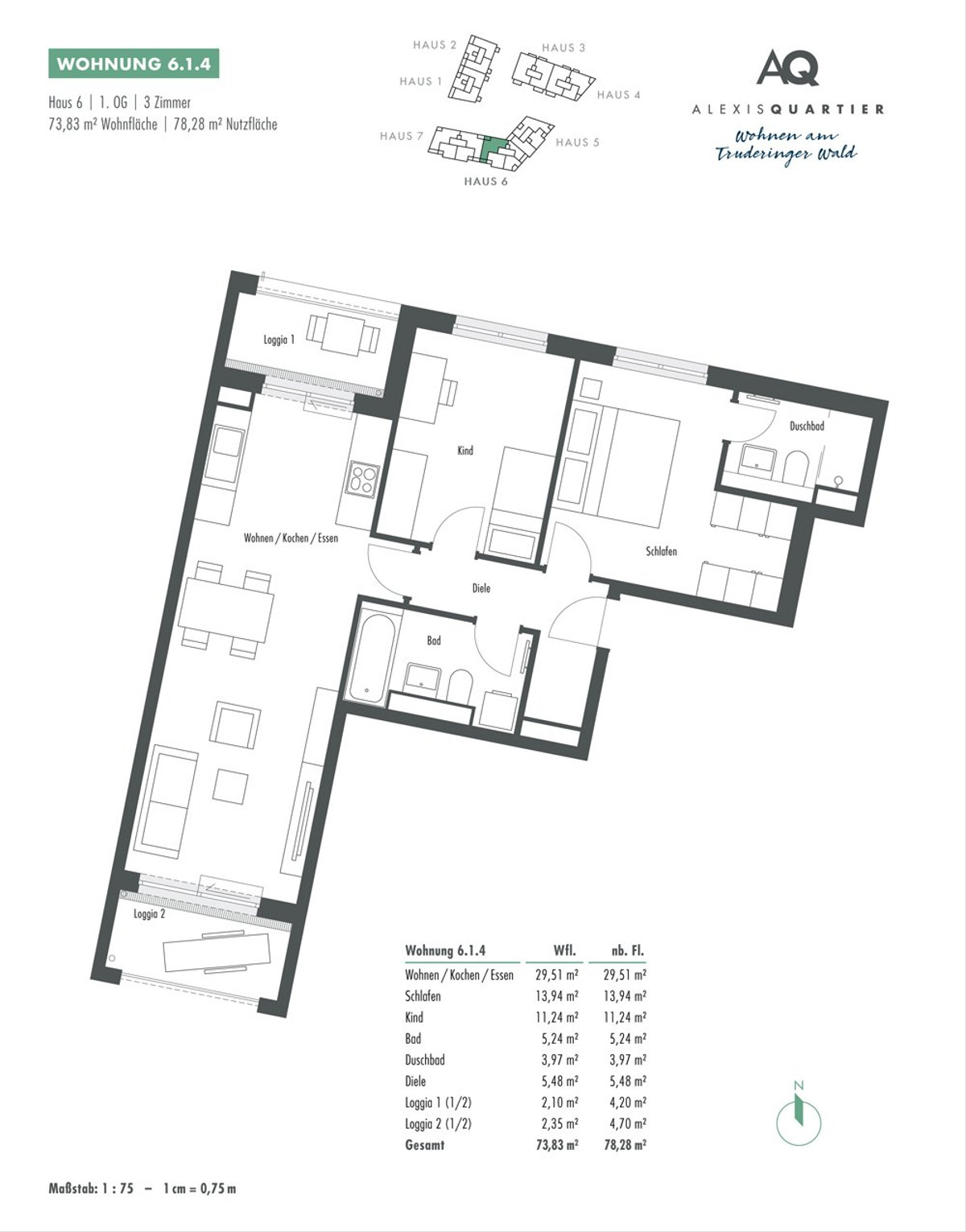
Dabei wird Individualität großgeschrieben: Denn jede Eigentumswohnung hat ihren eigenen Charme. Freuen Sie sich auf unterschiedlich geschnittene, moderne 1- bis 4-Zimmer-Wohnungen mit Balkon, Loggia, Terrasse oder Dachterrasse die verschiedensten Bedürfnissen gerecht werden.

Bild Neubauprojekt ALEXISQUARTIER – Wohnen am Truderinger Wald

DIE ECKDATEN VON „ALEXISQUARTIER – Wohnen am Truderinger Wald“

  • 1- bis 4-Zimmer-Eigentumswohnungen (nur noch 3- und 4-Zimmer-Wohnungen verfügbar)
  • Wohnflächen von ca. 30 m² bis ca. 95 m²
  • Großzügige Terrassen, Dachterrassen, Balkone und Loggien
  • Moderne, ansprechende Architektur
  • In Nachbarschaft zum Quartierspark und zur Quartierspromenade mit Einkaufsmöglichkeiten
  • Energieeffizienzklasse A, EnEV 2016
  • KfW-Effizienzhaus 55
  • Vielfältige Grundrisse
  • Tiefgaragenplatz mit optionaler Ladelösung für E-Autos
  • Lichte Höhen der Wohnräume von ca. 2,60 m
  • Ausstattungsdetails:
    • Fußbodenheizung
    • Parkett in allen Wohnräumen
    • Video-Gegensprechanlage
    • Elektrische Raffstores
    • Handtuchheizkörper in Bad und Duschbad
    • Gehobene Standardausstattung im Bad mit Wahlmöglichkeiten, z. B. Waschtisch / WC von Laufen, Fliesen (Boden und Wand) von Villeroy & Boch, Duschabtrennung: Kermi, Armaturen: Dornbracht

Rechtlicher Hinweis: Die Informationen zum Bauvorhaben sind ein redaktioneller Beitrag der neubau kompass AG. Er dient ausschließlich Informationszwecken und stellt kein Angebot im rechtlichen Sinne dar. Die angebotenen Inhalte werden von der neubau kompass AG nach § 2 TMG veröffentlicht und kontrolliert. Informationen zu einer etwaigen Provisionspflicht sind beim Anbieter zu erfragen. Alle Angaben, insbesondere zu Preisen, Wohnflächen, Ausstattung und Bezugsfertigkeit sind ohne Gewähr. Irrtum vorbehalten.

Anbieter

Weitere Projekte in der Nähe