Dieses Wohnbeispiel ist Teil des Bauvorhabens ALEXISQUARTIER-Tower

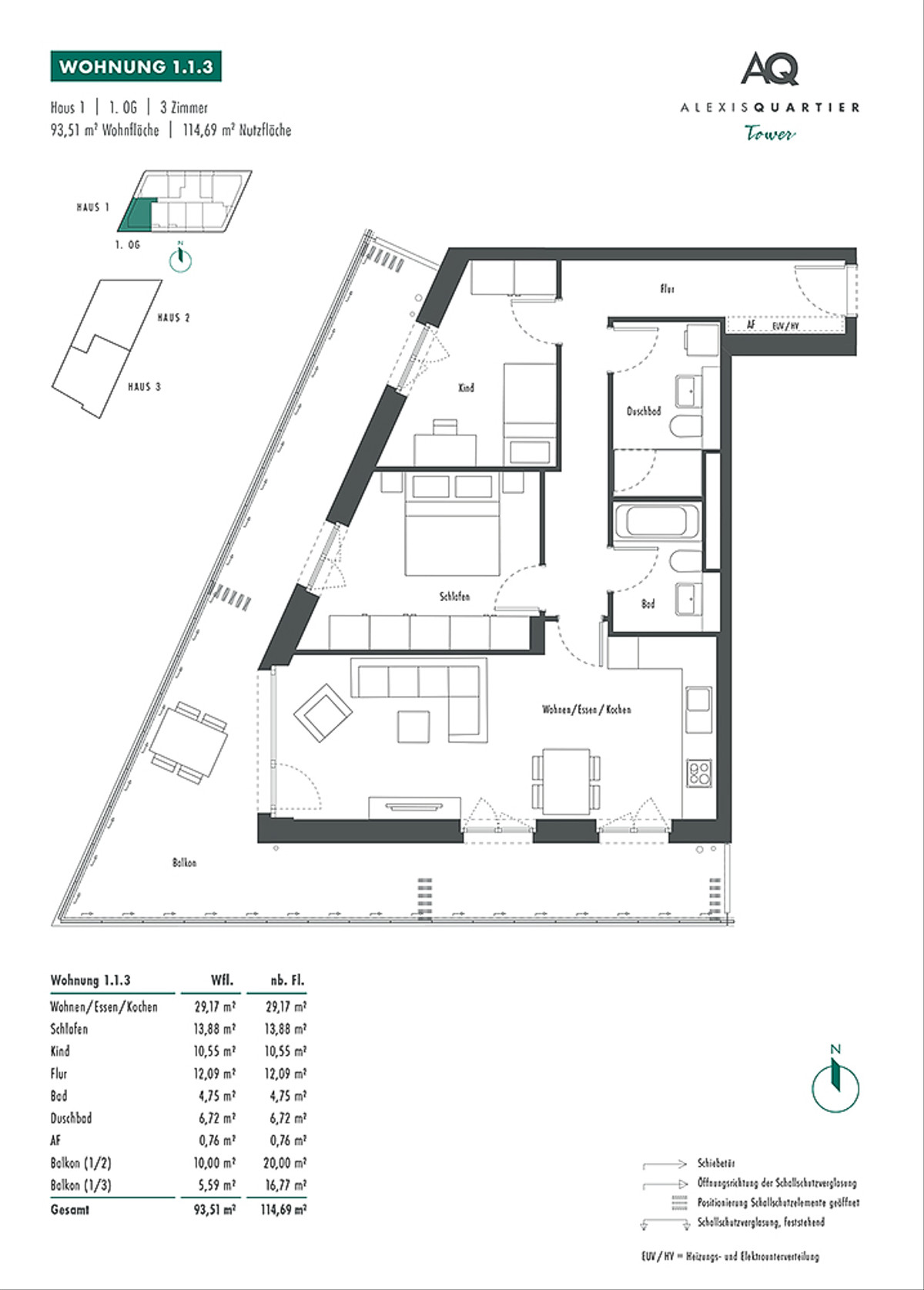
3-Zi.-Whg. mit großzügigem, umlaufendem Süd-West-Balkon, offener Küche u. 2 Bädern

  • Baubeginn erfolgt
  • Energieeffizienzklasse A
  • GEG 2020
  • Adresse
    Franz-Heubl-Straße 33, 81735 München / Perlach
  • Wohntyp
    Etagenwohnung
  • Preis
    716.000 €
  • Etage
    1. OG
  • Zimmeranzahl
    3
  • Badezimmer
    2
  • Schlafzimmer
    2
  • Wohnfläche
    93,51 m2
  • Nutzfläche
    114,69 m2
  • ID
    286297
  • Anbieter Objekt-ID
    P2066W-1.1.3

Merkmale

  • Balkon
  • Neubau
  • Personenaufzug
  • Zentralheizung

Dokumente

Dokument

Lage

Auf der Karte anzeigen

STADTWOHNEN PLUS ERHOLUNGSWERT

Im Münchner Südosten entwickeln wir mit dem ALEXISQUARTIER ein komplettes Wohnviertel, das heutigen Ansprüchen mehr als nur gerecht wird. Denn es ist nicht nur die zeitgemäß-moderne Architektur, die hier ein attraktives Wohnen ermöglicht. Sondern auch der perfekte Mix aus Alltag und hohem Freizeitwert.

Der Standort ist dafür wie geschaffen: Einerseits die Nähe zur Natur, andererseits der schnelle und unkomplizierte Weg in unsere Bayernmetropole. Und wer sich saftige Wiesen und majestätische Alpen nicht nur auf Postkarten ansehen möchte, ist von hier aus in kürzester Zeit dort, wo andere Urlaub machen.


ALLES SO NAHE LIEGEND

Großstädter sein und trotzdem wissen, wie sich die Natur anfühlt. Diesen Spagat schaffen nicht viele Orte. Das ALEXISQUARTIER erfüllt genau diese beiden Sehnsüchte. Direkt in der Nähe liegen gleich zwei Oasen der Ruhe und Erholung: der Truderinger Wald und der Ostpark. Und nur eine kurze Autofahrt später ist man am Tegernsee, am Starnberger See oder im üppig grünen Tölzer Land mit dem imposanten Blick auf die Alpen.

Für Kunst und Kultur, zum Shoppen oder einfach mal für eine Nacht im Großstadtdschungel ist aber auch gesorgt! Ob mit den öffentlichen Verkehrsmitteln, dem Auto oder auch sportlich mit dem Radl ist das Herz von München ideal zu erreichen. Sie sehen - rundherum eine Lage also, die nicht nur verspricht, sondern auch hält, was man sich wünscht.

BERATUNG VOR ORT


Unsere Musterwohnung befindet sich in der Franz-Heubl-Straße 39 im 5. Obergeschoss in 81735 München.


Persönliche Beratung durch Ihre Verkaufsberater im Auftrag der DEMOS Wohnbau GmbH:

Freitag von 16:00 bis 19:00 Uhr

Samstag und Sonntag von 14:00 bis 18:00 Uhr

oder im Rahmen eines individuell vereinbarten Beratungstermins.


Sie erreichen Ihre Verkaufsberater jederzeit persönlich unter der Telefonnummer: 089 / 231 73 200.

Ausstattung

Die Eckdaten von "ALEXISQUARTIER - Tower"

- 1- bis 4-Zimmer-Eigentumswohnungen
- Wohnflächen von ca. 34 m² bis ca. 127 m²
- Großzügige Balkone, faszinierende Weitblicke in den obersten Geschossen
- Moderne Architektur, vielfältige Grundrisse
- Tiefgarage mit Einzelstellplätzen
- Direkte Zugänge von der Tiefgarage
- Aufzüge vom Unter- bis ins oberste Vollgeschoß
- Erfüllung der Anforderungen nach Gebäudeenergiegesetz 2020 in der aktuell gültigen Fassung
- Effizienzhaus 55
- Energieeffizienzklasse A
- Heizungsart: Fernwärme


Ausstattungsdetails

- Parkett in allen Wohnräumen
- Fußbodenheizung
- Video-Gegensprechanlage
- Elektrische Raffstores
- Dezentrales Be- und Entlüftungssystem mit Wärmerückgewinnung
- Lichte Raumhöhe bis zu ca. 2,99 m
- Handtuchheizkörper in Bad und Duschbad
- Gehobene Standardausstattung mit Wahlmöglichkeiten in den Bädern, z. B.
- Waschtisch / WC von Laufen
- Fliesen (Boden und Wand) von Villeroy & Boch
- Armaturen von Hansgrohe


Angaben des vorläufigen Energieausweis für Wohngebäude gemäß den §§ 79 ff. Gebäudeenergiegesetz (GEG) vom 16.10.2023:

Art des Energieausweis: Energiebedarfsausweis - Vorschau
Endenergiebedarf: 39,4 kWh / (m²*a)
Wesentliche Energieträger für Heizung und Warmwasser: Wärmenetz
Baujahr Gebäude, Wärmeerzeuger gem. Energieausweis: 2028
Energieeffizienzklasse: A

Beschreibung

Im Münchner Osten, in Perlach - direkt angrenzend an die Gartenstadt Trudering und den Truderinger Wald - entsteht ein modernes Stadtquartier mit starker Identität. Eigentumswohnungen, Reihenhäuser, eine eigene Promenade, Nahversorgung, großzügige Grünflächen und Kindertagesstätten fügen sich zu einem lebenswerten Wohnumfeld.

ALEXISQUARTIER - Parkside & Tower bilden gemeinsam ein architektonisch aufeinander abgestimmtes Ensemble am neuen Quartierspark. Während "Parkside" mit zurückhaltender Eleganz überzeugt, setzt der "Tower" als markanter Hochpunkt einen selbstbewussten städtebaulichen Akzent. Klare Linien, helle Fassaden, bodentiefe Fenster und umlaufende Balkone mit verschiebbaren Glasflächen prägen sein charakterstarkes Erscheinungsbild.

ALEXISQUARTIER - Tower bietet ein vielseitiges Angebot an 1- bis 4-Zimmer-Eigentumswohnungen - von der optimal geschnittenen Singlewohnung bis hin zum großzügigen Familienheim.

Der Finanzierungsrechner für Ihren Wohnkredit

Mit unserem Finanzierungsrechner kannst du schnell und bequem eine Finanzierung für deine Immobilie berechnen.

Finanzierungsbeispiel

Eigenkapital: 143.200 €
Sollzinsbindung: 10 Jahre
Tilgungsrate: 1 %
Monatsrate

2.234 €

Dieses Wohnbeispiel ist Teil des Bauvorhabens
ALEXISQUARTIER-Tower

Exposé/Preisliste anfordern
Pflichtfelder *

Wir behandeln deine Daten vertraulich. Mit dem Absenden erklärst du dich mit der Verarbeitung deiner Anfrage gemäß unserer Datenschutzerklärung und AGB für Verbraucher:innen einverstanden.

Anbieter