Bauträger Wolfgang Froese

Schwerter Straße 244

Neubau von Eigentumswohnungen

  • Effizienzhaus 55
  • Energieeffizienzklasse A+
  • Im Rohbau

Projektdetails

  • Schwerter Straße 244, 44287 Dortmund / Aplerbeck
  • Eigentumswohnung
  • ab 447.900 €
  • 3,5 - 4 Zimmer
  • 91,73 - 96,33 m2
  • Herbst 2026
  • Auf Anfrage
  • Gehoben
  • 27315

Merkmale

  • Aufzug
  • Balkon
  • Fußbodenheizung
  • Luft-Wasser-Wärmepumpe
  • Teilw. Gartenanteil
  • Terrasse

Lage

Wohnbeispiele

Exposé/Preisliste anfordern
Pflichtfelder *

Anzahl der Zimmer

Wir behandeln deine Daten vertraulich. Mit dem Absenden erklärst du dich mit der Verarbeitung deiner Anfrage gemäß unserer Datenschutzerklärung und AGB für Verbraucher:innen einverstanden.

Projektbeschreibung

Bild Neubauprojekt Schwerter Straße, Dortmund: Bild eines Mehrfamilienhauses

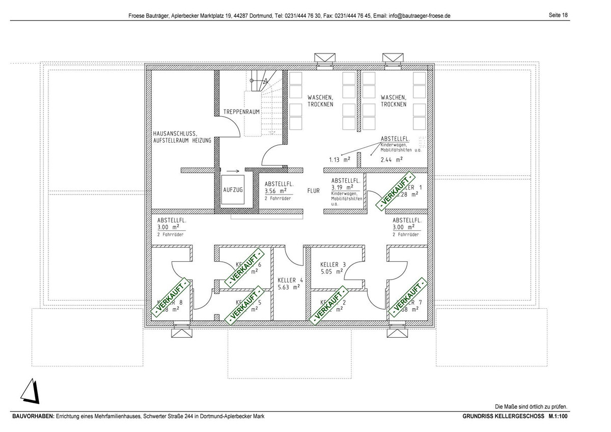
Errichtung eines Mehrfamilienhauses

Schwerter Straße 244 in 44287 Dortmund-Aplerbecker Mark

An der Adresse Schwerter Straße 244 in 44287 Dortmund-Aplerbecker Mark errichten wir für Sie ein Mehrfamilienhaus mit 8 Neubaueigentumswohnungen mit Aufzug, barrierefrei zugänglich über alle Geschosse, die Balkone und Terrasse sind nach Süden ausgerichtet. Bevorzugte Lage herausragend angebunden und doch direkt am Wald. Der Baubeginn ist erfolgt. Bezugsfertig ab Herbst 2026.

Für Fragen und zur Vereinbarung eines Termins zur Besichtigung stehe ich Ihnen selbstverständlich gerne zur Verfügung. Sie erreichen uns in unseren Bürozeiten: Montag bis Donnerstag von 8:00 bis 17:00 Uhr und Freitag bis 14:30 Uhr.

  • 66 bis 97 m² Wohnfläche, 3 bis 4,5 Zimmer
  • Wohnen in attraktiver Ortsteillage, hervorragende Anbindung und Infrastruktur mit fußläufiger Nähe zum Aplerbecker / Schwerter Wald
  • Aufzug über alle Geschosse => barrierefreie Zugänglichkeit
  • Bj. voraussichtlich 2026, KfW 55, Fußboden-Heizung: Gas, LW-Wärmepumpe, Energiebedarf ca. 20 kWh/m²a, A+
  • Süd-Balkone und Terrassen mit Garten
  • Baubeginn erfolgt, Bautenstand: Rohbau u.a. fertig, bezugsfertig ab Herbst 2026

Rechtlicher Hinweis: Die Informationen zum Bauvorhaben sind ein redaktioneller Beitrag der neubau kompass AG. Er dient ausschließlich Informationszwecken und stellt kein Angebot im rechtlichen Sinne dar. Die angebotenen Inhalte werden von der neubau kompass AG nach § 2 TMG veröffentlicht und kontrolliert. Informationen zu einer etwaigen Provisionspflicht sind beim Anbieter zu erfragen. Alle Angaben, insbesondere zu Preisen, Wohnflächen, Ausstattung und Bezugsfertigkeit sind ohne Gewähr. Irrtum vorbehalten.

Anbieter

Bauträger Wolfgang Froese

Aplerbecker Marktplatz 19, 44287 Dortmund