Dieses Wohnbeispiel ist Teil des Bauvorhabens GRÜNFELD2

Hochwertige 2-Zi.-Wohnung mit Süd-West-Balkon zum Park

  • Energieeffizienzklasse A
  • GEG 2020
  • Verkaufsstart erfolgt
  • Adresse
    Lilli-Kurowski-Straße, 80995 München / Feldmoching
  • Wohntyp
    Etagenwohnung
  • Preis
    476.000 €
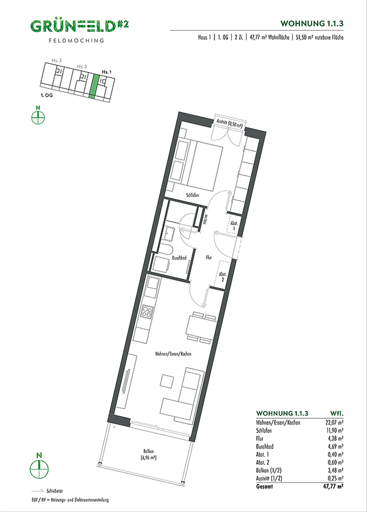
  • Etage
    1. OG
  • Zimmeranzahl
    2
  • Badezimmer
    1
  • Schlafzimmer
    1
  • Wohnfläche
    47,77 m2
  • Nutzfläche
    51,5 m2
  • ID
    279575
  • Anbieter Objekt-ID
    P2142W-1.1.3

Merkmale

  • Balkon
  • Neubau
  • Personenaufzug
  • Zentralheizung

Dokumente

Dokument

Lage


NATUR UND STADT

Schön, wenn die Stadt so nah ist, dass Sie ihren zahllosen Einladungen jederzeit folgen können. Noch besser, wenn Sie das nicht unbedingt müssen. Weil so vieles fürs tägliche Leben und Erleben noch näher ist: Einkaufsmöglichkeiten, Freizeitlandschaften, Kindergarten oder Schule. GRÜNFELD steht für München mit einem Plus an Erholung - und für Urbanität mit Charme.


MITTEN IM GESCHEHEN

Eine Fahrt mit der S-Bahn in die Innenstadt führt entlang an Gartensiedlungen, am Fasaneriesee, am Nymphenburger Schlosspark und am Hirschgarten. Wer sich hingegen für das Rad entscheidet, kommt am Lerchenauer See vorbei und durchquert den Olympiapark. So oder so bieten sich Eindrücke und Ausblicke, die zeigen: Die Lage von GRÜNFELD schenkt jeden Tag echten Mehr-Erlebniswert.

BERATUNG VOR ORT


Unsere Musterwohnung befindet sich in der Lilli-Kurowski-Straße 6 in 80995 München.

Die Zufahrt erfolgt über die Hochmuttinger Straße und ist für Sie beschildert.


Persönliche Beratung durch Ihre Verkaufsberater im Auftrag der DEMOS Wohnbau GmbH:

Freitag von 16:00 bis 19:00 Uhr

Samstag und Sonntag von 14:00 bis 18:00 Uhr

oder im Rahmen eines individuell vereinbarten Beratungstermins.


Sie erreichen Ihre Verkaufsberater jederzeit persönlich unter der Telefonnummer: 089 / 231 73 200.

Ausstattung

Die Eckdaten von "GRÜNFELD 2 - Feldmoching"

- 1- bis 4-Zimmer-Eigentumswohnungen
- Wohnflächen von ca. 34 m² bis ca. 101 m²
- Mit Terrasse, Balkon oder Dachterrasse
- Moderne Architektur, vielfältige Grundrisse
- Objekteigene Tiefgarage
- Optionale E-Ladelösung über einen Betreiber möglich
- Aufzüge vom Unter- bis ins oberste Vollgeschoß
- Anforderungen nach Gebäudeenergiegesetz 2020 erfüllt
- KfW-Effizienzhaus 55, Energieeffizienzklasse A
- Heizungsart: Fernwärme


Ausstattungsdetails

- Parkett in allen Wohnräumen
- Fußbodenheizung
- Video-Gegensprechanlage
- Elektrische Raffstores
- Dezentrales Be- und Entlüftungssystem mit Wärmerückgewinnung
- Lichte Raumhöhe von ca. 2,60 m
- Handtuchheizkörper in Bad und Duschbad
- Gehobene Standardausstattung mit Wahlmöglichkeiten in den Bädern, z. B.
- Waschtisch / WC von Laufen
- Fliesen (Boden und Wand) von Villeroy & Boch
- Armaturen von Hansgrohe


Angaben des vorläufigen Energieausweises für Wohngebäude gemäß den §§ 79 ff. Gebäudeenergiegesetz (GEG) vom 16.10.2023:

Art des Energieausweis: Energiebedarfsausweis - Vorschau
Endenergiebedarf: 38,1 kWh / (m²*a)
Wesentliche Energieträger für Heizung und Warmwasser: Fernwärme SWM
Baujahr Gebäude, Wärmeerzeuger gemäß Energieausweis: 2024
Energieeffizienzklasse: A

Beschreibung

GRÜNFELD steht für stadt- und naturnahes Wohnen, welches die Vorzüge einer Großstadt mit den Freizeit- und Erholungsmöglichkeiten eines Lebens im "Grünen" vereint!

In München-Feldmoching entsteht ein neues Wohnquartier mit vielen Vorzügen: Direkt im Quartier entstehen zwei Kindertagesstätten, ein Café und Einkaufsmöglichkeiten für den täglichen Bedarf. Das Areal überzeugt durch eine lockere Bebauung mit großzügigen Grün- und Freiflächen sowie einem eigenen Park. Zu den Freizeitmöglichkeiten in der Umgebung zählen gleich drei Seen - und wenn doch einmal die City lockt, erreichen Sie die Innenstadt Münchens dank der nahen U- und S-Bahn-Station Feldmoching in wenigen Minuten.

Im Bauabschnitt Grünfeld #2 entstehen vielfältige 1- bis 4-Zimmer-Eigentumswohnungen mit einer hochwertigen Ausstattung und gut durchdachten Grundrissen. Ein absolutes Highlight ist die direkte Lage am Quartierspark. Nahezu alle Wohnungen sind nach Süden ausgerichtet und schaffen mit ihren großzügigen Fensterflächen eine einladende Atmosphäre - inklusive Parkblick. Freuen Sie sich auf Wohnen, das aktive Urbanität und erholsame Naturnähe in Balance bringt!

Der Finanzierungsrechner für Ihren Wohnkredit

Mit unserem Finanzierungsrechner kannst du schnell und bequem eine Finanzierung für deine Immobilie berechnen.

Finanzierungsbeispiel

Eigenkapital: 95.200 €
Sollzinsbindung: 10 Jahre
Tilgungsrate: 1 %
Monatsrate

1.468 €

Dieses Wohnbeispiel ist Teil des Bauvorhabens
GRÜNFELD2

Exposé/Preisliste anfordern
Pflichtfelder *

Wir behandeln deine Daten vertraulich. Mit dem Absenden erklärst du dich mit der Verarbeitung deiner Anfrage gemäß unserer Datenschutzerklärung und AGB für Verbraucher:innen einverstanden.

Anbieter